EasyManua.ls Logo

Sime METRO - Page 79

Sime METRO
Print Icon
To Next Page IconTo Next Page
To Next Page IconTo Next Page
To Previous Page IconTo Previous Page
To Previous Page IconTo Previous Page
Loading...
2.8.2 Separate-pipes
roof outlet
The roof outlet terminal L. 1390 cannot be
shortened and when positioning the tile, the
minimum distance from the discharge head
terminal must not be less than 700 mm
(fig. 13). The accessories to be used for this
type of installation and some of the connec-
ting systems that may be adopted are illu-
strated in fig. 14.
There is the possibility of doubling the air-
intake and smoke-outlet pipes and then brin-
ging them back together again so as to
obtain a concentric discharge by using the
doubler fitting (7 fig. 14).
In these cases, when assembling, recover
the silicone gasket used on the terminal
adapter (5 fig. 13), which is to be replaced
by the doubler, and insert it into the seat
made in the doubler.
For this type of discharge the sum of the
maximum rectilinear development allowed
for the pipes must not exceed 7.00 mm
H
2
O. When calculating the lengths of pipe,
take into account the parameters given in
the Table 2.
2.9 FORCED OUTLET
The “25 BF” version can also be installed as
a B22 type apparatus by assembling the
stub pipe inlet/outlet kit cod. 8089950.
The kit comes with a sector diaphgram,
instruction sheet and a label with the room
aeration warnings to be attached to the boi-
ler casing.
The sector diaphram must be used accor-
ding to the maximum load loss allowed by
the duct, as indicated in fig. 11/a.
The complete range of fittings required to
carry out the installation is given in fig. 15.
The maximum length of the duct is deter-
mined by the load losses of the single atta-
77
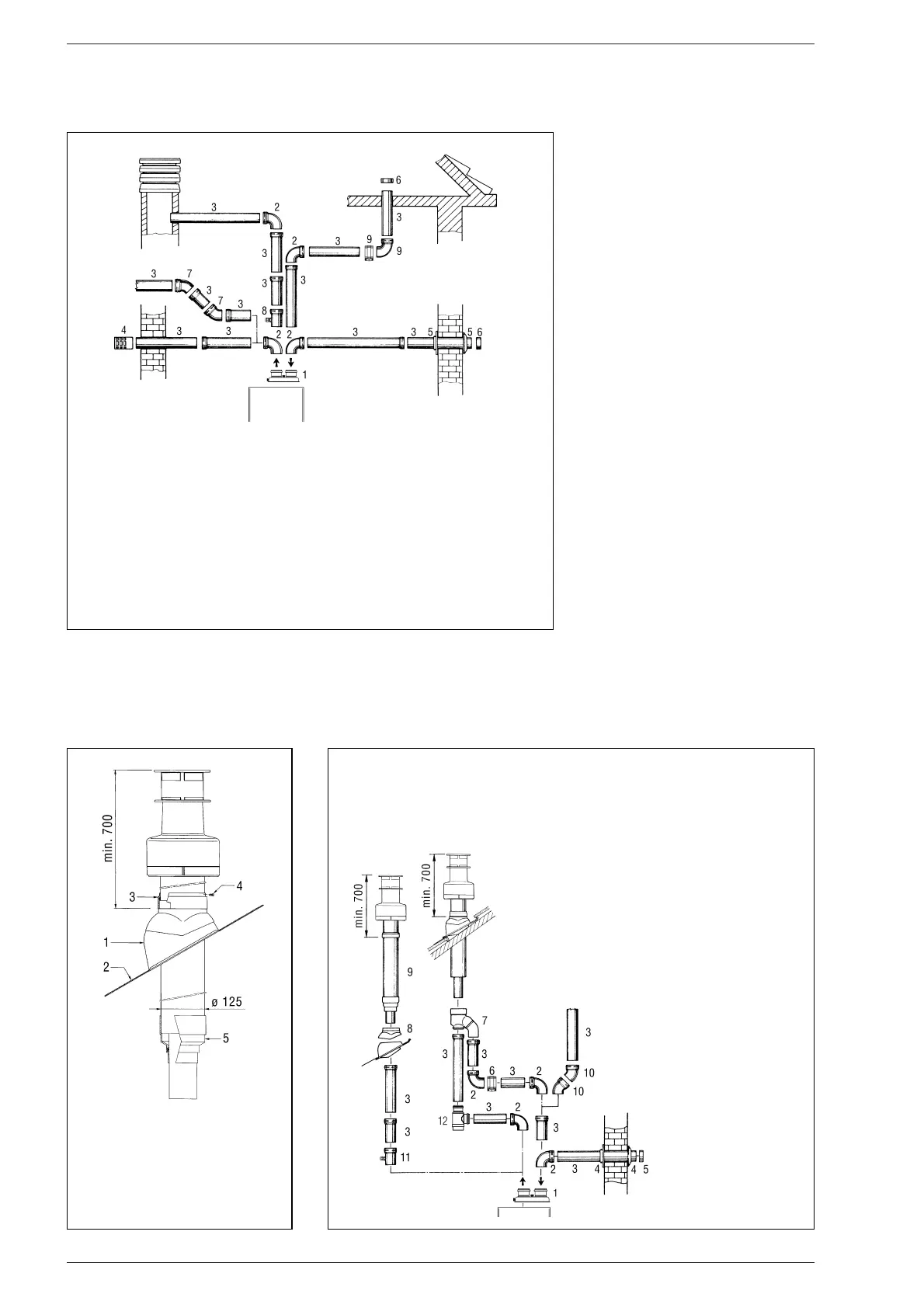
KEY
1 Air-smokes flow splitting unit
with take-off point code 8093000
2 a 90° elbow MF
(6 pz.) code 8077410
2 b Isolated 90° elbows MF code 8077408
3 a Extension L. 1000 (6 pz.) code 8077309
3 b Isolated extension L. 1000 code 8077306
3 c Extension L. 500 (6 pz.) code 8077308
4 Int.-est. ring kit code 8091500
5 Intake terminal code 8089500
6 Locking junction (5 pz.) code 8092700
7 Doubler fitting code 8091400
8 Tile with articulated joint code 8091300
9 Roof outlet terminal L. 1390 code 8091201
10 45° elbow MF (6 pz.) code 8077411
11 Condensation outlet L. 135 code 8092800
12 Tee condensation outlet code 8093300
Fig. 12
KEY
1 Air-smokes flow plitting unit with take-off point code 8093000
2a 90° elbow MF (6 pz.) code 8077410
2b Isolated 90° elbow MF code 8077408
3a Extension L. 1000 (6 pz.) code 8077309
3b Isolated extension L. 1000 code 8077306
3c Extension L. 500 (6 pz.) code 8077308
4 Outlet terminal code 8089501
5 Int.-est. ring kit code 8091500
6 Intake terminal code 8089500
7 45° elbow MF (6 pz.) code 8077411
8 Condensation outlet L. 135 code 8092800
9 Locking junction (5 pz.) code 8092700
KEY
1 Tile with articulated joint
2 Lead panel
3 Collar
4 Locking screw
5 Reducing fitting
with gasket
Fig. 13 Fig. 14

Related product manuals