EasyManua.ls Logo

Simrad RI9 - Page 21

Simrad RI9
34 pages
Print Icon
To Next Page IconTo Next Page
To Next Page IconTo Next Page
To Previous Page IconTo Previous Page
To Previous Page IconTo Previous Page
Loading...
Instruction manual
20220562E 19
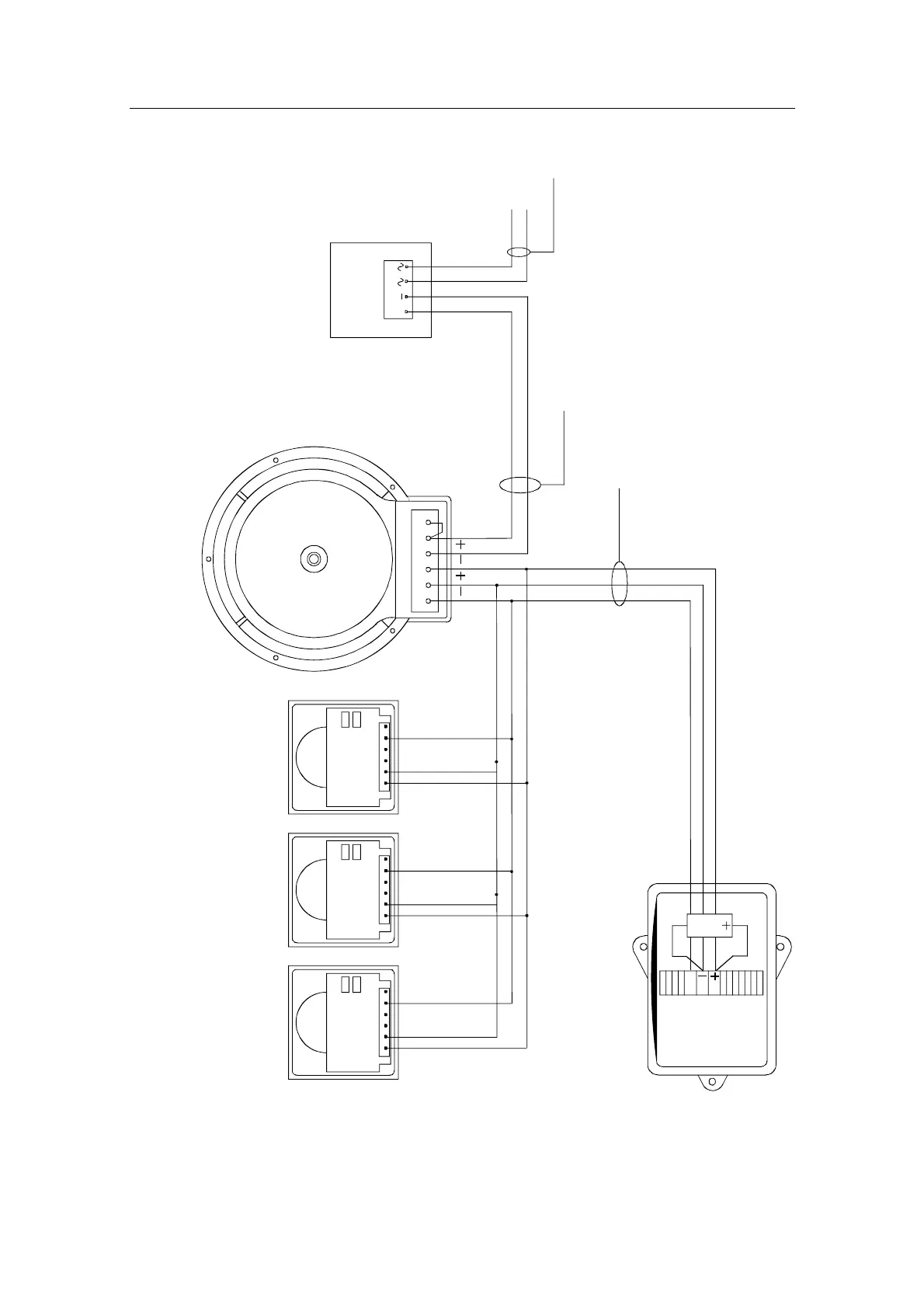
VOLTAGE FB
SUPPLY +
3x1,5 sq.mm
3x1,5 sq.mm
RF14XU
RUDDER FEEDBACK UNIT
TOTAL NUMBER OF INDICATORS: 8
RUDDER ANGLE INDICATORS
RI9
RI9
RI9
PANORAMA
FOR RI4 AND OTHER UNSMOOTHED
24V SUPPLY CONNECT THE
ENCLOSED CAPACITOR AS SHOWN
NOTE:
123456
8
9
10
U
3
1
2
SEPARATE LAMP SUPPLY
SUPPLY -
VOLTAGE FB
SUPPLY +
SUPPLY -
VOLTAGE FB
SUPPLY +
SUPPLY -
(NOT SIMRAD SUPPLY)
+
2x1,5 sq.mm
110/220VAC
24VDC
REGULATED POWER SUPPLY
Fig. 2-8 Wiring diagram
Panorama and RI9 on AC Mains with regulated power supply

Related product manuals