EasyManua.ls Logo

Sony BVM-D14H5E - Page 115

Sony BVM-D14H5E
128 pages
Print Icon
To Next Page IconTo Next Page
To Next Page IconTo Next Page
To Previous Page IconTo Previous Page
To Previous Page IconTo Previous Page
Loading...
49 (E)
Chapter 3 Appendix
265 (10
1
/
2
)
15
(
19
/
32
)
131.5 (5
1
/
4
)
482 (19)
28
(1
1
/
8
)
340 (13
1
/
2
)
28
(1
1
/
8
)
265 (10
1
/
2
)
15
(
19
/
32
)
131.5 (5
1
/
4
)
346 (13
5
/
8
)
260 (10
1
/
4
)
280 (11
1
/
8
)
280 (11
1
/
8
)
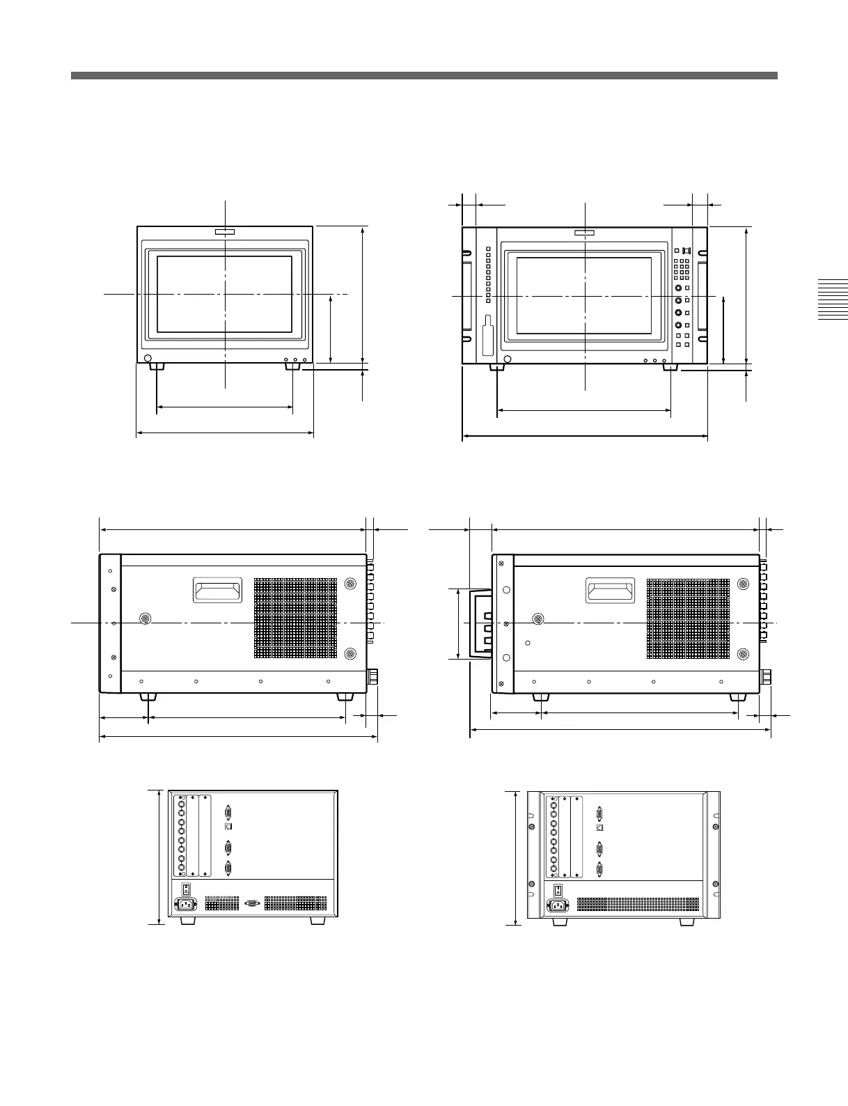
BVM-D14H1U/D14H1E/D14H1A
Unit: mm (inches)
Front
Side
Rear
BVM-D14H5U/D14H5E/D14H5A
Unit: mm (inches)
Front
Side
Rear
370 (14
5
/
8
)
90 (3
5
/
8
)
500 (19
3
/
4
)
519 (20
1
/
2
)
12 (
1
/
2
)
19 (
3
/
4
)
370 (14
5
/
8
)
90 (3
5
/
8
)
500 (19
3
/
4
)
43 (1
3
/
4
)
130 (5
1
/
8
)
12 (
1
/
2
)
562 (22
1
/
4
)
19 (
3
/
4
)

Table of Contents

Related product manuals