EasyManua.ls Logo

Sony RMT-D152A - Signal Processor Block Diagram

Sony RMT-D152A
133 pages
Print Icon
To Next Page IconTo Next Page
To Next Page IconTo Next Page
To Previous Page IconTo Previous Page
To Previous Page IconTo Previous Page
Loading...
DVP-NS325/NS330/NS333/NS430/NS433/NS530/NS725P/NS730P
3-7 3-8
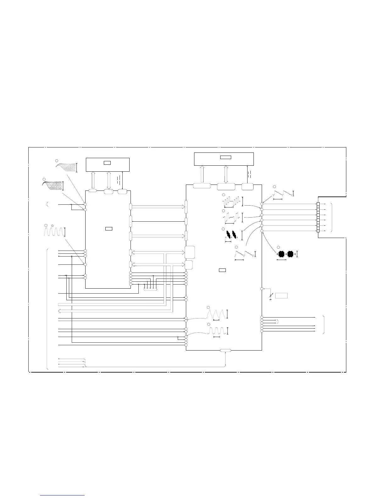
3-4. SIGNAL PROCESSOR BLOCK DIAGRAM
57
59
63
64
SDCK, XSHD,
XSRQ, XSAK, SDEF
DATA
BCLK
LRCK
DOUT
CDIN2I
CDIN1I
CDBCKI
CDLRKI
ICLKI
IERRI
ISTARTI
IVALI
IREQON
111
113
24
25
26
27
28
150
196
197
207
22
26
28
29
166
167
158
160
134
141
2
9
37
40
42
45
169
170
175
56
65 74
MEMA 0 9
MEMD 0 15
ADAD 0 11
ADDT 0 15
105 108·110 113·
115·116·118·120
135 138·140 143·
145 148·150·
151·153·154
161 169 ·
171 174 ·
176 179 ·
181 184 ·
186 189 ·
191 194
2 5 ·
7 10 ·
12 15 ·
17 20
122·124·125·
127·129·130·
132·133
36 43
46 53
IC303
IC404, 405*
16M DRAM
IC301
ARP
IC403
AV DECODER
16M SDRAM
32
34
35
31
202 205
MB-108 BOARD (3/6)
(SEE PAGE 4-31 to 4-34)
SIG O
RF/SERVO
(SEE PAGE 3-4)
SYSTEM CONTROL
(SEE PAGE 3-3)
16
RFIN1
RFIN2
SDI 0 7
DTI 0 7
MA 0 9
MD 0 15
SDDQ 0 15
CDDATA, CDBCK,
CDLRCK, CDDOUT
CLK, CKE,
DQML, DQMU,
CS, WE,
CAS, RAS
WE, RAS
LCAS, UCAS
AUDIO
(SEE PAGE 3-9)
VIDEO
(SEE PAGE 3-11)
ACH56
LRCKO
BCKO
LRCK
BCK
HD 0 15
HD 0 21
HA 0 21
HD 0 15D 0 7
A 0 7 HA 0 7
HD 8 15
XRD
XWRH
RSTn
DM ACK1
DM REQ1
DM ACK0
DM REQ0
ACLK
HAD23
HAD22
CLKI
SCLKI
200
199
HWAITOn
HIREQO
HA 0 21
HD 0 15
HA 0 21
HD 0 15
XRST
512FSAVD
33MARP
XWRH
XRD
TRST
XARPIT
XARPCS
XWAIT
XAVDCS2
XAVDCS3
27MAVD
XAVDIT
DREQ0
DACK0
DREQ1
DACK1
XWR
XRD
XINT
XCS
XWAT
CLKIN
25ACH34
24
70
ACH12
VREFI
ACH12
30DO SPDIF
173
172
TDI
LAND
(FOR J TAG)
TMS
171TRST
TDO
174TCK TCK
175TDO TDI
TMS
TRST
HCSn
HRWn
(2/2)
77
84
SD 0 7
SDCK
XSHD
XSRQ
XSAK
SDEF
47
51
29 · 31·
30
98
101
102
99
97
RV401
Y/G
Y/G
CN601 (1/3)
CB/R
Cb/R
CR/B
Cr/B
V
Y
G OUT
R OUT
B OUT
COMPOUT
Y OUT
CC OUT
COMPOUT
YOUT
COUT
VIDEO
LEVEL ADJ.
57
59
61
65
55
63
3
5
1
11
7
9
Except: NS325; E
LAND
0.2us/div
1.46Vp-p
301 <zzc (CD PB)
11
30nsec
3.3Vp-p
301 (CD PB)
14
40ns/div
1.34Vp-p
IC301 <zzz (DVD PLAY)
10
40nsec
3.3Vp-p
IC403 ws
15
38nsec
3.3Vp-p
IC403 <zb, <zn/
22
63.5usec
675mVp-p
IC403 tl
18
6.35usec
666mVp-p
IC403 ya
19
33.5usec
1.1Vp-p
IC403 yg
21
63.5usec
1.0Vp-p
IC403 tg
16
6.8usec
625mVp-p
IC403 yd
20
63.5usec
979mVp-p
IC403 tj
17
150

Table of Contents

Related product manuals