EasyManua.ls Logo

Sony RMT-D152A - Power Block Diagram (2;3)

Sony RMT-D152A
133 pages
Print Icon
To Next Page IconTo Next Page
To Next Page IconTo Next Page
To Previous Page IconTo Previous Page
To Previous Page IconTo Previous Page
Loading...
DVP-NS325/NS330/NS333/NS430/NS433/NS530/NS725P/NS730P
3-17 3-18
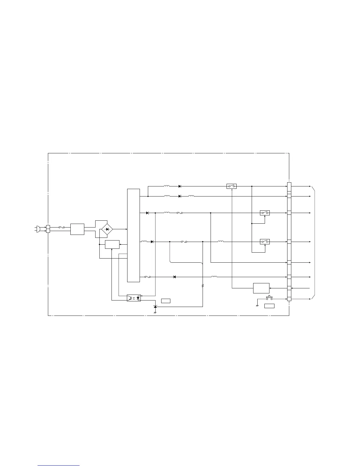
3-9. POWER BLOCK DIAGRAM (2/3)
Q203
12
5
6
CN201
T101
D202
D203
F203
D104-D1107
AC IN
F101
SW201
POWER
CN101
16
PC101
PHOTO COUPLER
IC101
SWITCH
10
11
2
9
1
13
1
2
Q301
L101, 102
LINE
FILTER
D204
Q205
POWER
CONTROL
L205 D201 L201
L301 D301
L202
L204
IC202
SHUNT REG
EVER+11V
SW+5V
SW+3.5V
EVER+5V
EVER15.5V
P-CONT
POWER
F201
F202
L203
L206
Q204
SW+11V
SWITCHING REGULATOR
(ETXNY410M0F): (NS325: PX, E, AR, BR/NS530/NS725P: PX, /NS730P: HK, SP, KR, ME, AUS)
(ETXNY410E0F): (NS330/NS333/NS430/NS433)
TO AF-098
(PAGE 3-19 to 3-20)

Table of Contents

Related product manuals