EasyManua.ls Logo

Sony SLV-ED313 - Servo;System Control

Sony SLV-ED313
82 pages
Print Icon
To Next Page IconTo Next Page
To Next Page IconTo Next Page
To Previous Page IconTo Previous Page
To Previous Page IconTo Previous Page
Loading...
SLV-ED115/ED215/ED313/ED515/ED616/ED815/ED817/ED818/ED915/ED919/EZ111/
EZ212/EZ414/EZ715/EZ717
XX
R901
JL901
JL904
JL902
S900
JL900
SLR-342DCT31
D900
JL903
560
R902
JL905
S901
0
R900
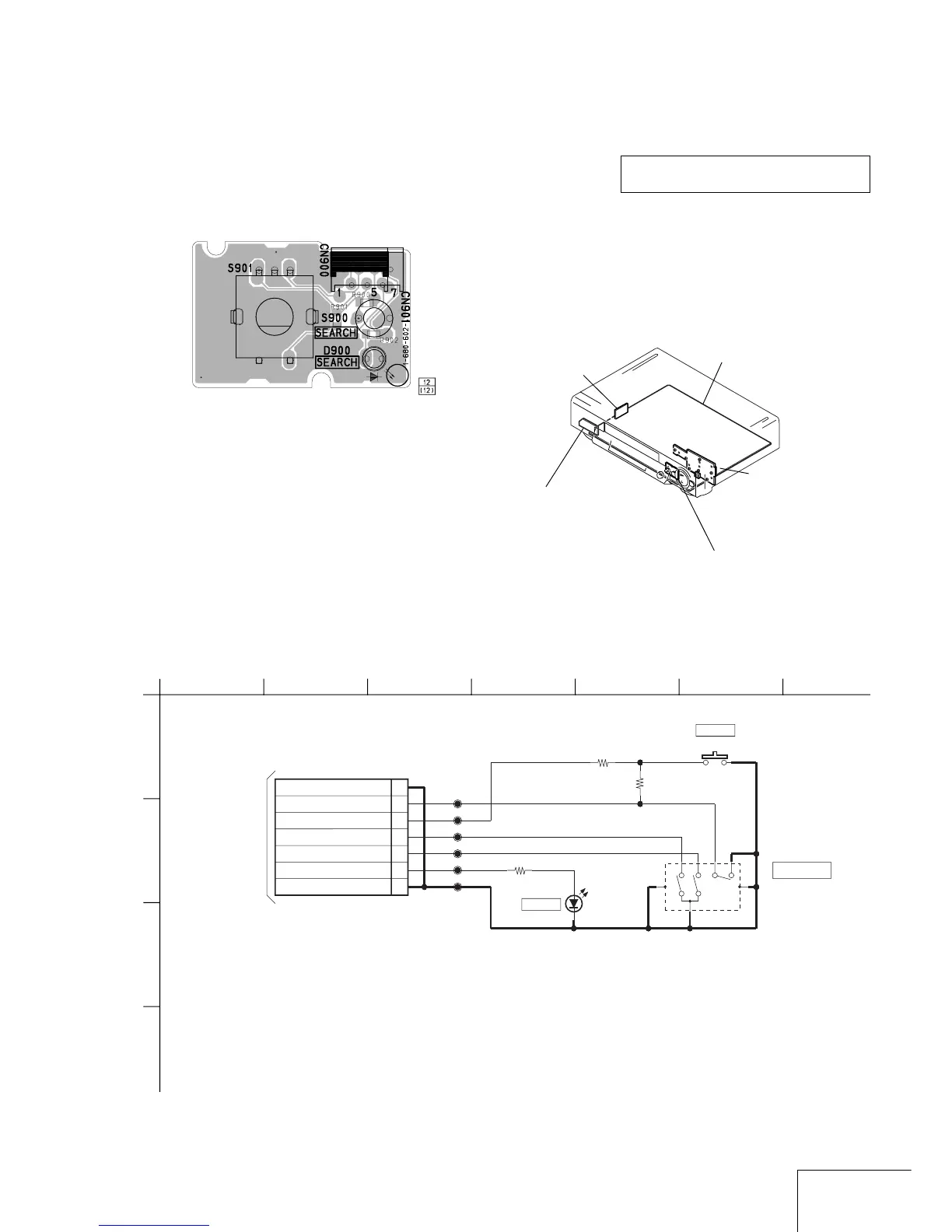
CN901
7P
D-GND 1
SEARCH LED 2
KKP+ 3
KKP- 4
DIAL 5
TIMER 6
GND 7
SEARCH
SEARCH
DIAL TIMER
PUSH/TURN
MA-402(7/8)
CN411
(SEE PAGE 4-25)
DI-81 (DIAL TIMER) PRINTED WIRING BOARD AND SCHEMATIC DIAGRAM
— Ref. No. DI-81 Board:2,000 Series —
DI-81 BOARD
VIDEO, AUDIO,
SERVO/SYSTEM CONTROL,
TUNER, POWER SUPPLY
FJ-31 (LINE 2 IN)
GK-12 (ZWEITON)
(EZ715AS/EZ717AS)
NK-11 (NICAM)
(ED915/ED919/
EZ715NZ/EZ717NZ)
DI-81 (DIAL TIMER)
DM-98 (USER CONTROL)
MA-402
()
A
12345 6 7
B
C
D
DIAL TIMER
DI-81
4-35E
There are few cases that the part printed
on this diagram isn’t mounted in this model.
DI-81 BOARD

Table of Contents

Related product manuals