EasyManua.ls Logo

SOOKOOK P3M - Burner Circuit Diagram

SOOKOOK P3M
34 pages
Print Icon
To Next Page IconTo Next Page
To Next Page IconTo Next Page
To Previous Page IconTo Previous Page
To Previous Page IconTo Previous Page
Loading...
13
Sookook Corporation
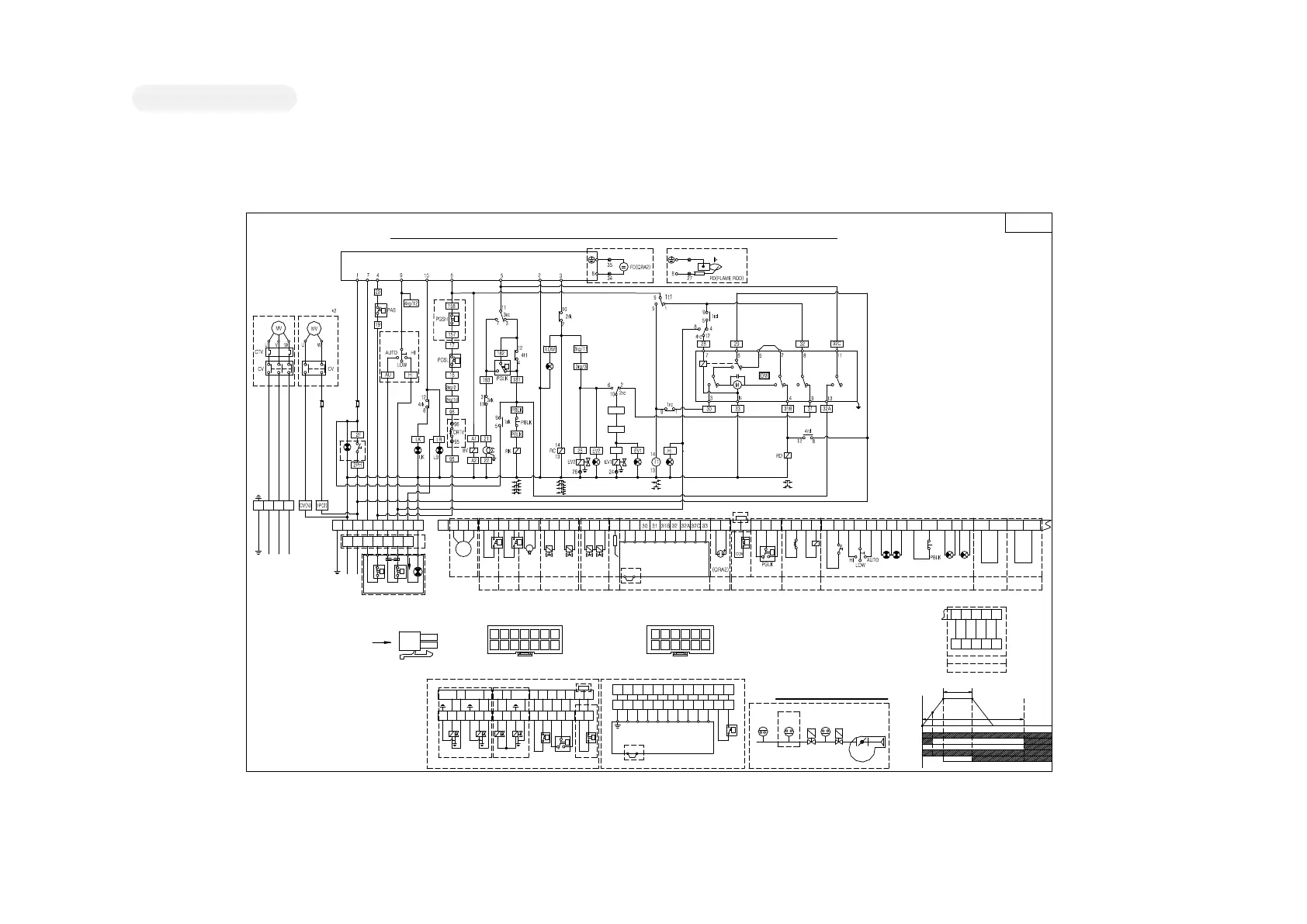
1H. Burner Circuit Diagram
Circuit Connection
If you open the burner control panel lid, you can see the burner power connection terminal and external interlock connection terminal (MA) to connect the burner power and control circuits. The motive
power supply for the motor connection and power supply for burner control shall be independent. Both shall be connected to the burner via a fuse (NFB).
[Figure 1H-A. HIGH/LOW Burner Circuit Diagram]
5
CN2 (DM&PAS CONNECTION PLUG)
CN3 (FROM VALVE TRAIN
7 8
1 2 3 4
VIEW
Ver. 14
(3A)
(15A)
*3-1
E
F1
MC
*1 *1
*3
NO
COM
PGSH
181
P
NC
LK
N
LB PBLK
PBLK
LOW
N
HI
P
*8
*9
. In case of two single valves
NO
COM
P
NC
PGLK
PS
301
302303 304305
EMPTY TERMINAL
EV2
PGSL
PGSH
*3
5 12
23 2524
EV2
EV1
13 11
115 12
23 2524
6
*9
*10
4 10
181
EV1
PGLK
*3
*3-1
23 25
24
EV2EV1
26
*9
*10
*10 . In case of one double valves
PAS
COM
P
NO
28
29 32A
E
19 20
1
2
*4
7
936 8
13
SQN30.111A2700
5
2
4
N
*4
7 936 8 13
SQN30.111A2700
5 2
4
28
29
11
N
5
10
8 9
1 2 3 4 7
14
13
6
12
11
RK : RELAY FOR LAMP (MY3N, 14P)
: BURNER POWER S/W & LAMP
30 31
31B 32 32C
3 4 9 10 5 6
33
11
CONNECTION PLUG)
CN3 CN2 TB6 CN3 CN3 CN2 TB3 CN3 TB2
8 11
12
9
301
302303 304305
. HI or LOW or AUTO transfer S/W
CN 1
7
1bp31
1bp32
TB3
TB7
+
-
*5-1
LK : BURNER LEAK LAMP
LP : BURNER POWER LAMP
PBLK : GAS LEAK RESET PUSH S/W
2rg/2 2rg/10 1bp311bp32
TB4 TB2
*11 . Jumper for Gas Burner only
*11*11
PS
LP
3863
N
39 35 36 70
*6
. PANASONIC TERMINAL NUMBER
*7
*1
*2
*3-1
*4
*5
*6
*7
: FAN MOTOR
: FAN MOTOR THERMAL RELAY
: FAN MOTOR MAGNET CONTACT
: BURNER CONTROLLER
: BURNER LOCK-OUT LAMP
: GAS PRESSURE HIGH S/W
: GAS PRESSURE LOW S/W
: FAN MOTOR OVERLOAD
: FAN MOTOR MAGNET
: AIR PRESSURE S/W
: LEAKAGE CONTROL S/W
: IGNITION TRANSFORMER
: COMBUSTION RELAY (MY4N, 14P)
: GAS SOLENOID V/V
: TIMING RELAY (H3Y-4,14P)
: DAMPER MOTOR
: RELAY FOR DAMPER MOTOR (MY2N, 8P)
: TERMINAL FOR OUTSIDE WIRING
: LOAD LIMIT S/W
: HI/LOW CONTROL S/W
: TERMINAL FOR INSIDE WIRING
27
FD
E
. SEPARATE TYPE WHEN BUILT IN BCP
. Ø1 MOTOR WIRING
. PGSH : LOW PRESSURE WIRING,
EXCLUDING THE HIGH PRESSURE
. SQN30.111 WIRING
(PANASONIC BURNER MODEL : P50~P250)
. FIELD WIRING
국내 BURNER MODEL : P3M~P60M
. In case of gas supply pressure < 350mmAq
(PGSH only for gas supply pressure > 350mmAq)
*3
. Only for UV scanner
. Only for Flame rod detector
P
*5-1
IV
12
6
11
10
2PH 2F HI
MF9
AU
236 12 81
NO
COM
P
PGSL
16
1726
183182
EV2EV1
158157
9
PGSH
NC
P
COM
*8
P
13
14
II III
I
23
PR (MF2 RENEW)
P
*3
P
*4
EV2EV1
MC
HIGH/LOW 2 STAGE CONTROL GAS BURNER (FULL CHECK LEAK CONTROL & P.C.B)
MA
LB
AB
PR
RD
T1
CTV
CV
PGSH
PS
PGSL
MV
ST
* LEGEND
CRTV
DM
EV1,2
BV
PAS
PGLK
TA
EV1,2 : GAS SOLENOID V/V LAMP
T1(20sec)
MF2 RENEW(35sec)
EV2
MF2 RENEW
T1
MV
EV1
II
III
I
- NOTE -
■ Full open pre-purge
■ High-low 2 stage butterfly valve
RC
*T1 shouid be set under 25sec.
F
*1
13
14
1
*5
NC
P
TAPAS
COM
NO
NO
P
PGSL
COM
MV
E WU
V 16 17
21
2019
22 23 3425
24
183
157
35
182
158
95
96
A2A1
TB1 MA
98764
*7
LBABST
21
50/60Hz
220VxΦ1
PHN
50/60Hz
220/380VxΦ3
3
TR S
*5
BVCRTVFD