EasyManua.ls Logo

Spirax Sarco BC3250 - Page 23

Spirax Sarco BC3250
76 pages
Print Icon
To Next Page IconTo Next Page
To Next Page IconTo Next Page
To Previous Page IconTo Previous Page
To Previous Page IconTo Previous Page
Loading...
IM-P403-89 EMM Issue 8
23
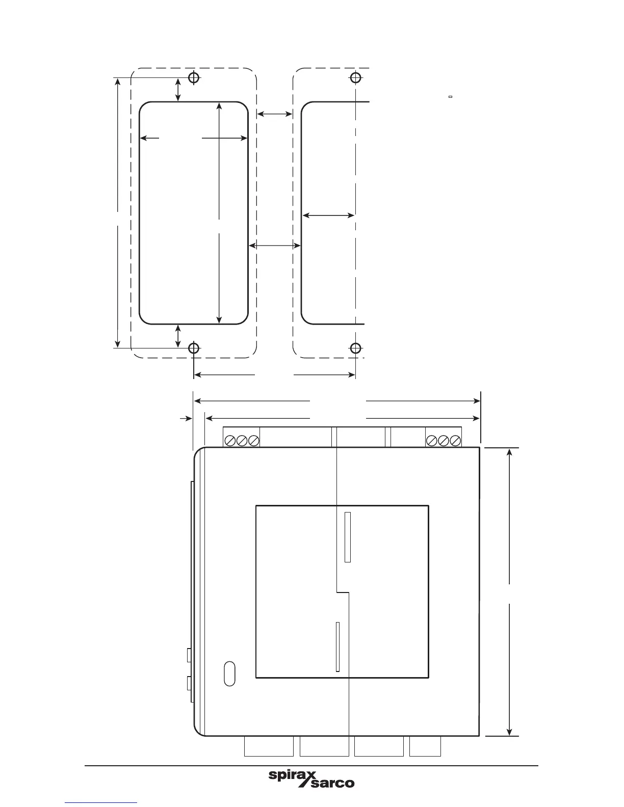
Ø 4.2 mm
10 mm
22
mm
Fig. 15
Chassis plate / panel
- cutout diagram
112 mm
67 mm
10 mm
45 mm
92 mm
22.5
mm
Ø 4.2 mm
15
mm
Ø 4.2 mm
Ø 4.2 mm
120 mm
8 mm
112 mm
120 mm

Related product manuals