EasyManua.ls Logo

stertil COMBILOK - Page 61

stertil COMBILOK
Print Icon
To Next Page IconTo Next Page
To Next Page IconTo Next Page
To Previous Page IconTo Previous Page
To Previous Page IconTo Previous Page
Loading...
57
DESCRIPTION
2 lamp traffic light 40W 230V
(RED
- above GREEN - under RND 200)
Flashlight (RED)
Acoustic alarm
Light bulb
Cover hydraulic unit
Sensor
Bracket
Kit option inside traffic lights (aftermounting)
Additional print traffic lights inside build
ing
Inside traffic light 40W 230V (RND 80)
Cable inside traffic lights
** OPTION
REFERENCE
69
-202-001
69
-202-002
03
-710-630
69
-701-001
03
-705-530
69
-205-001
03
-705-535
03
-710-920
See
FIG. D pos. 11
69
-202-005
03
-710-921
INDE
X
10
11
12
13
14
15
16
20**
21**
22**
23**
DESCRIPTION
Limit switch
Electric cable (20380) Contr. box
- Cross head
Electric cable (26340) Contr. box
- Cross head
Electric cable (2000) Contr. box
- Unit
Electric cable (12000) Contr. box
- Unit
Electric c
able-tree cross head
Cable
-tree hydr. unit
Traffic light cable
Motor cable
Motor cable long
Earth cable
Control box
* For control box at opposite position of dooropenining
REFERENCE
1002
-17-53-04
03
-705-601
03
-705-913
03
-700-602
03
-705-911
03
-710-603
03
-700-604
03
-700-605
03
-700-606
03
-705-912
02
-335-602
03
-700-650
INDEX
1
2A
2B *
3A
3B *
4
5
6
7A
7B *
8
9
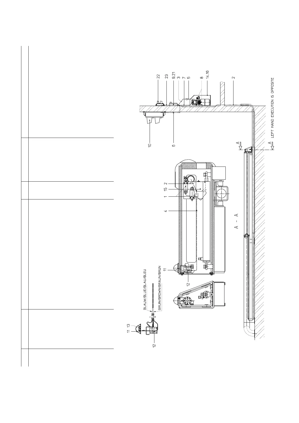
FIG. E SAMENSTELLING ELEKTRISCH
FIG. E AUFBAU ELEKTRIK
FIG. E ASSEMBLAGE ELECTRIQUE
FIG. E
ASSEMBLY ELECTRIC

Table of Contents