EasyManua.ls Logo

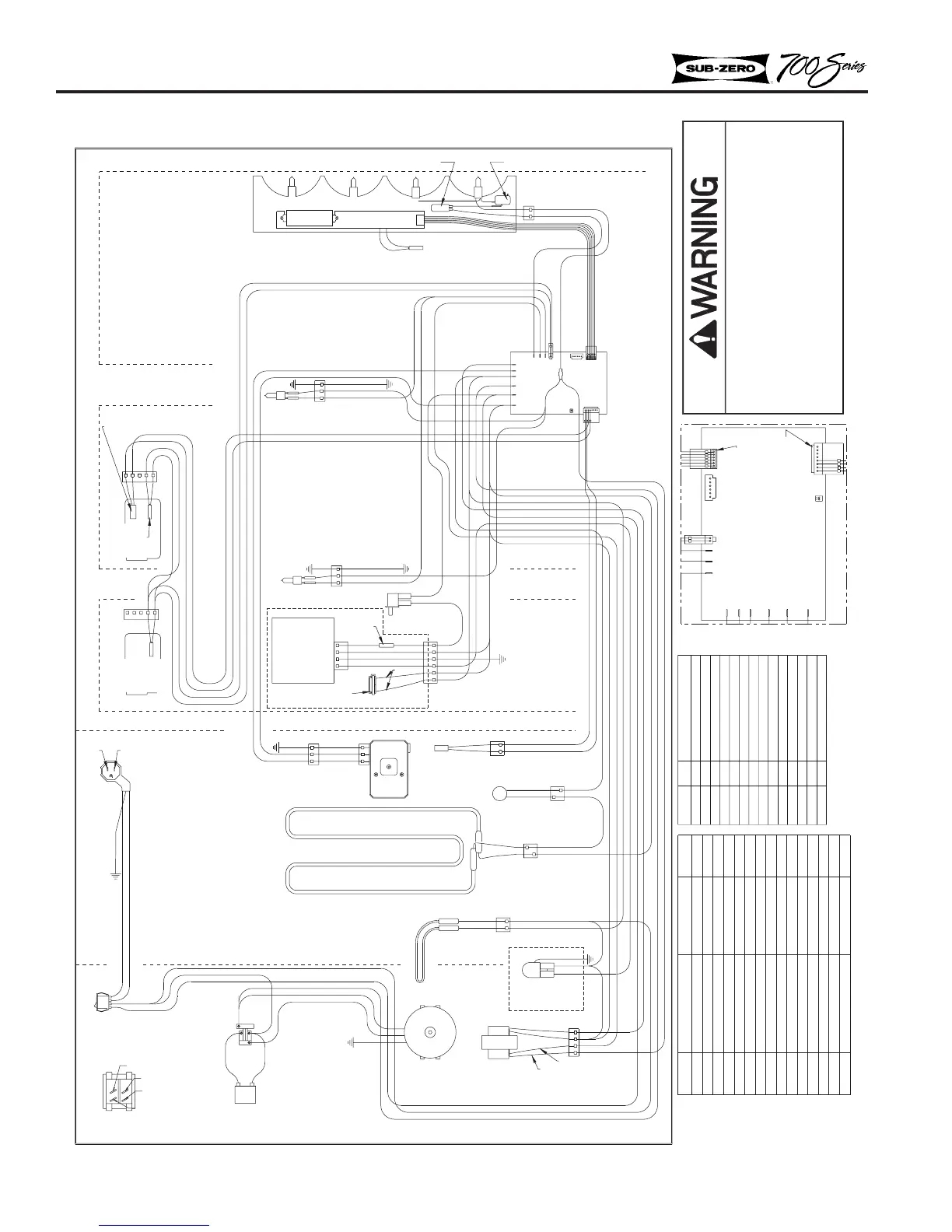
Sub-Zero 700 Series - Wiring Diagram - Model 700 TF, 700 TFI

Sub-Zero 700 Series
92 pages
Print Icon
To Next Page IconTo Next Page
To Next Page IconTo Next Page
To Previous Page IconTo Previous Page
To Previous Page IconTo Previous Page
Loading...
WIRING DIAGRAMS & SCHEMATICS
7-6
DISPLAY
REMOTE
THERMISTORS
ZONE
INTERLOCK SWITCH
THERMAL OVERLOAD
SWITCH
DOOR
THERMISTOR
WHITE W/BLACK
BLACK
HEATER
FILL TUBE
FUSE
ICEMAKER
WHITE W/PINK
L1 L2
PLAIN
BLACK
RIBBED
WHITE
severe electrical shock.
Failure to observe the above warnings may result in
service is completed.
Be sure all grounding devices are connected when
beginning service.
Disconnect appliance from electrical supply before
service personnel only.
This wiring information is provided for use by qualified
WIRING DIAGRAM - MODEL 700TF, 700TFI
GREEN
PLAIN
RIBBED
FAN MOTOR
CONDENSER
CAPACITOR
RUNNING
(OPTIONAL)
SOLENOID
ICEMAKER
CORD
SUPPLY
POWER
RELAY
STARTING
COMPRESSOR
COMPRESSOR
SWITCH
POWER
MASTER
TAN
WHITE
PURPLE
WHITE
WHITE
TAN
(OPTIONAL)
ICEMAKER
PINK
TAN
GREEN
WHITE W/PINK
185VA
TRANSFORMER
ROTATED 90 DEGREES
CONTROL BOARD DETAIL
LIGHT(UPPER)
FREEZER
LIGHT(LOWER)
FREEZER
SENSOR
EVAPORATOR
ORANGE
WHITE
TERMINATOR
DEFROST
GRAY
BLUE
1
2
3
4
TEST
P15
P1
P7
P9
P8
P14
P6
P5
WHITE
BLACK
PURPLE
BLUE
RED
ORANGE
P10
WH/OR
WH/BK
P11
WH/BR
P12
WH/RD
P4
P2
P3
1
1
1
11
GREEN
WHITE W/BROWN
WHITE W/PINK
GREEN
LT. BLUE W/YELLOW
LT. BLUE W/YELLOW
LT. BLUE W/YELLOW
LT. BLUE W/YELLOW
AUXILIARY CHART
WHITE
MOTOR ECM
EVAPORATOR
HEATER
DRAIN
BLUE
WHITE
WHITE
PURPLE
BLACK
-----
------
2
1
WHITE
WHITE W/RED
WHITE
RED
BLACK
WHITE
GREEN
ORANGE
WHITE
PURPLE
TAN
BLACK
BLACK
DEFROST HEATER
1
BLACK
BLACK
BLACK
BLACK
1
2
BLUE
P1
1
LT. BLUE W/BLACK
SWITCH
ICEMAKER
GREEN
WHITE
LIGHTS
UPPER
2
1
3
SEE AUX. CHART
GREEN
TERM.
No#
P3
2
3
2
4
5
6
1
3
COLOR
BLACK
WHITE
RED
YELLOW
ORANGE
BLUE
1
2
BLACK
1
2
3
1
1
23
45
P1 1
2
1
2
3
4
5
SWITCH
DOOR
3
4
5
6
7
8
EMPTY
EMPTY
EMPTY
LT. BLUE W/YELLOW
LT. BLUE W/BLACK
EMPTY
LT. BLUE W/YELLOW
LT. BLUE W/BLACK
LT. BLUE W/YELLOW
LT. BLUE W/YELLOW
WHITE W/RED
LT. BLUE W/BLACK
WHITE
GRAY
GRAY
BLUE
2
BLACK
WHITE W/RED
WHITE W/RED
WHITE W/BROWN
WHITE W/PINK
WHITE W/PINK
WHITE W/PINK
SEE AUX. CHART
WHITE W/ORANGE
DOOR SWITCH
1
2
3
4
5
6
PINK
WHITE
TAN
GREEN
WHITE
BLUE
1
2
3
1
4
TEST
P15
P1
P7
P9
P8
P14
P6
P5
P10
P11
P12
P4
P2
P3
1
1
11
BLACK
PURPLE
BLACK
TERM.
DESCRIPTION
COLOR
ABBR.
P1 THERMISTORS -----
LIGHT SWITCH WH/RD
-----
------ -----
L2-NEUTRAL 115 WHITE
L1-HOT 115 BLACK
LIGHTS-120V OUT ORANG
DEFROST HEATER BLUE
EVAPORATOR FAN RED
LIGHT ZONE 1 WH/OR
TRANSFORMER IN-12V WH/BK
LIGHTS-LOWER-12V WH/BR
------ ----
COMPRESSOR PURPL
P2
P3
P4
P5
P6
P7
P8
P9
P10
P11
P12
P13
P14
MANUFACTURING TEST TESTP15
WHITE/RED
------
WHITE
BLACK
ORANGE
BLUE
RED
WHITE/ORANGE
WHITE/BLACK
WHITE/BROWN
------
PURPLE
------
REMOTE DISPLAY
WHITE W/BLACK
GREEN
RED
WHITE
1
2
BACK VIEW
POWER SWITCH
2
WHITE
RED
3
BLUE
WHITE
WHITE
WHITE W/RED
WHITE W/RED
PINK
LT. BLUE W/YELLOW
LT. BLUE W/YELLOW
BLUE

Table of Contents

Other manuals for Sub-Zero 700 Series

Related product manuals