EasyManua.ls Logo

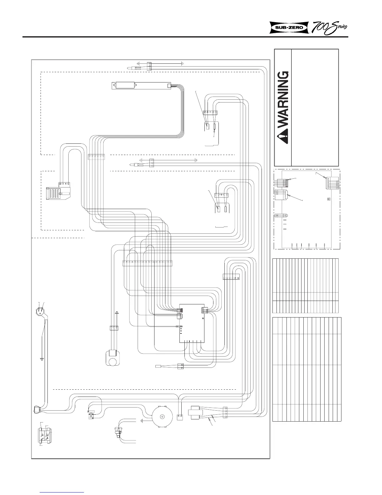
Sub-Zero 700 Series - Wiring Diagram - Model 700 BR

Sub-Zero 700 Series
92 pages
Print Icon
To Next Page IconTo Next Page
To Next Page IconTo Next Page
To Previous Page IconTo Previous Page
To Previous Page IconTo Previous Page
Loading...
WIRING DIAGRAMS & SCHEMATICS
7-8
THERMISTORS
ZONE
DISPLAY
REMOTE
BAFFLES
CABINET
SWITCH
DOOR
THERMISTOR
THERMISTOR
WHITE W/TAN
WHITE W/PINK
L1
L2
RIBBED
BLACK
PLAIN
WHITE
severe electrical shock.
Failure to observe the above warnings may result in
service is completed.
Be sure all grounding devices are connected when
beginning service.
Disconnect appliance from electrical supply before
service personnel only.
This wiring information is provided for use by qualified
BLACK
SENSOR
EVAPORATOR
GREEN
BLACK
2
ORANGE
BLUE
WHITE
YELLOW
BLACK
1
2
1P1
RED
GREEN
YELLOW/WHITE
2
EMPTY
2
2
3
P3
1
2
3
4
5
6
RED
1
LT. BLUE W/YELLOW
LT. BLUE W/YELLOW
WHITE W/RED
WHITE W/RED
WHITE
3
1
2
4
5
PURPLE
3
ORANGE
WHITE W/BROWN
WHITE W/RED
WHITE W/BROWN
WHITE W/PINK
4
6
7
8
RED
1
YEL/WH
2
YEL/BK3
YEL/RED
4
5
LT.BLU/YEL
6
BLACK
7
WHITE8
RED
9
WHITE
10
11
12
WH/RED
13
LT.BLU/RED
14
LT.BLU/YEL
15
YELLOW
16
ORANGE
17
BLUE
CONTROL BOARD DETAIL
ORANGE
18
WHITE
WH/RED
LT.BLU/RED
EMPTY
EMPTY
1
2
6
5
6
P4
COLOR
WHITE W/RED
WHITE
RED
LT. BLUE W/RED
LT. BLUE W/RED
WHITE W/PINK
LT. BLUE W/YELLOW
WHITE W/RED
60VA
TRANSFORMER
YELLOW
P6
ORANGE
SEE AUX. CHART
BLUE
WHITE
WHITE
PURPLE
ORANGE
BLUE
SWITCH
POWER
MASTER
COMPRESSOR
WHITE
CORD
SUPPLY
POWER
BLACK
P2
SEE AUX. CHART
EVAPORATOR FAN
YELLOW W/WHITE
YELLOW W/RED
YELLOW W/BLACK
1
2
3
4
3
SWITCH
DOOR
LT. BLUE W/YELLOW
BLUE W/RED
WHITE W/RED
WHITE W/RED
LT. BLUE W/RED
GREEN
LT. BLUE W/RED
ORANGE
BLUE W/YELLOW
BLACK
WHITE/RED
RED
P3
------
-----
3
1
WHITE W/RED
1
2
P4
------
LT. BLUE W/WHITE
REMOTE DISPLAY
-----
P5
------
WHITE
-----
P6
------
BLU/BK
BLACK
----
P7
COMPRESSOR
ORANGE
PURPLE
BLACK
PURPL
MANUFACTURING TEST
------
TESTP15
BLACK
3
BLU/BK
YELLOW/BLACK
BLUE W/RED
BLUE
1
2
WHITE
GREEN
4
1
4 5
2
PURPLE
3
WHITE
4
WHITE
YELLOW
BLACK
RED
WHITE
BLUE
WHITE
BLACK
YELLOW/RED
1
2
3
4
5
6
BLACK
GREEN
WHITE
5
1
2
3
YEL/WH
TEST
P15
P1
CONTROLS
DRAWER
BLUE W/YELLOW
YELLOW W/WHITE
WHITE
MOTOR
EVAPORATOR
PURPLE
RED
YELLOW W/RED
BLUE
GREEN
PLAIN
RIBBED
YELLOW
ORANGE
P5
WHITE
3
BLACK
WHITE W/BROWN
WHITE W/PINK
P7
P9
P8
THERMISTORS
TERM.
YELLOW W/BLACK
WHITE
BLACK
4
RED
PURPLE
RED
TEST
P15
ORANGE
BLUE
BLACK
PURPLE
WHITE
ORANGE
DESCRIPTION
COLOR
ABBR.
BLACK
P1
FAN MOTOR
CONDENSER
CONTROL
BAFFLE
BLACK
BLUE
YEL/RED
WH/YL
WHITE
WHITE
1
P8
1
P1
LIGHT SWITCH
RED
WHITE
WIRING
ALT COMPRESSOR
WH/RD
P9
BLUE
-----
1
2
------
YEL/BK
P1
P7
P9
P8
P14
P6
P5
P10
P11
P12
BLACK
P4
P2
P3
1
1
1
1
LIGHT(UPPER)
REFRIGERATOR
LIGHT(LOWER)
REFRIGERATOR
RED
P11
P12
P4
P2
P3
1
1
1
1
EMPTY
TERM.
No#
AUXILIARY CHART
BACK VIEW
POWER SWITCH
WHITE
CABINET BAFFLES
5
P10
-----
------
3
SEE AUX. CHART
P11
L2-NEUTRAL 115
------
WHITE
P12
L1-HOT 115
------
LT. BLUE W/YELLOW
LT. BLUE W/BLACK
LT. BLUE W/WHITE
BLACK
LT. BLUE W/YELLOW
1
P13
RED
ORANGE
P10
LIGHTS-120V OUT
PURPLE
WHITE W/BROWN
P14
ORANG
P14
EMPTY
LT. BLUE W/BLACK
WHITE W/PINK
------
------
-----
WIRING DIAGRAM - MODEL 700BR

Table of Contents

Other manuals for Sub-Zero 700 Series

Related product manuals