EasyManua.ls Logo

Sullair 900 - Page 30

Sullair 900
80 pages
To Next Page IconTo Next Page
To Next Page IconTo Next Page
To Previous Page IconTo Previous Page
To Previous Page IconTo Previous Page
Loading...
2: Description 600H, 750, 750H, 750HH, 825, 900, 900H, 1050 T3 CAT User Manual
02250197-981 R01
24 Subject to EAR, ECCN EAR99 and related export control restrictions.
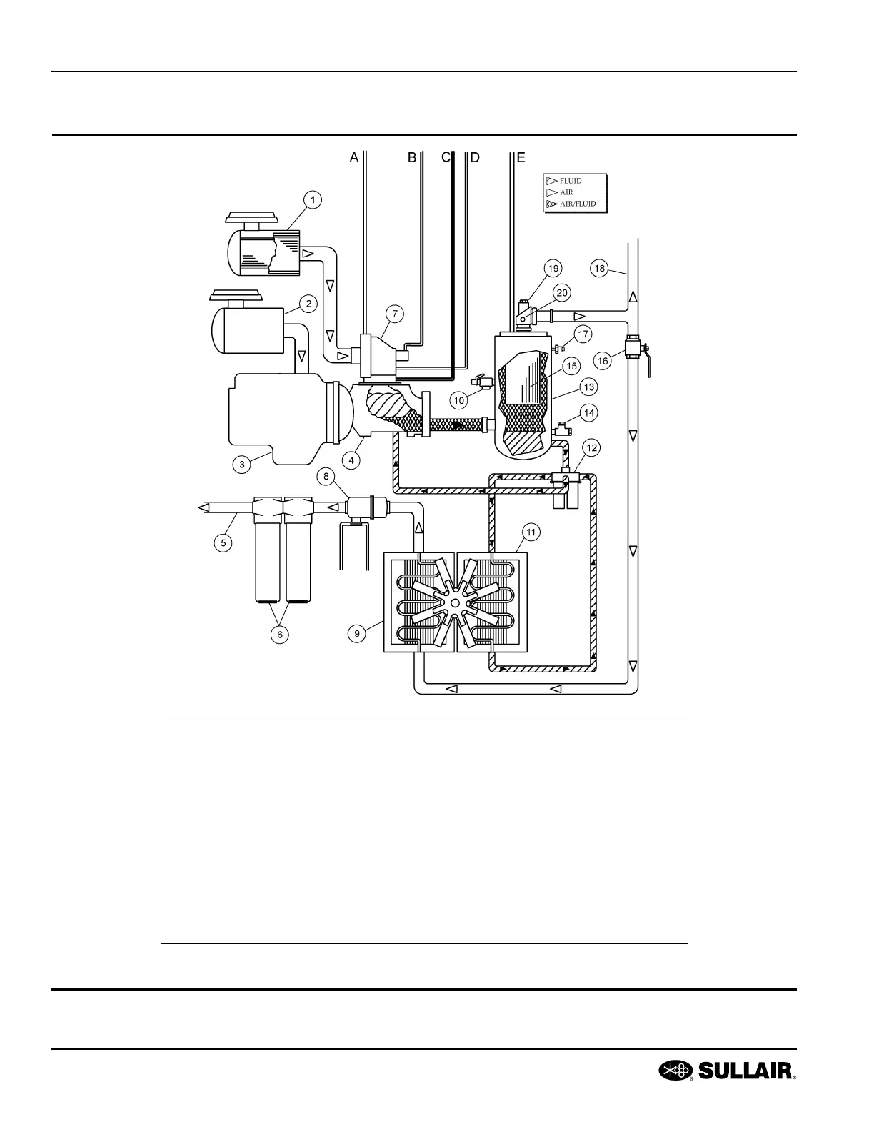
Figure 2-5: Compressor flow diagram—all models
1. Compressor air filter 11. Fluid cooler
2. Engine air filter 12. Thermal valve/fluid filter assembly
3. Engine 13. Receiver tank
4. Compressor unit 14. Fluid level sight gauge
5. Service air (aftercooled) 15. Final fluid separator element
6. Discharge air filters 16. Ball valve
7. Air inlet valve 17. P3 pressure transducer
8. Moisture separator 18. Service air (non-aftercooled)
9. Aftercooler 19. Minimum pressure check valve
10. Relief valve 20. Temperature shutdown switch

Table of Contents

Related product manuals