EasyManua.ls Logo

Supermicro X7DB3 - Universal Serial Bus (USB0;1); Chassis Intrusion

Supermicro X7DB3
93 pages
Print Icon
To Next Page IconTo Next Page
To Next Page IconTo Next Page
To Previous Page IconTo Previous Page
To Previous Page IconTo Previous Page
Loading...
Chapter 2: Installation
2-15
GLAN1
®
JLAN1
S
UPE R
GLAN2
F
a
n
1
8-pinPWR
FP C ontrol
SPK
PW LED
JOH1
Fa
n3
ID
E
1
Floppy
Fa
n4
S
ATA
1
S
ATA
0
USB2/
3
S
MB
P
CI-
X
1
00
MHz
ZCR
P
C
I
-
X
13
3 M
H
z
J
WD
Ba
ttery
V
GA
P
C
I-E
x
p
x
8
N
orth Bridge
V
G
A
C
O
M1
USB0
/
1
KB
/
Mo
u
se
F
an6
Fan
5
ATX PW
R
4
-
P
in
PWR
J3P
Parrallel
Port
24-Pi
n
J
P
G
1
SAS CTRLR
Adaptec 9410W
C
PU
1
C
PU
2
P
X
H
DIMM 1
A (Bank 1)
F
a
n
7
JAR
PSF
F
an2
C
o
mp
act F
l
ash
LE1
F
an
8
J
CF1
J
W
F
1
S
A
T
A3
S
A
T
A2
S
ATA
4
S
ATA
5
J
L
1
J
K
1
S
lot1
S
lo
t
2
S
l
o
t
3
P
C
I
-
X
13
3
MH
z
S
lot4
JPL1
J
P
L2
S
lot5
PCI-Exp x4
S
lot6
PCI-Exp x8
SEPC
SIMLP IPMI
S
lot7
D
IM
M
1
B (Bank 1
)
D
IMM
2
A (Ba
n
k
2
)
DIMM
2
B (Bank 2)
DIM
M
3A
(
B
a
n
k
3)
DIMM 3
B (
B
ank 3)
DIMM 4
A (B
a
n
k
4)
DI
M
M
4
B (Bank
4)
J
7
J
B
T
1
U
SB
4
JWO
R
JCOM2
WOL
S
I/O
JP1
L
A
N
C
T
RL
R
J27
J2
8
SGPIO
2
SMBPS
CTRLR
Inte
l
50
00P
S
o
u
t
h B ridge
Xeon Dual Core
X
eo
n
D
u
a
l Core
J
SA3
SA
S0
-
3
S
A
S4-
7
J
P
S1
I
n
t
e
l E S B 2
SGPIO
1
B
P
LED
C
o
n
X7DB
3
B
IOS
Buzzer
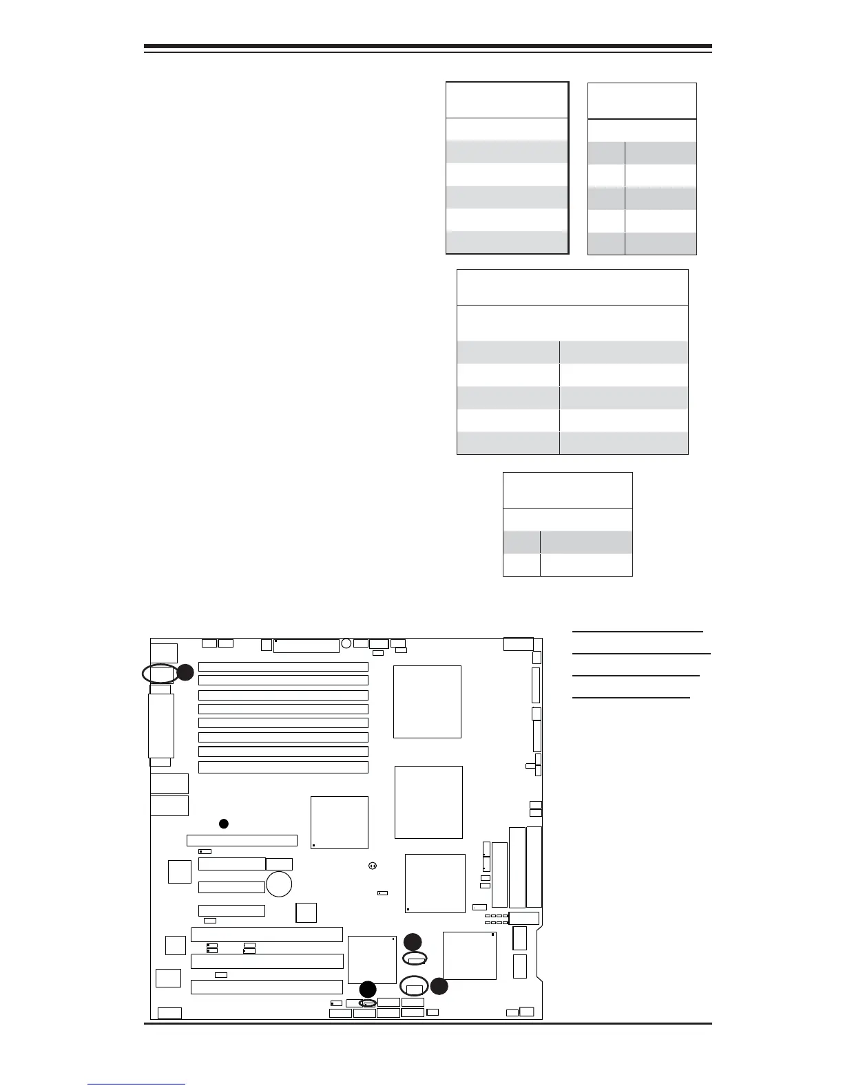
Universal Serial Bus (USB)
There are ve USB 2.0 (Universal Se-
rial Bus) ports/headers on the moth-
erboard. Two of them are Back Panel
USB ports (USB#0/1:JUSB1), and
the other three are Front Panel USB
headers (USB#2/3:JUSB2, USB#4:
JUSB3). See the tables on the right
for pin de nitions.
Chassis Intrusion
A Chassis Intrusion header is located
at JL1 on the motherboard. Attach the
appropriate cable from the chassis to
inform you of a chassis intrusion when
the chassis is opened.
Chassis Intrusion
Pin De nitions (JL1)
Pin# De nition
1 Intrusion Input
2 Ground
A
B
C
A. Backpanel USB 0-1
B. Front Panel USB 2-3
C. Front Panel USB 4
D. Chassis Intrusion
Back Panel USB
(USB0/1)
Pin# De nitions
1 +5V
2 PO-
3 PO+
4 Ground
5 N/A
Front Panel USB
Pin De nitions (USB4)
USB4
Pin # De nition
USB5
Pin # De nition
1 +5V 1 +5V
2 PO- 2 PO-
3 PO+ 3 PO+
4 Ground 4 Ground
5 Key 5 No connection
Front Panel USB
(USB2/3)
Pin# De nition
1 +5V
2 Data-
3 Data+
4 Ground
5NA
D

Table of Contents

Related product manuals