EasyManua.ls Logo

Supermicro X7DB3 - Clear CMOS; Watch Dog

Supermicro X7DB3
93 pages
Print Icon
To Next Page IconTo Next Page
To Next Page IconTo Next Page
To Previous Page IconTo Previous Page
To Previous Page IconTo Previous Page
Loading...
Chapter 2: Installation
2-25
GLAN1
®
JLAN1
S
UPE R
GLAN2
Fan1
8-pinPWR
FP C ontrol
SPK
PW LED
JOH1
Fa
n3
ID
E
1
Flop
py
Fa
n4
S
ATA
1
S
ATA
0
USB2/
3
S
MB
P
CI-
X
1
00
M
Hz
ZCR
P
C
I
-
X
13
3 M
H
z
J
W
D
Ba
ttery
V
GA
P
C
I-E
x
p
x
8
N
orth B ridge
V
G
A
C
O
M1
USB0
/
1
KB
/
Mo
u
se
F
an6
Fan
5
ATX PW
R
4
-
P
in
PWR
J3P
Parrallel
Port
24-Pi
n
J
P
G
1
SAS CTRLR
Adaptec 9410W
C
PU
1
C
PU
2
P
X
H
DIMM 1
A (Ban
k
1)
F
a
n
7
JAR
PSF
F
a
n
2
C
o
mp
act F
la
s
h
LE1
F
an
8
J
CF1
J
W
F
1
S
A
T
A3
S
A
T
A2
S
ATA
4
S
ATA
5
J
L
1
J
K1
S
lot1
S
lo
t
2
S
l
o
t
3
P
C
I
-
X
13
3
M
H
z
S
lot4
J
P
L1
J
P
L2
S
lot5
PCI-Exp x4
S
lot6
PCI-Exp x8
SEPC
S IMLP IP MI
S
lot7
D
IM
M
1
B (Bank 1)
D
IMM
2
A (Ba
n
k
2
)
DIMM
2
B (Bank 2)
DIM
M
3A
(
B
a
n
k
3)
DIMM 3
B (
B
ank 3)
DIMM 4
A (B
a
n
k
4)
DI
M
M
4
B (Bank
4)
J7
J
B
T1
U
SB
4
JWO
R
JCOM2
WOL
S
I/O
JP1
L
A
N
C
T
R
L
R
J27
J2
8
SGPIO
2
SMBPS
C
TRL
R
Inte
l
50
00P
S
o
u
t
h B ridge
Xeon Dual Core
X
eo
n
D
u
a
l Core
J
SA3
SA
S0
-
3
SA
S4
-
7
J
P
S1
I
n
t
e
l E S B 2
SGPIO
1
B
PLED
C
o
n
X7DB
3
B
IOS
Buzzer
CMOS Clear
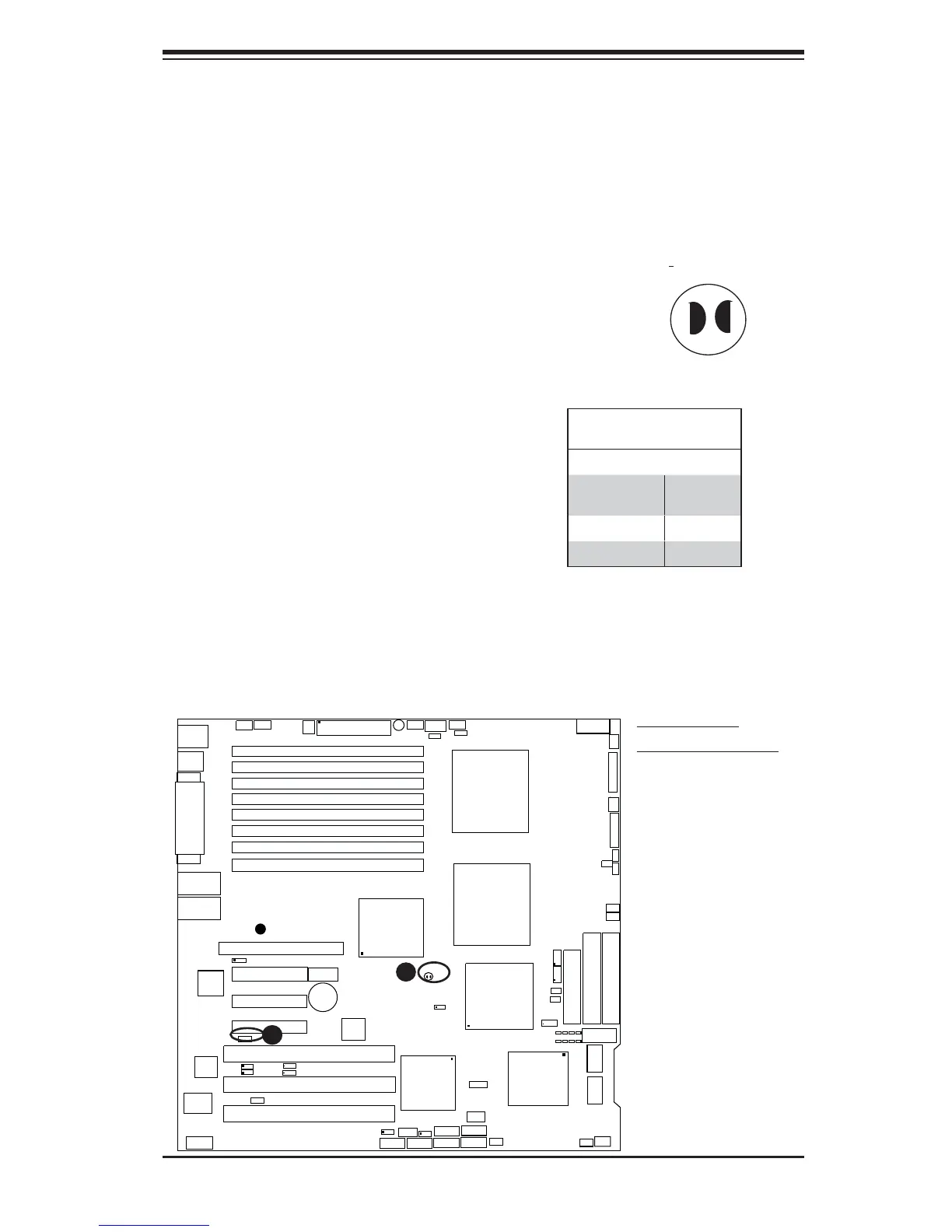
JBT1 is used to clear CMOS. Instead of pins, this "jumper" consists of contact
pads to prevent the accidental clearing of CMOS. To clear CMOS, use a metal
object such as a small screwdriver to touch both pads at the same time to short
the connection. Always remove the AC power cord from the system before clearing
CMOS. Note: For an ATX power supply, you must completely shut down the system,
remove the AC power cord and then short JBT1 to clear CMOS.
A
B
A. Clear CMOS
B. Watch Dog Enable
Watch Dog Enable/Disable
Watch Dog is a system monitor that can
reboot the system when a software ap-
plication hangs. Close pins 1-2 to re-
set the system if an application hangs.
Close pins 2-3 to generate a non-mask-
able interrupt signal for the application
that hangs. See the table on the right for
jumper settings. Watch Dog must also
be enabled in the BIOS.
Watch Dog
Jumper Settings (JWD)
Jumper Setting De nition
Pins 1-2 Reset
(*default)
Pins 2-3 NMI
Open Disabled

Table of Contents

Related product manuals