EasyManua.ls Logo

Supermicro X7DB3 - VGA Connector

Supermicro X7DB3
93 pages
Print Icon
To Next Page IconTo Next Page
To Next Page IconTo Next Page
To Previous Page IconTo Previous Page
To Previous Page IconTo Previous Page
Loading...
2-22
X7DB3 User's Manual
GLAN1
®
JLAN1
S
UPE R
GLAN2
F
a
n
1
8-pinPWR
FP C ontrol
SPK
PW LED
JOH1
Fa
n3
ID
E
1
Floppy
Fa
n4
S
ATA
1
S
ATA
0
USB2/
3
S
M
B
P
CI-
X
1
00
MHz
ZCR
P
C
I
-
X
1
3
3 M
H
z
J
WD
Ba
ttery
V
GA
P
C
I-
Exp x8
Nort
h B ridge
V
G
A
C
O
M1
USB0/1
KB
/
Mo
u
se
F
an6
F
a
n
5
ATX PWR
4
-
P
in
PWR
J3P
Parrallel
Port
24-Pi
n
J
P
G
1
SAS CTRLR
Adaptec 9410W
C
PU
1
C
PU
2
P
X
H
DIMM 1
A (Ban
k
1
)
F
a
n
7
JAR
PSF
F
an2
C
o
mp
act F
las h
LE1
F
an
8
J
CF1
JWF
1
S
AT
A3
S
AT
A2
S
ATA
4
S
ATA
5
J
L
1
J
K1
S
lot1
S
lo
t
2
S
lo
t
3
P
C
I
-
X
13
3 M
H
z
S
lot4
J
P
L1
J
P
L2
S
lot5
PCI-Exp x4
S
lot6
PCI-Exp x8
SEPC
SIMLP IPMI
S
lot7
DIMM 1
B (Bank 1)
D
IMM
2
A (Ba
n
k
2)
DI
M
M
2
B (Ba
nk 2)
DIMM 3
A
(
B
a
n
k
3)
DIMM 3
B
(
B
ank 3)
DIMM 4
A (Ban
k
4)
DIMM 4
B (Bank 4)
J7
J
B
T1
U
SB
4
JW
O
R
J
C
O
M
2
WOL
S
I/O
JP1
L
A
N
C
T
R
L
R
J27
J28
SGPIO
2
SMBPS
CTRLR
Inte
l
50
00P
S
o
u
t
h
Bridge
Xeon Dual Core
X
eo
n
Du
al
C
ore
J
S
A
3
SA
S0
-
3
S
A
S4-
7
JPS1
I
nte
l E S B 2
SGPIO
1
B
PLE
D
C
o
n
X7D
B3
B
IOS
Buzzer
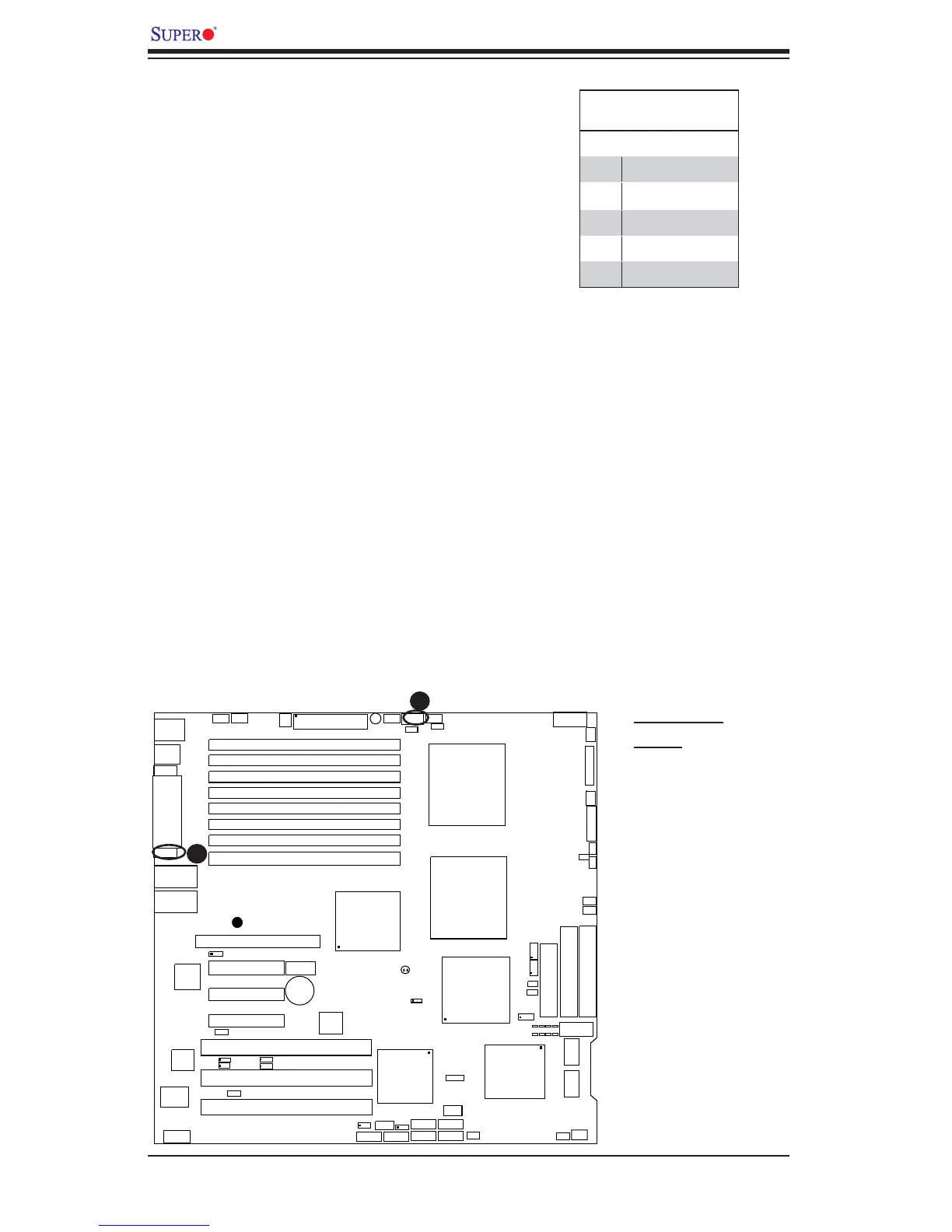
Power SMB (I
2
C) Connector
Power SMB (I
2
C) Connector (J17)
monitors the status of PWR supply,
fan and system temperature. See the
table on the right for pin de nitions.
PWR SMB
Pin De nitions
Pin# De nition
1 Clock
2 Data
3 PWR Fail
4 Ground
5 +3.3V
A
B
A. PWR SMB
B. VGA
VGA Connector
A VGA connector (JG1) is located next
to COM1 port on the IO backplane.
Refer to the board layout below for
the location.

Table of Contents