EasyManua.ls Logo

swaploader SL-520X - Page 32

Default Icon
88 pages
Print Icon
To Next Page IconTo Next Page
To Next Page IconTo Next Page
To Previous Page IconTo Previous Page
To Previous Page IconTo Previous Page
Loading...
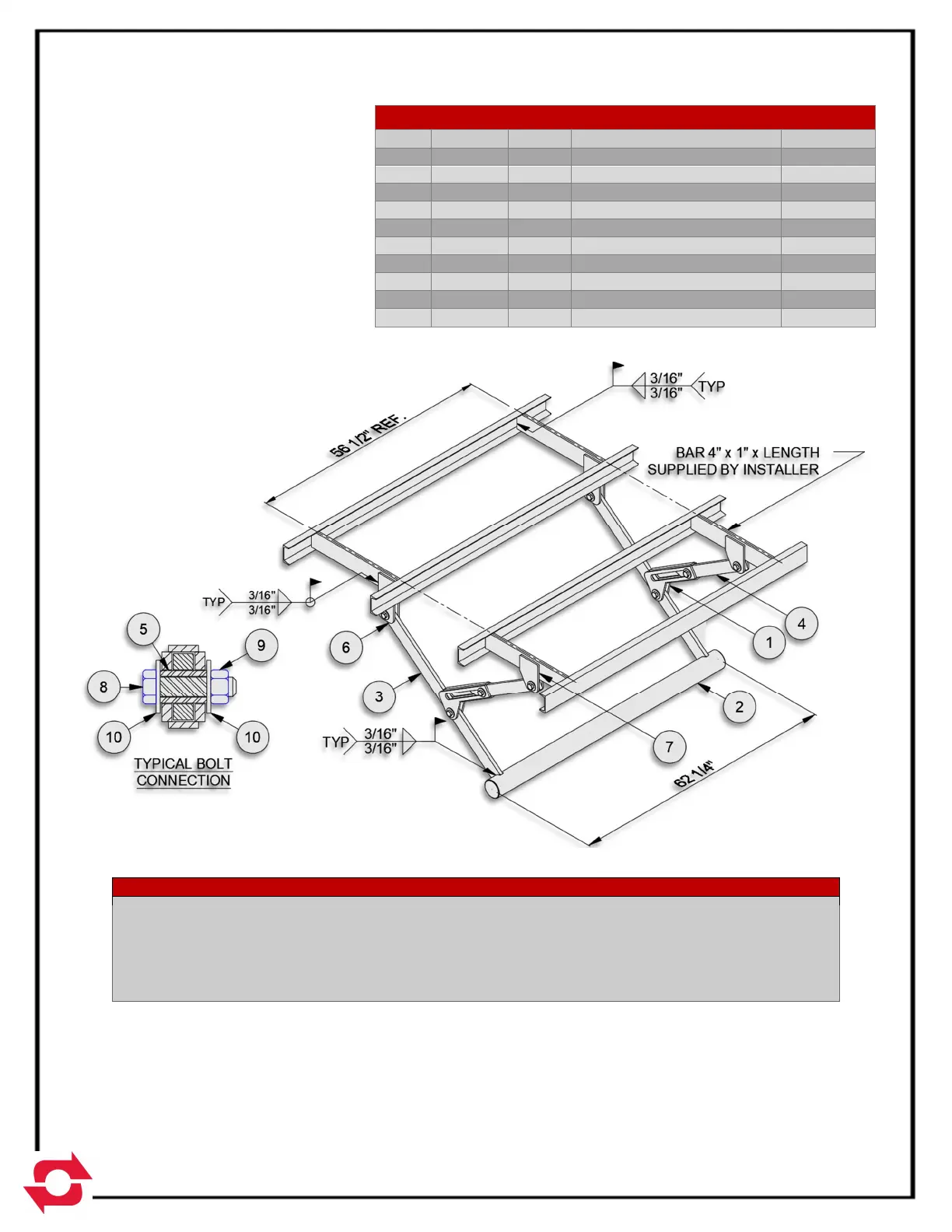
Section II: Installation - Accessories
2.3.INS.ACC.51H44
5. Assemble the Bumper
Assembly to the Front and
Rear Brackets (see Fig. C).
Refer to the Typical Bolted
Connection (see Fig. C) for
all connections.
6. Raise the bumper into the
folded position several
times to ensure the
mechanism works
smoothly and freely.
NOTE:
1. PRIOR TO ANY WELDING, CONSULT THE TRUCK MANUFACTURE FOR ANY SPECIAL PRECAUTIONS THAT MAY
NEED TO BE TAKEN. TYPICALLY, THE BATTERIES MUST BE DISCONNECTED AND THE GROUND LEAD FROM THE
WELDER SHOULD BE AS CLOSE TO THE PART BEING WELDED TO AVOID THE POSSIBILITY OF ARCING ACROSS
BEARINGS, GEARS, ETC.
2. DURING INSTALLATION OF THE BUMPER, CHECK TO MAKE SURE THAT THE POSITION OF THE BUMPER DOES
NOT INTERFERE WITH THE LOADING AND UNLOADING OF TRUCK BODIES.
MATERIAL LIST FOR 51H44
ITEM PART # QTY DESCRIPTION WT-lb/ea.
1 51H45 2 Slip Bracket Wdmt 9.71
2 51H46 1 Bumper Tube Wdmt 47.83
3 62H84 2 Pivot Arm 24.79
4 62H85 2 Slide Arm 10.67
5 62H86 8 Bushing 0.39
6 62H87 4 Front Bracket 4.45
7 62H88 4 Rear Bracket 3.16
8 01P15 8 3/4-10 x 3 HHCS 0.56
9 00P72 8 3/4-10 Locking Hex Nut 0.20
10 00774 16 Ø3/4 Flat Washer 0.05
Figure
C
2-20

Related product manuals