EasyManua.ls Logo

TECOM Challenger10 TS1016 - TS1016 T Panel Enclosure Mounting

TECOM Challenger10 TS1016
46 pages
Print Icon
To Next Page IconTo Next Page
To Next Page IconTo Next Page
To Previous Page IconTo Previous Page
To Previous Page IconTo Previous Page
Loading...
12 Challenger Series Installation and Quick Programming Manual
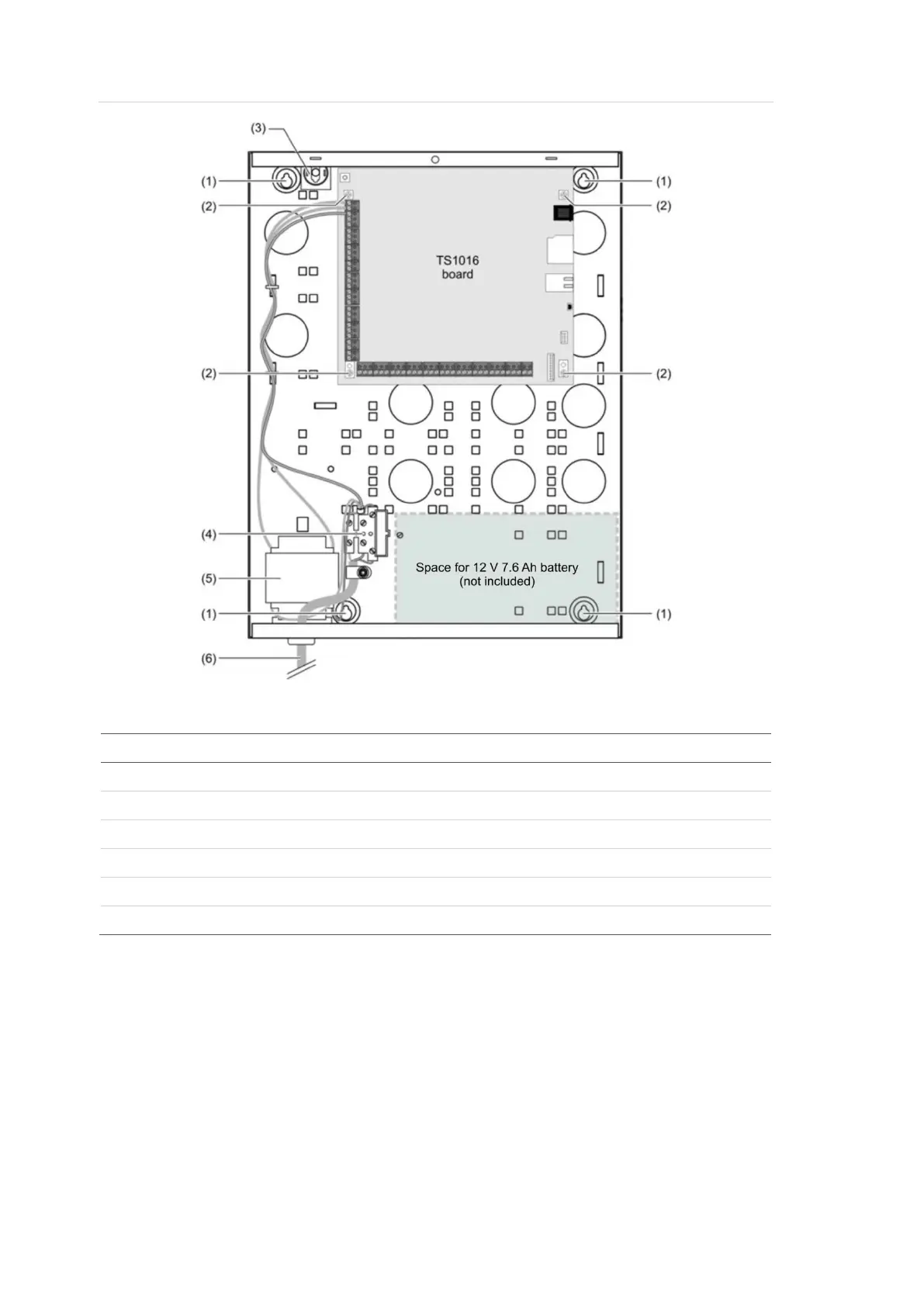
Figure 5: Challenger panel board mounted in enclosure (model TS1016T)
Figure 5 legend
Item
Description
1.
Enclosure mounting points
2.
Board mounting points
3.
Location of tamper switch
4.
240 VAC terminal block with fuse
5.
240 VAC mains transformer
6.
Mains power cord

Related product manuals