EasyManua.ls Logo

Thermal Dynamics CutMaster 75 - System Schematic, 208;230-Volt Units

Thermal Dynamics CutMaster 75
48 pages
Print Icon
To Next Page IconTo Next Page
To Next Page IconTo Next Page
To Previous Page IconTo Previous Page
To Previous Page IconTo Previous Page
Loading...
APPENDIX A-6 Manual 0-2868
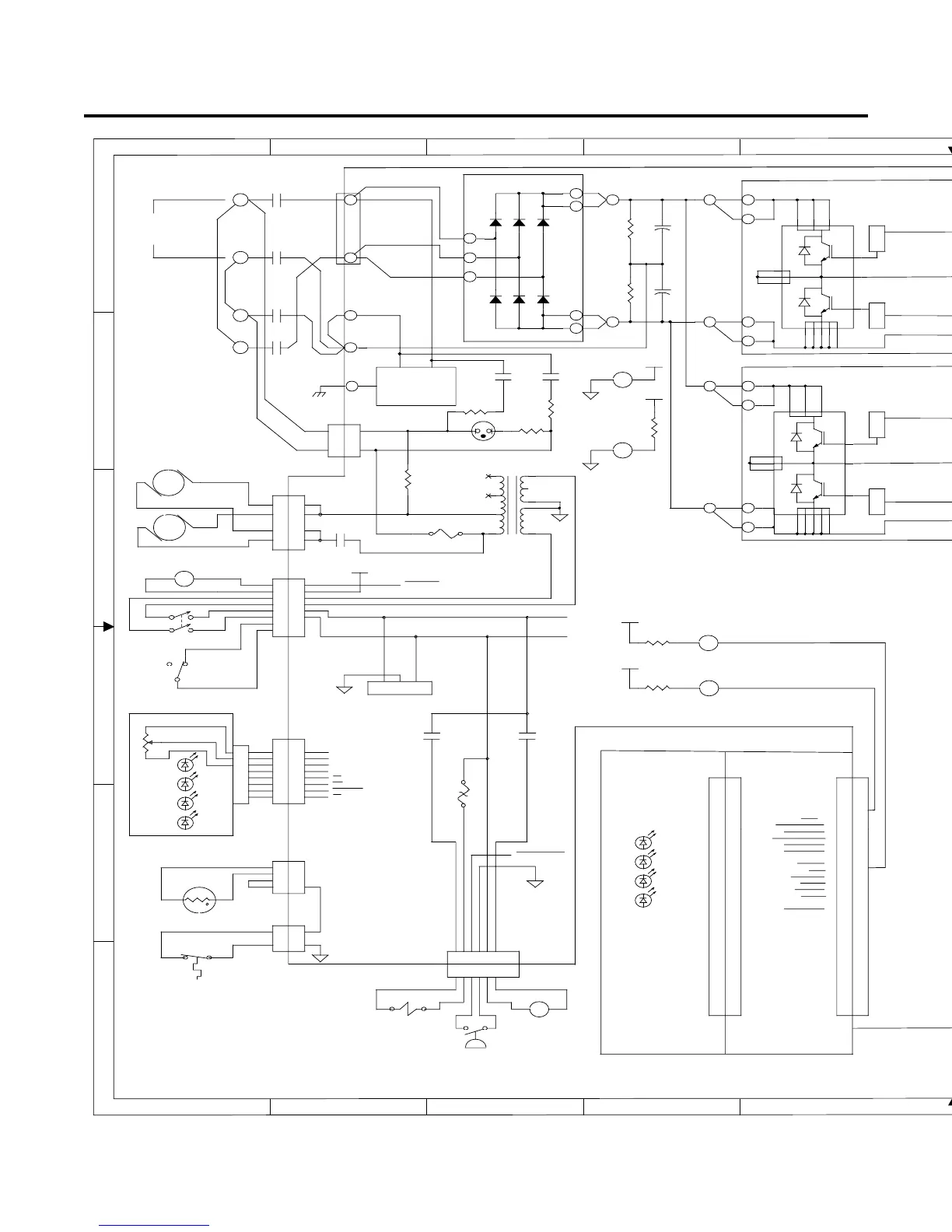
APPENDIX 5: SYSTEM SCHEMATIC, 208/230-VOLT UNITS
1
1
2
2
3
3
4
4
5
5
A
B
C
D
E
F
3
GATE DRIVE A
(22)
SOL1
J32
19
32
(38)
33
28
2
AC
PILOT ON
27
20
3
K1
34
TIP SENSE
P1
4
22
MAIN CONTACTOR
4
18
35
30
23
14
(37)
AC
21
17
7
(23)
230V
K5
29
3
3
P32
3
19
INRUSH DONE
+12VDC
26
29
4
CURRENT
CONTROL
24
460V
MC1ON
(40)
6
4
1
35
OVERTEMP
+12V
POT LOW
8
11
OVTEMP
K2
LOGIC BOARD
34
24
3
J14
26
GATE
DRIVE
FILTERING
30
22
1
(5)
1010
CURRENT SENSE
8
7
1
4
(36)
(19)
1
30
OVERTEMP
600V, 6/10A, KTK
24
GATE DRIVE A RTN
7
25
30
6
31
18
1
4
18
CURRENT SENSE RTN
(39)
J18
(3)
J29
11
1
(35)
2
6
13
CURRENT SENSE
17
+12VDC
(42)
1
11
17
6
CSR
230V
14
35
21
3
2
4
1
34
DC OK
(41)
P18
(20)
(26)
20
8
5
P29
1
6
CD ENABLE
IGBT PCB ASSEMBLY 19X1756
7
GAS ON
15
16
POT WIPER
3
GAS
POT HIGH
1
29
36
1
2
1
TO BIAS SUPPLY
28
(7)
GATE
DRIVE
36
32
+12VDC
6
6
3
33
AC OK
4
13
DC
22
32
GAS
1
CD ENABLE
J13
5
W1
24
33
DC
5
1
7
MAIN BOARD ASSEMBLY 19X1777
GATE
DRIVE
P24
17
PILOT ON
11
2
4
4
TORCH SW
28
15
ON/OFF SW
CHASSIS
GND
J43
19
J27
5
8
5
P11
FAN1
14
8
16
15
5
(25)
1
1
PRESS GOOD
23
22
9
(24)
RUN/SET SW
20
GATE DRIVE B
35
LED PCB
19X1604
27
J11
2
2
32
5
12
M2
7
4
8
W1
A
33
GATE DRIVE B RTN
GAS SOLENOID
1
13
(12)
34
3
28VAC B
31
2
28VAC B
S
3
27
D21
9
6
8
8
8
7
K4
21
2
12
20
(8)
25
D32
27
12
5
J12
26
16
P15
(6)
36
TEMP
FAN2
15
PRESS GOOD
W1
(9)
5
31
IGBT PCB ASSEMBLY 19X1756
(1)
21
PILOT RELAY
GATE
DRIVE
J24
7
2
25
29
14
6
B
4
23
POT WIPER
7
P27
5
(13)
5
3
28
(21)
D37
36
10
4
31
6
1
W1
16
19
10
R
J15
9
2
(4)
26
-OUT
6
2
PRESSURE SW
RUN/SET
(2)
2
2
2
25
M1
9
18
POT HIGH
12
J23
23
13
28VAC A
K1
400V
POT LOW
2
CURRENT SENSE RTN
CURRENT ADJUST
20 - 60
D20
INV ON
DRAG ON
CD ON
SW ON
(6)
(7)
1
7
3
4
5
2
8
6
1
7
3
4
5
2
8
6
K1
INPUT DIODE
ASSEMBLY 19X1755
PCR
INRUSH
0.9A
EXTENDER BOARD
ASSEMBLY 19X1775
TEST CONNECTOR
28VAC A
K5
K4
CONTACTOR ON RELAY
SOLENOID ON RELAY
SW1
SW2
TS1
F2
PS1
(11)(10)
IGBT HEATSINK
TEMP
TS2
INDUCTOR TEMP
ASSEMBLY 19X1784
K2
FAN
NTC
DC COM
DC COM
DC COM
DC COM
TORCH SW RTN
208/230V
SINGLE PHASE
INPUT
COPPER
STRAP
(78)
W1
L1
L2
L3
L4
R30
FOR 230V
ONLY
ZERO
(33)
CW
+12VDC
+18V
+18VDC
+18VDC
+18V
E30
E13
E22
E3
E12B
E16
E17B
E6
E17A
E33
E19A
E21A
E5
24
12
23
1314
25
27
24567
1
28
E1
E23
E8
F1
FUSE
24
12
23
1314
25
27
24567
1
28
E4
E12A
RESETABLE
E15
E20
T1
6
1
3
5
7
9
10
12
E14
E2
E19B
t
E7
E18
LT1
1 2
E21B
A-03221

Related product manuals