EasyManua.ls Logo

Thermal Dynamics PakMaster XLPLUS 50 - 4.07 Pilot Arc Problems; A. AC indicator ON; TEMP indicator off; No gas flow; GAS and DC indicators OFF; B. AC indicator ON; TEMP indicator off; Gas flows; GAS indicator ON; DC indicator blinks; Small arc may be visible in torch; C. AC indicator ON; TEMP indicator off; Gas flows; GAS and DC indicators ON; No arc in torch; No arc at spark gap on CD PC Board; CD enable indicator (D2) ON

Thermal Dynamics PakMaster XLPLUS 50
74 pages
Print Icon
To Next Page IconTo Next Page
To Next Page IconTo Next Page
To Previous Page IconTo Previous Page
To Previous Page IconTo Previous Page
Loading...
SECTION 4: SERVICE TROUBLESHOOTING 18 Manual 0-2745
a. Replace Pilot Output PC Board if reading is not
open.
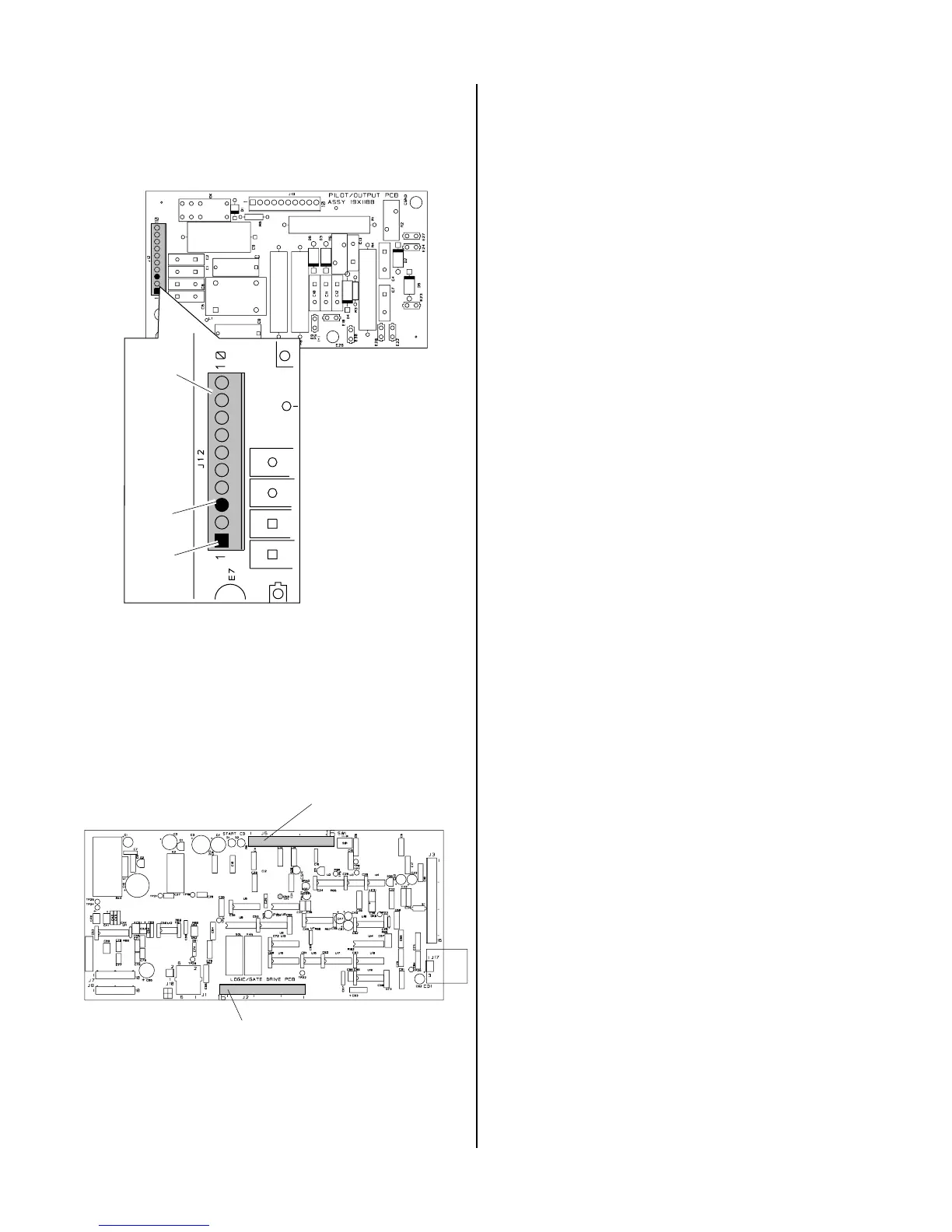
A-01399
Pin 3
J12
Pin 1
Pilot Output PC Board
Top
4. Faulty Logic/Gate or Pilot PC Board
Check for DC voltage from Logic/Gate PC Board
J5 pin 8 to J5 pin 9.
a. Replace Logic/Gate PC Board if voltage is
12VDC.
A-02547
J2
Logic/Gate PC Board
J5
4.07 Pilot Arc Problems
Locate your symptom below:
A. AC indicator ON; TEMP indicator off; No gas
flow; GAS and DC indicators OFF (Torch Switch
must be pressed)
1. Faulty hand torch parts or Logic/Gate PC Board
Check start indicator, D1, on the Logic/Gate PC
Board.
a. If start indicator D1 is ON, replace Logic/Gate
PCB.
b. If start indicator D1 on Logic/Gate PC Board is
OFF check the following:
Check Pilot/Output PC Board for 12 VDC between
J12 pin 1 to pin 3 with torch switch pressed.
• If voltage is correct, check Torch Switch and PIP
as needed per appropriate torch manual.
• If voltage is incorrect, replace Logic/Gate PC
Board
2. Faulty Logic/Gate PC Board
Measure for 12VDC on Logic/Gate PC Board be-
tween J5-8 and J5-9.
If voltage is less than 2VDC, replace Logic/Gate
PC Board.
B. AC indicator ON; TEMP indicator off; Gas flows;
GAS indicator ON; DC indicator blinks; Small arc
may be visible in torch
1. Faulty Pilot Output PC Board or Shorted Torch
a. Test per Section 4.09-H; repair as necessary
2. Faulty FET/Heatsink Assembly
a. Check per Section 4.09-I; repair as necessary
3. Faulty torch
a. Check torch per appropriate Torch Instruction
Manual
C. AC indicator ON; TEMP indicator off; Gas flows;
GAS and DC indicators ON; No arc in torch; No
arc at spark gap on CD PC Board; CD enable
indicator (D2) ON
1. Faulty CD PC Board
Measure for 36VAC betwen J11-1 and J11-3.
Measure DC voltage between J11-4 to J11-5 on CD
PC Board.

Table of Contents

Related product manuals