EasyManua.ls Logo

Trane 4TYK8536B1000AA - Outlines and Dimensions

Trane 4TYK8536B1000AA
68 pages
To Next Page IconTo Next Page
To Next Page IconTo Next Page
To Previous Page IconTo Previous Page
To Previous Page IconTo Previous Page
Loading...
10
SS-SVM001A-EM
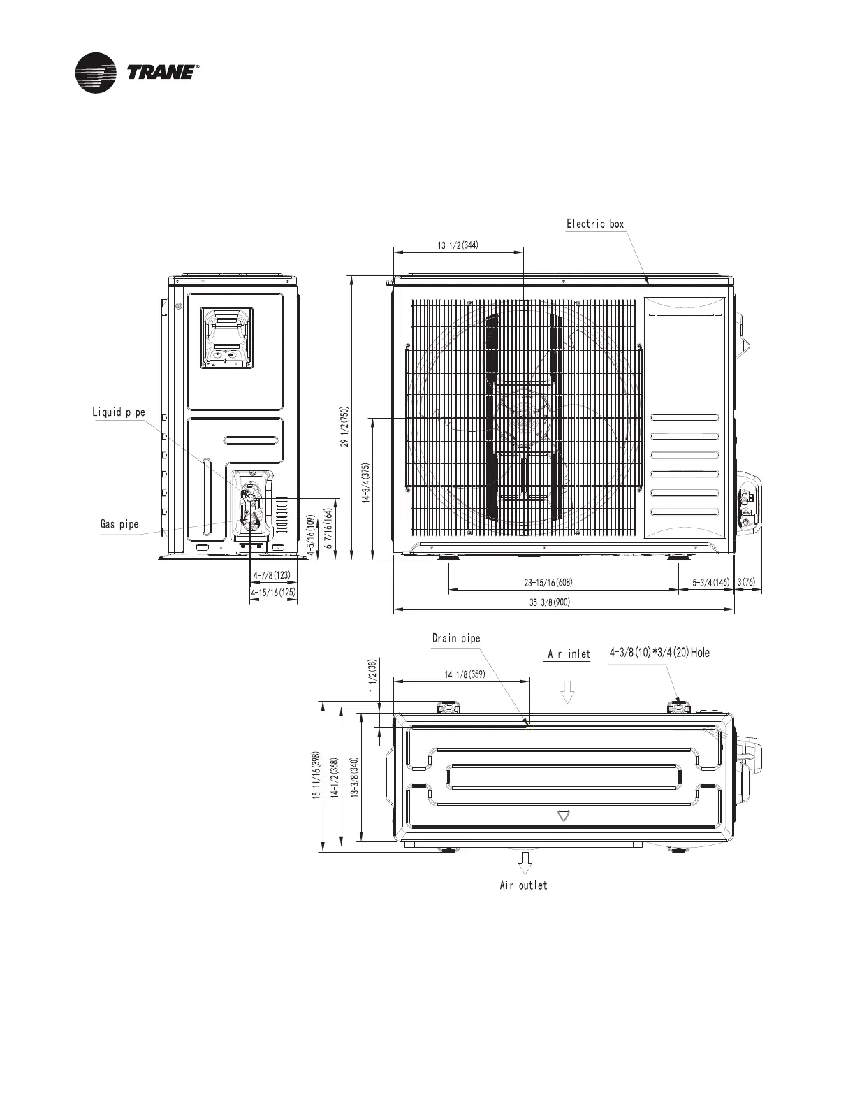
36K Unit : in.(mm)
2. Outlines and dimensions

Related product manuals