EasyManua.ls Logo

Trane GECK006 - Page 43

Trane GECK006
48 pages
Print Icon
To Next Page IconTo Next Page
To Next Page IconTo Next Page
To Previous Page IconTo Previous Page
To Previous Page IconTo Previous Page
Loading...
WSHP-SVX022A-EN
43
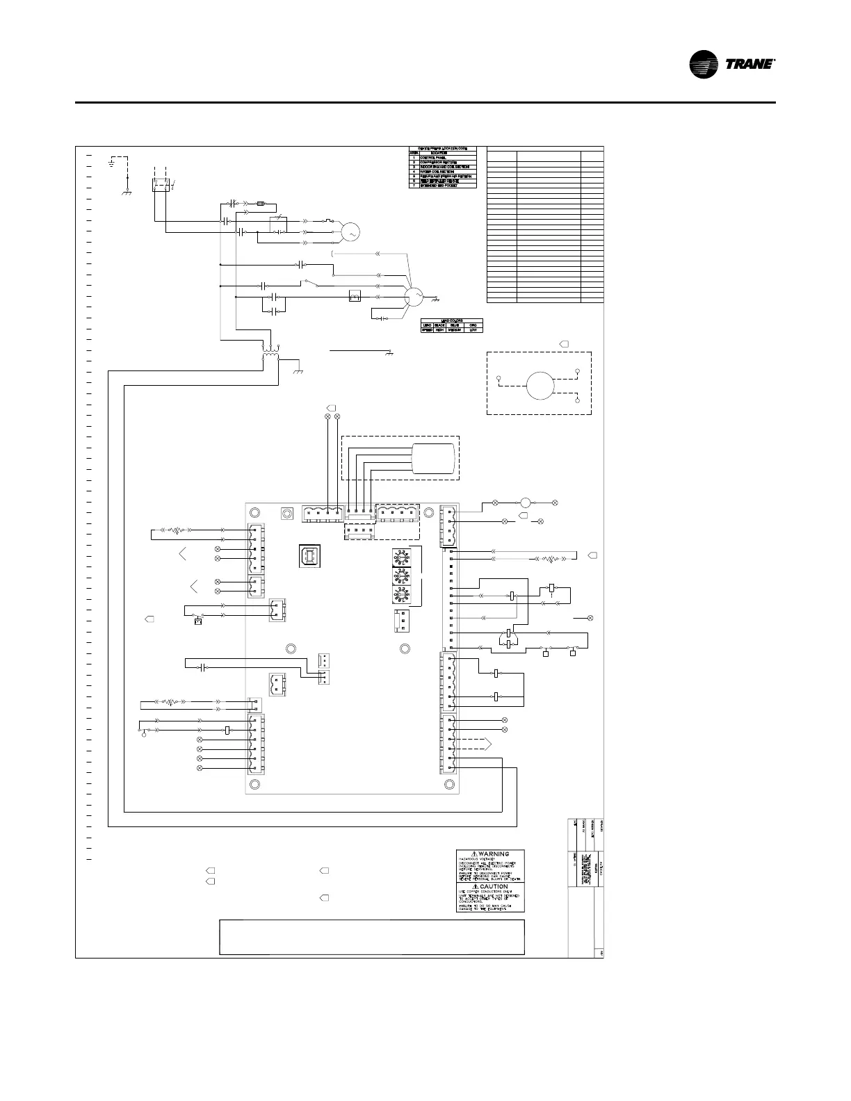
Figure 19. Symbio 400-B - 208V-60 Hz - 1pH with hot gas reheat
67A
46
48
47
45
44
41
43
42
40
39
38
37
36
35
34
33
32
31
30
29
19
24
28
27
26
25
23
22
21
20
18
17
16
15
14
13
12
11
10
8
9
7
6
5
2
4
3
1
49
50
51
52
53
54
55
56
57
58
59
60
1
61
62
63
64
65
66
WCI
MODULE
LINK-
LINK+
GND
24V
GREY
BLUE
BLACK
RED
97A
98A97A
2 4
1SR
98A
68A
69A
75A
26C
46B
82A
83A
81A
80A
21A
26A
42D
20A
26X
42C
73A
74A
OVERFLOW SWITCH
3S3
2L1 REVERSING VALVE COIL 42
3S3 14
33-60400B CONTROLLER1U1
2L1 REVERSING VALVE COIL
ENTERING WATER TEMP SENSOR4RT2
START ASSIST
2B1S2 LOW PRESSURE SWITCH
2B1S1 HIGH PRESSURE SWITCH 46
46
2L1 REVERSING VALVE COIL
3S3
38
2B1S1
ATTENTION
LES BORNES DE L'UNITÉ NE SONT PAS CONÇUES
L'UTILISATION DE TOUT AUTRE CONDUCTEUR PEUT
N'UTILISER QUE DES CONDUCTEURS EN CUIVRE!
POUR RECEVOIR D'AUTRES TYPES DE CONDUCTEURS.
CAUTION
OTHER TYPES OF CONDUCTORS.
USE COPPER CONDUCTORS ONLY!
FAILURE TO DO SO MAY CAUSE DAMAGE TO THE
UNIT TERMINALS ARE NOT DESIGNED TO ACCEPT
EQUIPMENT. ENDOMMAGER L'ÉQUIPEMENT.
PRECAUCIÓN
PARA ACEPTAR OTROS TIPOS DE CONDUCTORES.
¡UTILICE ÚNICAMENTE CONDUCTORES DE COBRE!
LAS TERMINALES DE LA UNIDAD NO ESTÁN DISEÑADAS
SI NO LO HACE, PUEDE OCASIONAR DAÑO AL EQUIPO.
26A,B
26B
1SR
1 3
47B
46C
47C
J6B-5
J6B-6
3S3
J6A-3
J6A-4
83B
82B
J2F-1
3RT6
74B
J6A-6
73B
J6A-5
4RT2
45A
J6B-1
1K1
P
2B1S2
P
2B1S1
2311-3689
03/25/21
03/01/16
M.HERZOG
400-B
GEC
SCHEMATIC DIAGRAM
C
2311-3835
81B
80B
J6A-2
J6A-1
J2E-2
4RT3
50A
( - )
RH SENSOR
( + )
1K4
ISO VLV
5
OCC
ZONE TEMP
SET POINT
FAN MODE
23X
2L1
21P
64A
J6B-4
J6B-3
21A
51
DISCHARGE AIR SENSOR3RT6
1K4
BLOWER RELAY
3
LEAVING WATER TEMP SENSOR4RT3
36
COMMON
COMM IN
24 VAC
48,54
RELAY1SR
J2E-1
J2F-2
GREY
BLUE
BLACK
RED
J2D-1 J2D-2
6
63A
63B
42C
26A
CONDENSATE
OVERFLOW
DISCHARGE AIR SENSOR
LEAVING WATER TEMP SENSOR
ENTERING WATER TEMP SENSOR
REVERSING
LOW
PRESSURE
SWITCH
HIGH
PRESSURE
SWITCH
3S5
BLU
BLK
ORG9A
8A
1S1
3
1
W2
11A
J3-5 P3-5
J3-6 P3-6
J3-2 P3-2
LOW
HIGH
W2
5S1
L2
208/60/1
L1
1E 2E
2E
1E
1T1
24V
SPLICE
1C3
93C
93C
93D
2L2
1K5
93A
140A
140B
63A,140B
REHEAT
VALVE
51A
1TB1-181TB1-15
M
5B3
21Y 90B
P6A-2
P6A-1
71A
70A
1TB1-8
1TB1-7
86A
87A
1TB1-9
1TB1-10
1TB1-4
1TB1-3
1TB1-2
1TB1-1
P6B-5
P6B-6
1TB1-16 1TB1-18
1TB1-18
1TB1-16
1TB1-17
COMMON
OPEN
CLOSE
2 POSITION ISO VLV
INSET A-A
5
26W
1TB1-17
21T
1TB1-18
P6A-6
P6A-5
P6B-1
P6B-3
P6B-4
P6A-3
P6A-4
LINK. FOR ADDITIONAL INFROMATION REFER TO
CONDUIT OR WIRE BUNDLE WITH COMMUNICATION
CAUTION! DO NOT RUN POWER IN THE SAME
AGGREGATE RUN.
"LEVEL 4" CABLE. MAXIMUM OF 4500 FOOT
6
5
FIELD INSTALLED 3 WIRE VALVE SEE INSET A-A.
COMMUNICATION WIRE MUST BE TRANE PART NO.
400-20-28, OR WINDY CITY OR CONNECT AIR
CONNECT TERMINAL 11 TO 1TB2-1&2 AND TERMINAL 10
7
TO 1TB2-3&4 IF USING ZONE SENSOR X13790886010.
EMTX-EB-68.
FAN STATUS SWITCH3S5
14,43
3S5
76A
77A
FAN STATUS SWITCH
76B
77B
WCI OPTION
1K5
REHEAT BLOWER RELAY
11,13,49
1U1
ADDRESS
SERVICE
PORT
RESET
IMC
PI2
IMC
J4
J3
J6
J8
J11
J12
J13
J18
J17
J16
J15
J2
J1
J14
PI1
GND
UIP1
24VDC
GND
UIP2
BI1
BI1
GND
AOP2 / BI5
J5
GND
AOP1 / BI4
GND
AIP4
24VAC
GND
AIP3
AIP2
GND
AIP1
J10
J9
BO6
BO7
24VAC
24
VD
C
GND
COMM+
COMM-
-
+
+
BACnet
24VAC
GND
BO8
BO9
24VAC
GND
COMPR B04
BO5
24VAC
GND
B06
RV BO7
BI2
BI2
BI3
BI3
AI5
GND
24VAC
FAN HI BO1
24VAC
BO2
24VAC
FAN LOW BO3
24VAC
GND
24VAC
GND
24VAC
GND
-
IMC
HG/EH
1
2
3
4
5
6
1
2
1
2
1
2
3
1
2
3
1
2
1
2
1
2
3
4
5
1234 1234
1
2
3
4
5
6
1
2
4
5
6
14
3
13
12
11
10
9
8
7
6
5
4
3
2
1
4
3
2
1
1
2
3
J7/P1
OUTSIDE AIR DAMPER5B3
33
422L2 REHEAT VALVE
1TB1-18
BLOWER RELAY
21X
REHEAT RELAY
CONDENSATE RELAY
42A
J6B-2
P6B-2
42B
93B
WITH HOT GAS REHEAT
43A
93A
1TB1-6 1TB1-5
VALVE
1C3
5
89A 88A
89A 88A
J2A-1
J2A-2
1K5
4 6
10B
2C
1K5
1 3
2
12A
1C1C
,C
FOR COMMUNICATING SENSOR SEE SENSOR
DOCUMENTATION FOR WIRING.
9
9
9
2CCH-1
W
W
1CCHR
5 6
CC1
1CCHR
CC5
CC4
31
6,7,45
DESCRIPTION
DEVICE
DESIGNATION
LEGEND
NUMBER
LINE
COMPRESSOR CONTACTOR1K1
CONTROL POWER TRANSFORMER1T1 19
COMPRESSOR MOTOR2B1
COMPRESSOR RUN CAPACITOR2B1C1 7
1TB1 CUSTOMER LOW V. TERM BLOCK
6,7,8
VARIOUS
LINES INDICATE WIRING BY THE TRANE CO.
OCCURRED.
CONTACTS BY LINE NUMBER.
SCHEMATIC DESIGNATE THE LOCATION OF THE
NUMBERS ALONG THE RIGHT SIDE OF THE
LOCAL REQUIREMENTS. ALL LOW VOLTAGE FIELD
THE NATIONAL ELECTRIC CODE (NEC), STATE AND
ALL FIELD WIRING MUST BE IN ACCORDANCE WITH
NOTES:
ARE SHOWN AT 25° C (77° F), AT
ATMOSPHERIC PRESSURE, AT 50% RELATIVE
HUMIDITY, WITH ALL UTILITIES TURNED OFF,
AND AFTER A NORMAL SHUTDOWN HAS
UNLESS OTHERWISE NOTED, ALL SWITCHES
DASHED LINES INDICATE RECOMMENDED FIELD
WIRING BY OTHERS. FIELD WIRING TO BE RATED
FOR 600 VOLTS. DASHED LINE ENCLOSURE
AND/OR DASHED DEVICE OUTLINES INDICATE
COMPONENTS PROVIDED BY THE FIELD. SOLID
4.
3.
2.
1.
CONNECTIONS ARE TO BE CLASS 2.
26B
CONTROL COVER GROUND
1K1
3B2C2
M
3B2
BRN
4A
5B
GRN
1A
6C
B
2B
1
BRN
2A
6B
R
S
C
1
2B1
M
P4-1 J4-1
4B
P4-2 J4-2
P4-3 J4-3
2B1C1
C,D
6D
5C
YEL
COM
J3-3 P3-3
1K4
1 3
1A,B
EQUIPMENT
GROUND
15A
2A,B
10A
1K4
4 6
1K1
CRANKCASE HEATER2CCH-1 4
CRANKCASE HEATER RELAY1CCHR
4,46
Wiring Diagrams

Related product manuals