EasyManua.ls Logo

Trane TAMXB0A24V21DB - Outline Drawing

Trane TAMXB0A24V21DB
72 pages
Print Icon
To Next Page IconTo Next Page
To Next Page IconTo Next Page
To Previous Page IconTo Previous Page
To Previous Page IconTo Previous Page
Loading...
56
18-GJ89D1-1F-EN
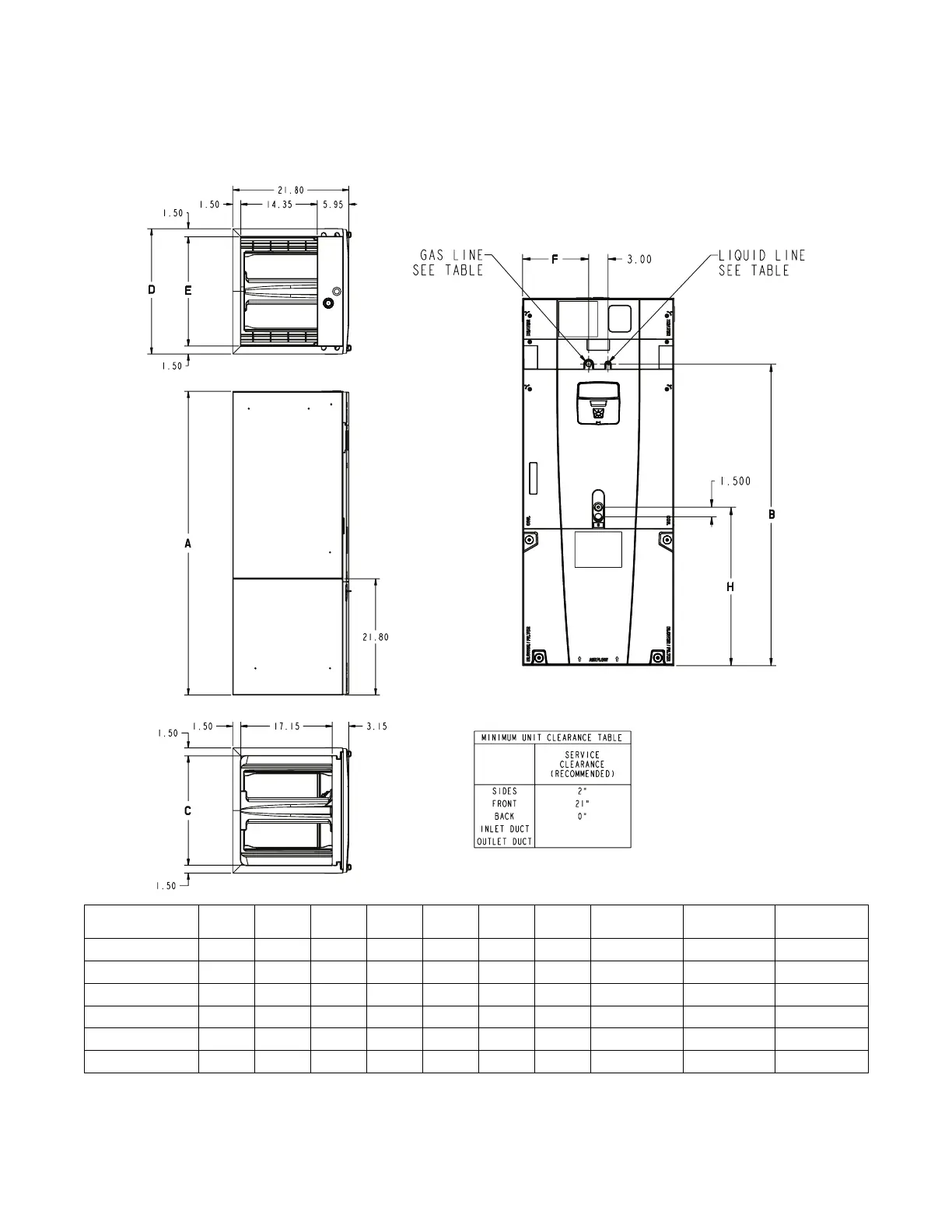
Outline Drawing
NOTE: THIS UNIT IS APPROVED FOR INSTALLATION
CLEARANCES TO COMBUSTIBLE MATERIAL
AS STATED ON THE UNIT RATING NAMEPLATE
Model Number A B C D E F H
FLOW
CONTROL
GAS LINE
BRAZE
LIQ LINE
BRAZE
TAMXB0A24 49.9 39.6 14.5 17.5 14.5 7.3 24.4 EEV
3/4 3/8
TAMXB0B30 55.7 45.5 18.4 21.3 18.4 9.2 24.8 EEV
3/4 3/8
TAMXB0C36 56.9 46.7 20.5 23.5 20.5 10.3 24.2 EEV
7/8 3/8
TAMXB0C42 56.9 46.7 20.5 23.5 20.5 10.3 24.5 EEV
7/8 3/8
TAMXB0C48 61.7 51.5 20.5 23.5 20.5 10.3 24.9 EEV
7/8 3/8
TAMXB0C60 61.7 51.5 20.5 23.5 20.5 10.3 24.9 EEV
7/8 3/8

Related product manuals