EasyManua.ls Logo

Trane Tracer ZN.520 - Page 24

Trane Tracer ZN.520
78 pages
Print Icon
To Next Page IconTo Next Page
To Next Page IconTo Next Page
To Previous Page IconTo Previous Page
To Previous Page IconTo Previous Page
Loading...
UV-SVP01A-EN 27
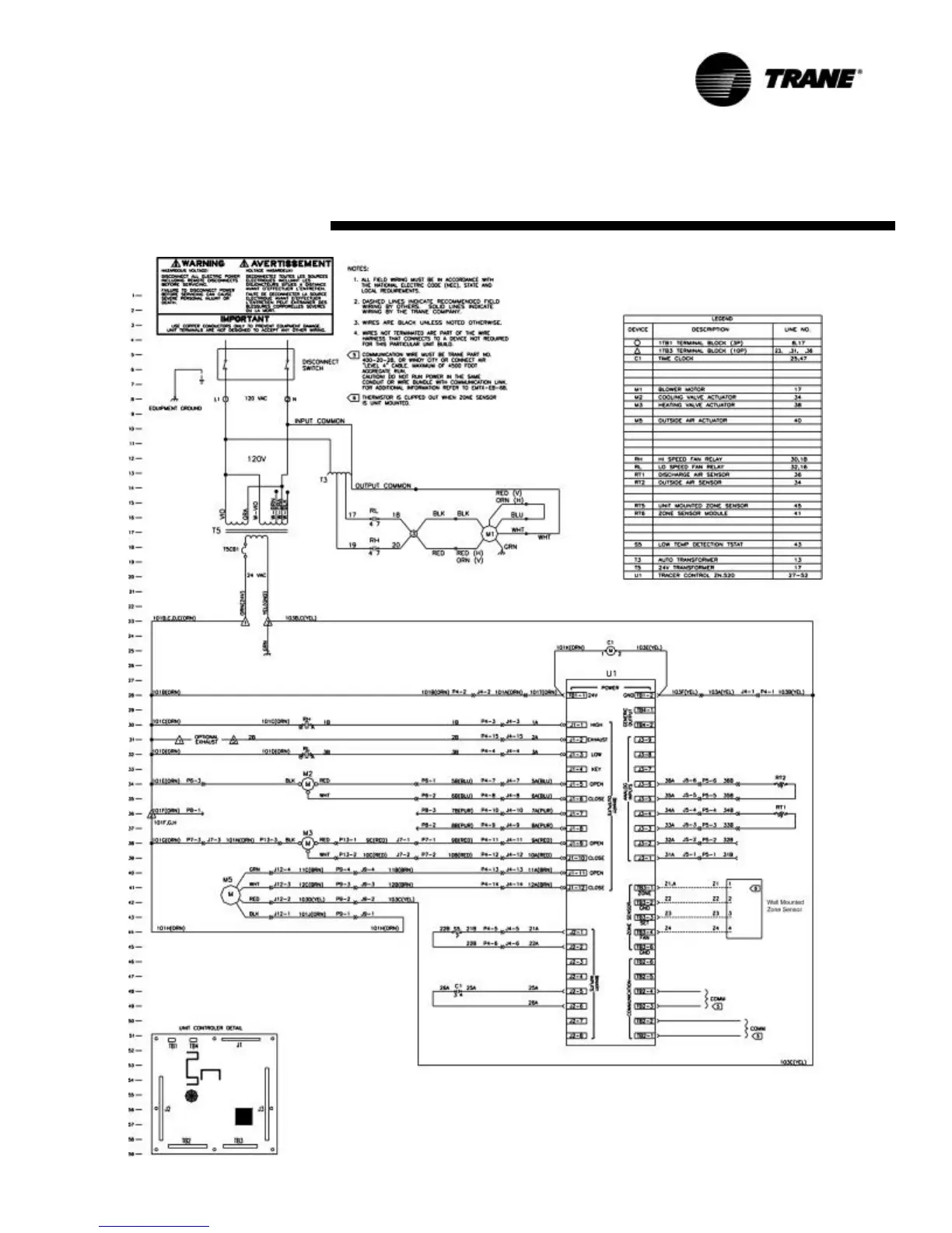
Typical Wiring Diagram—Wall
Mounted Zone Sensor

Other manuals for Trane Tracer ZN.520

Related product manuals