EasyManua.ls Logo

Trianco TRO Evolution 30 System - 20 Diagrams and Measurements

Trianco TRO Evolution 30 System
48 pages
Print Icon
To Next Page IconTo Next Page
To Next Page IconTo Next Page
To Previous Page IconTo Previous Page
To Previous Page IconTo Previous Page
Loading...
page -31
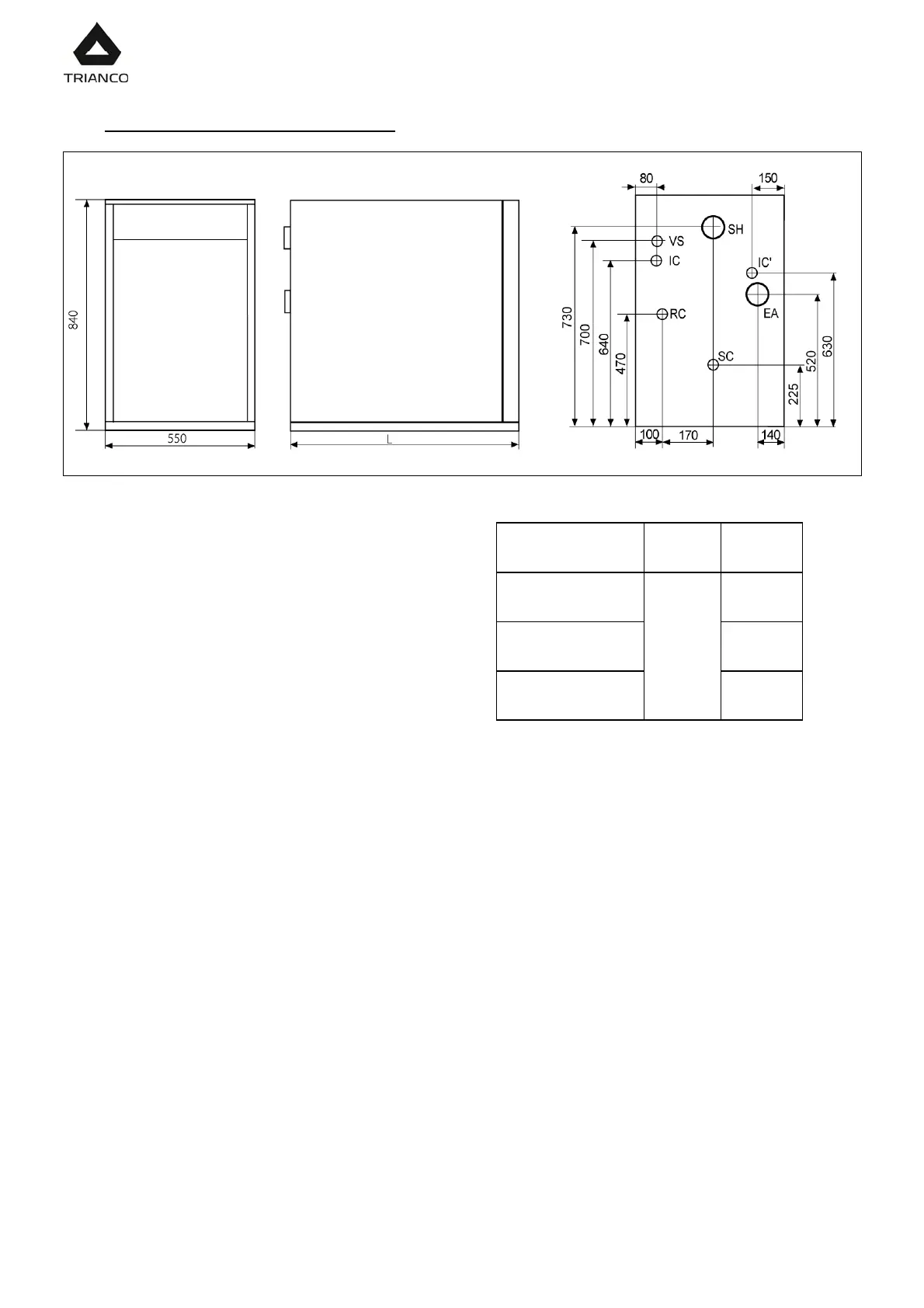
20.- DIAGRAMS AND MEASUREMENTS
IC: Heating outlet.
IC': Optional heating outlet.
RC: Heating return.
MODEL
IC, IC'
RC
L MEAS.
VS: Safety valve.
TRO Evolution 20
System
755
SC: Condensation water outlet, 1" H.
TRO Evolution 30
System
855
SH: Fume exhaustion duct.
TRO Evolution 40
System
1"M
955
EA: Air intake, Ø80.

Table of Contents

Related product manuals