EasyManua.ls Logo

Tuttnauer Valueklave 1730 - Dimensions

Tuttnauer Valueklave 1730
47 pages
Print Icon
To Next Page IconTo Next Page
To Next Page IconTo Next Page
To Previous Page IconTo Previous Page
To Previous Page IconTo Previous Page
Loading...
8
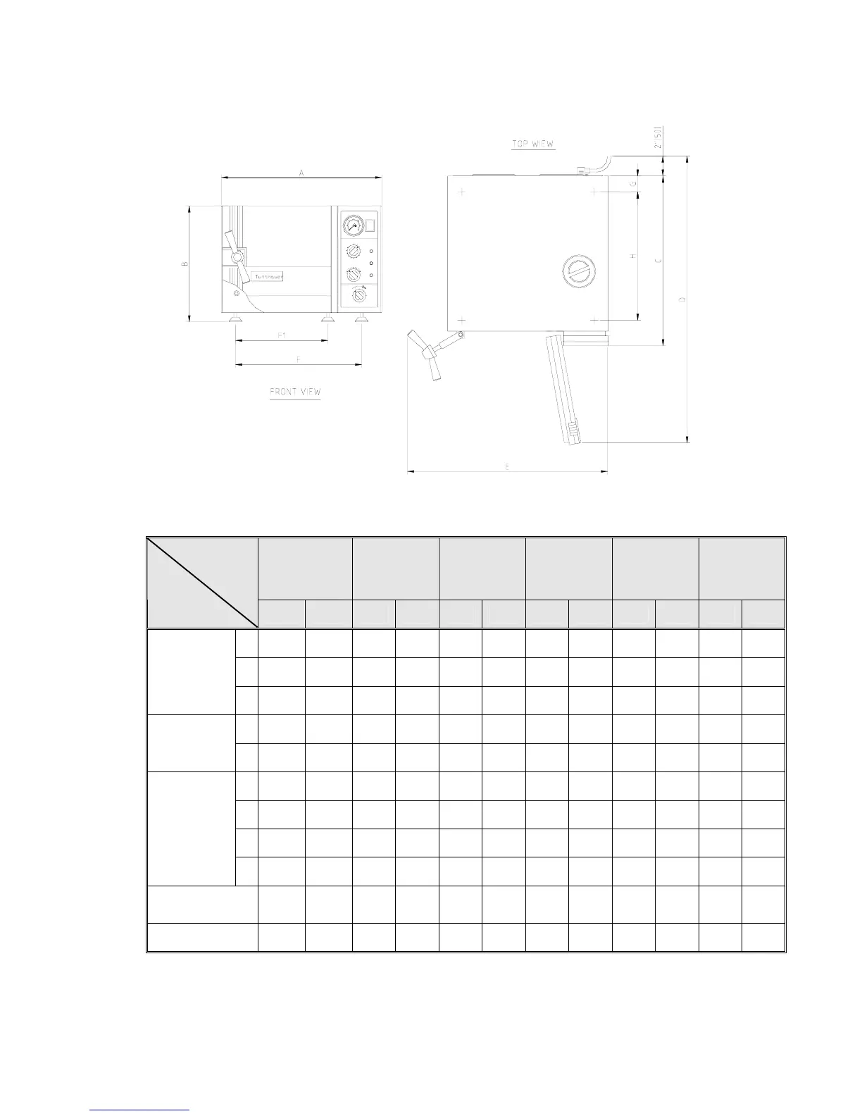
2.9 Dimensions
1730
M, MK
MK-Valueklave
2340
M, MK
2540
M, MK
3140
M
3850
M
3870
M
Model
Dimensions
in mm in mm in mm in mm in mm in mm
A 17.4 440 20.0 510 20.0 510 23.2 590 26.0 660 26.0 660
B 12.0 305 14.4 365 14.4 365 17.7 450 20.7 525 20.7 525
Overall
Dimensions
C 17.9 455 21.5 545 21.5 545 21.9 556 27.5 695 34.5 875
D 29.5 750 35.8 910 35.8 910 39.0 990 45.5 1155 53.0 1335
Maximum
dimensions
(door open)
E 22.0 560 25.8 655 25.8 655 29.7 755 32.0 815 32.0 815
F1 13.7 347 11.8 299 11.8 299 19.2 488 17.7 450 17.7 450
F 13.4 339 16.6 422 16.6 422 14.6 371 22.2 564 22.2 564
G 2.0 50 2.0 50 2.0 50 2.0 50 2.0 50 2.0 50
Distance
between
supporting
legs
F1-front legs
F -rear legs
H 12.4 315 15.8 400 15.8 400 15.2 386 21.8 555 30.5 725
Chamber
Diameter
6.7 170 9.1 230 10 254 12.3 312 15.1 384 15.1 384
Chamber Depth 13.4 340 18.5 470 18.7 475 15.4 391 22.8 580 29.9 760

Related product manuals