EasyManua.ls Logo

UNIS Coconut Bash - Play Zone

UNIS Coconut Bash
71 pages
Print Icon
To Next Page IconTo Next Page
To Next Page IconTo Next Page
To Previous Page IconTo Previous Page
To Previous Page IconTo Previous Page
Loading...
Coconut Bash
14
12/14/2018
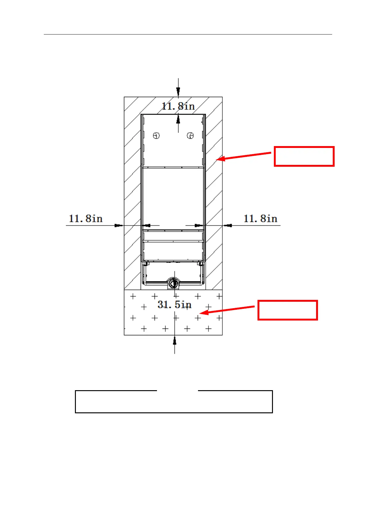
4.3 Play Zone
This machine requires space for playing and for maintenance as shown below.
Leave space around the game upon install ation:
Service area: 11.8 in
Play area
Service area
Y
our unit must be leveled to operate properly.
NOTICE

Related product manuals