EasyManua.ls Logo

Vaillant auroMATIC 560 - Hydraulic Plan 1

Vaillant auroMATIC 560
36 pages
Print Icon
To Next Page IconTo Next Page
To Next Page IconTo Next Page
To Previous Page IconTo Previous Page
To Previous Page IconTo Previous Page
Loading...
6 Installation Manual auroMATIC 560
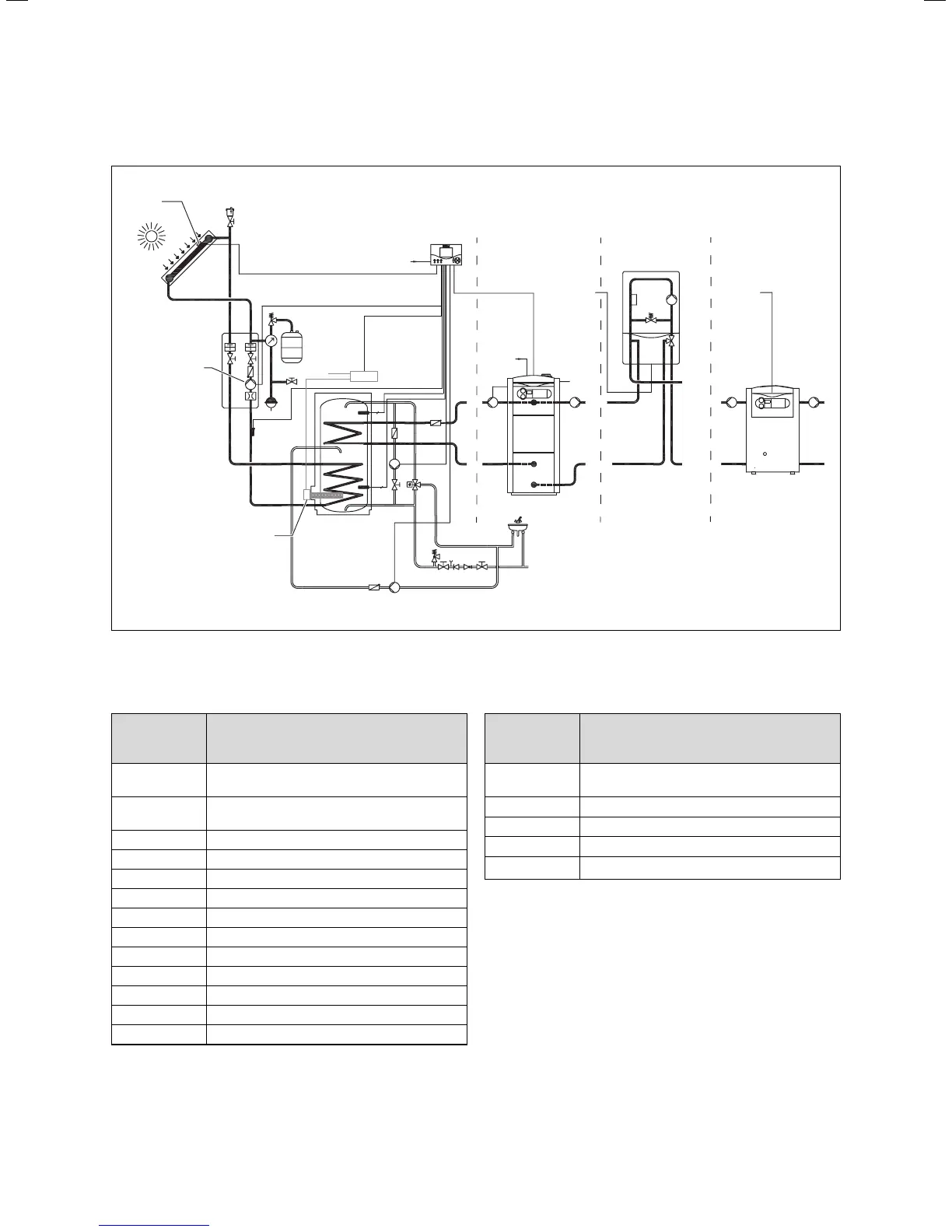
5.2 Hydraulic plan 1
Kol 1
Kol1-P
Gain
Sp1
Sp2
LegP
ZP
KW
I
II
III
C1 C2
C1 C2
C1 C2
230 V
230 V
EP
HZ-K
HZ-K
HZ-K
S
2
1
Fig. 5.1 Hydraulic plan 1 with system configuration: one collec-
tor array, one solar cylinder, connection option for vari-
ous heaters for reheating the cylinder
Designation in
hydraulic plan/
wiring diagram
Components
I, II, III Connection option for various heaters for
reheating the cylinder
C1/C2 Connections for controlling the heater used for
reheating the cylinder
HZ-K Heating circuit(s)
KW Cold water
ZK Circulation pump
EP Electric heating rod (optional)
Kol1-P Solar circuit pump 1
Kol 1 Collector sensor 1
Ertrag Gain
LegP Legionaire‘s protection pump
Sp1 Cylinder sensor 1
Sp2 Cylinder sensor 2
S Contactor
Designation in
hydraulic plan/
wiring diagram
Components
1 Option: Control contactor for optional electric
heating rod
2 400 V connection, 3 phase
230 V 230 V main power connection
F1 (T4) Fuse holder
VU / VK Heater wiring area
Table 5.2 Key for Fig. 5.1 and Fig. 5.2
5 Electrical installation

Table of Contents

Related product manuals