EasyManua.ls Logo

Vaillant auroMATIC 560 - Page 22

Vaillant auroMATIC 560
36 pages
Print Icon
To Next Page IconTo Next Page
To Next Page IconTo Next Page
To Previous Page IconTo Previous Page
To Previous Page IconTo Previous Page
Loading...
12 Installation Manual auroMATIC 560
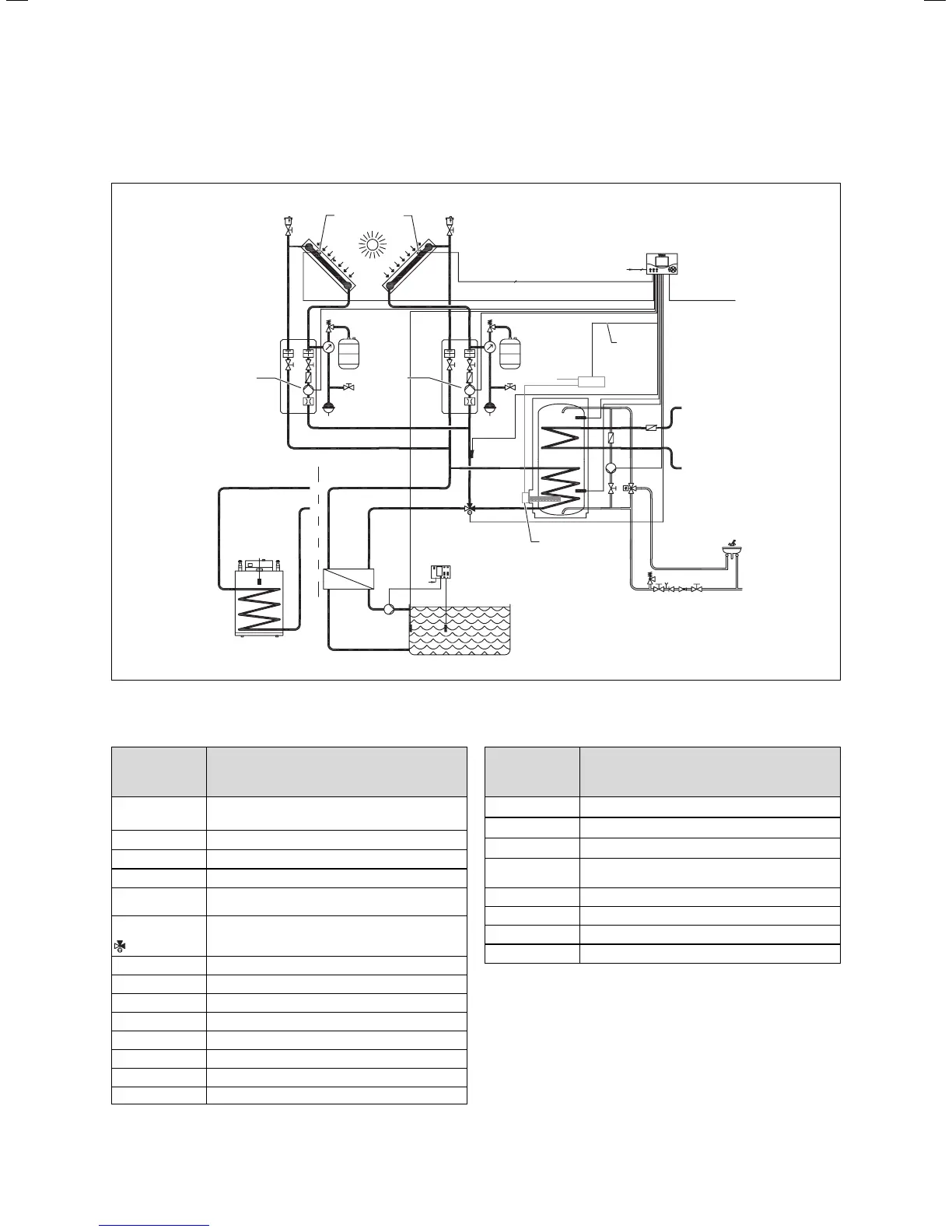
Hydraulic plan 2: Connection of a second cylinder or
swimming pool
LegP
Hg
Sp3
22
1
S
Kol 2
Kol 1
Kol2-P
Kol1-P
Sp1
Sp2
LP / UV 1
SR
C1 C2
230 V
EP
Sp3
A
KW
Gain
Fig. 5.7 Hydraulic plan 2: Connection of a second cylinder or
swimming pool
Designation in
hydraulic plan/
wiring diagram
Components
C1/C2 Connections for controlling the heater used for
reheating the cylinder
Hg Boiler
KW Cold water
EP Electric heating rod (optional)
SR Swimming pool controller (provided by cus-
tomer)
LP / UV 1
Switching valve
UV 1 in current-free state
A Alternative connection for second cylinder
Kol1-P Solar circuit pump 1
Kol2-P Solar circuit pump 2
Kol 1 Collector sensor 1
Kol 2 Collector sensor 2
Ertrag Gain
LegP Anti-Legionnaire’s pump
Sp1 Cylinder sensor 1
Designation in
hydraulic plan/
wiring diagram
Components
Sp2 Cylinder sensor 2
Sp3 Cylinder sensor 3
S Contactor
1 Alternative contactor or KI 3-4
(old or foreign boilers)
2 400 V connection, 3 phase
230 V 230 V main power connection
F1 (T4) Fuse holder
VU / VK Heater wiring area
Table 5.5 Key for Fig. 5.7 and Fig. 5.8
5 Electrical installation

Table of Contents

Related product manuals