EasyManua.ls Logo

Valor Fires 756 - Hole-In-The-Wall Installations; Metal Flue Box and Hearth

Valor Fires 756
48 pages
Print Icon
To Next Page IconTo Next Page
To Next Page IconTo Next Page
To Previous Page IconTo Previous Page
To Previous Page IconTo Previous Page
Loading...
4.10.1.1 ‘Hole-in-the-wall’ Installations.
It is recommended that a hearth should be installed as in figure 4.
If a hearth is not fitted, the fire must be installed so that the distance from the base of
the fireplace opening in the wall to the finished floor level is at least 25mm. Where
there is no floor covering or carpet and the floor is of a type that is likely to be
covered in such a way then the distance from the base of the fireplace opening in the
wall to the finished floor level should be increased to at least 100mm.
To protect from the risk of burns and ignition of clothing a tactile separator shall be
used. The hearth detailed in section 4.8 meets the requirements for a tactile
separator. If this is not used then a 672mm long fender, kerb, horizontal bar, or other
barrier, being fixed not less than 50mm above floor level and positioned 300mm in
front of the fixing plane of the fire will meet the requirement.
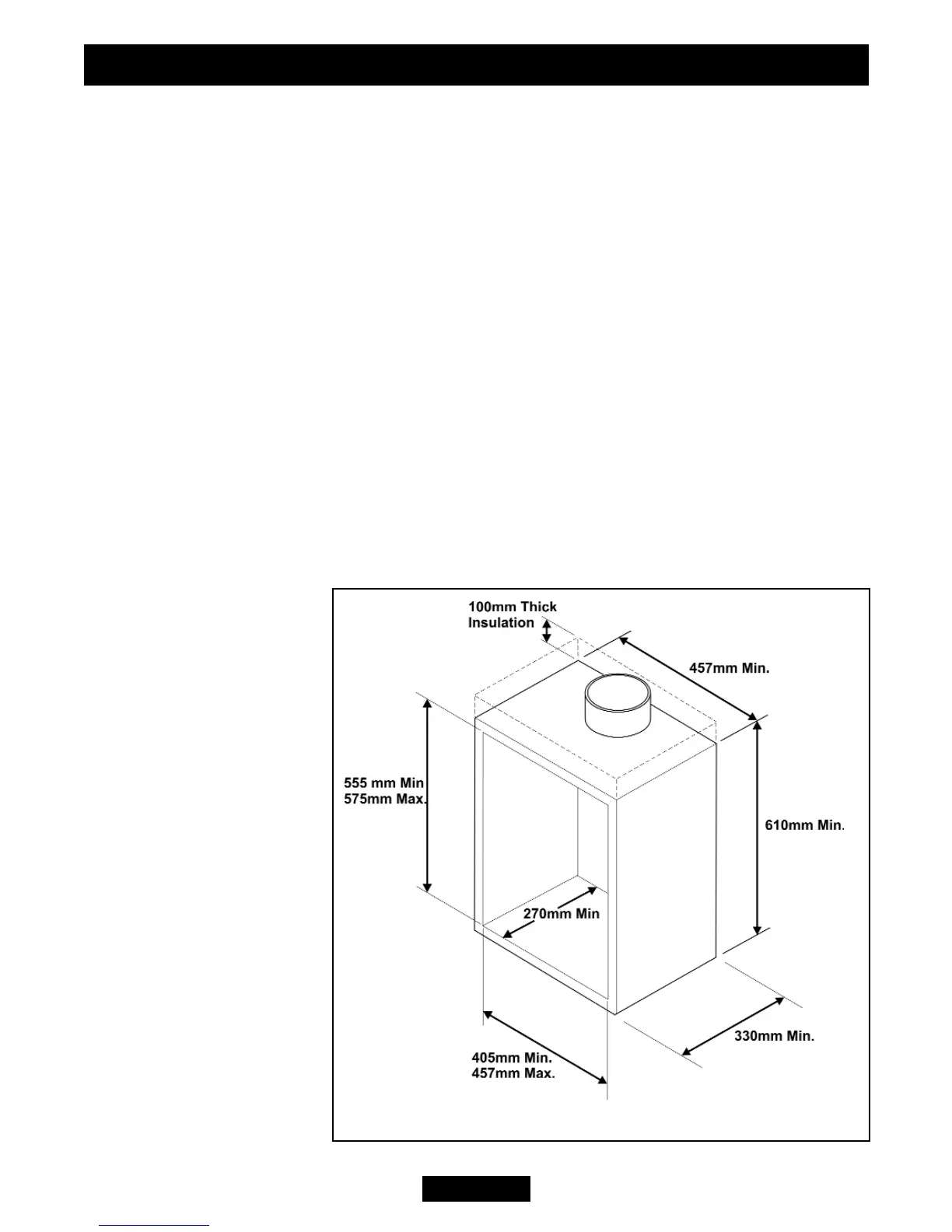
4.10.2 Metal flue box and hearth.
The appliance can be installed to a fireplace incorporating a metal flue box complying
with the constructional requirements of the current edition of BS 715 and with a flue
conforming to BS EN 1856 part 1. The dimensions of the flue box must conform to
those shown in figure 6.
The top surface of the metal flue box must be covered with a 100mm layer of mineral
wool or equivalent insulation (See figure 6).
Important Note: Where
the flue box has a base
sheet that is single wall
(i.e. a single metal sheet)
the flue box must be
mounted on a non-
combustible hearth. The
hearth material must be at
least 12mm thick.
Page 15
© Baxi Heating U.K. Limited 2010.
Figure 6. Metal flue box
INSTALLER GUIDE

Table of Contents

Related product manuals