EasyManua.ls Logo

Valor 956 - 4.10 Installation Options

Valor 956
52 pages
Print Icon
To Next Page IconTo Next Page
To Next Page IconTo Next Page
To Previous Page IconTo Previous Page
To Previous Page IconTo Previous Page
Loading...
Page 14
© GDC Group Ltd 2014
INSTALLER GUIDE
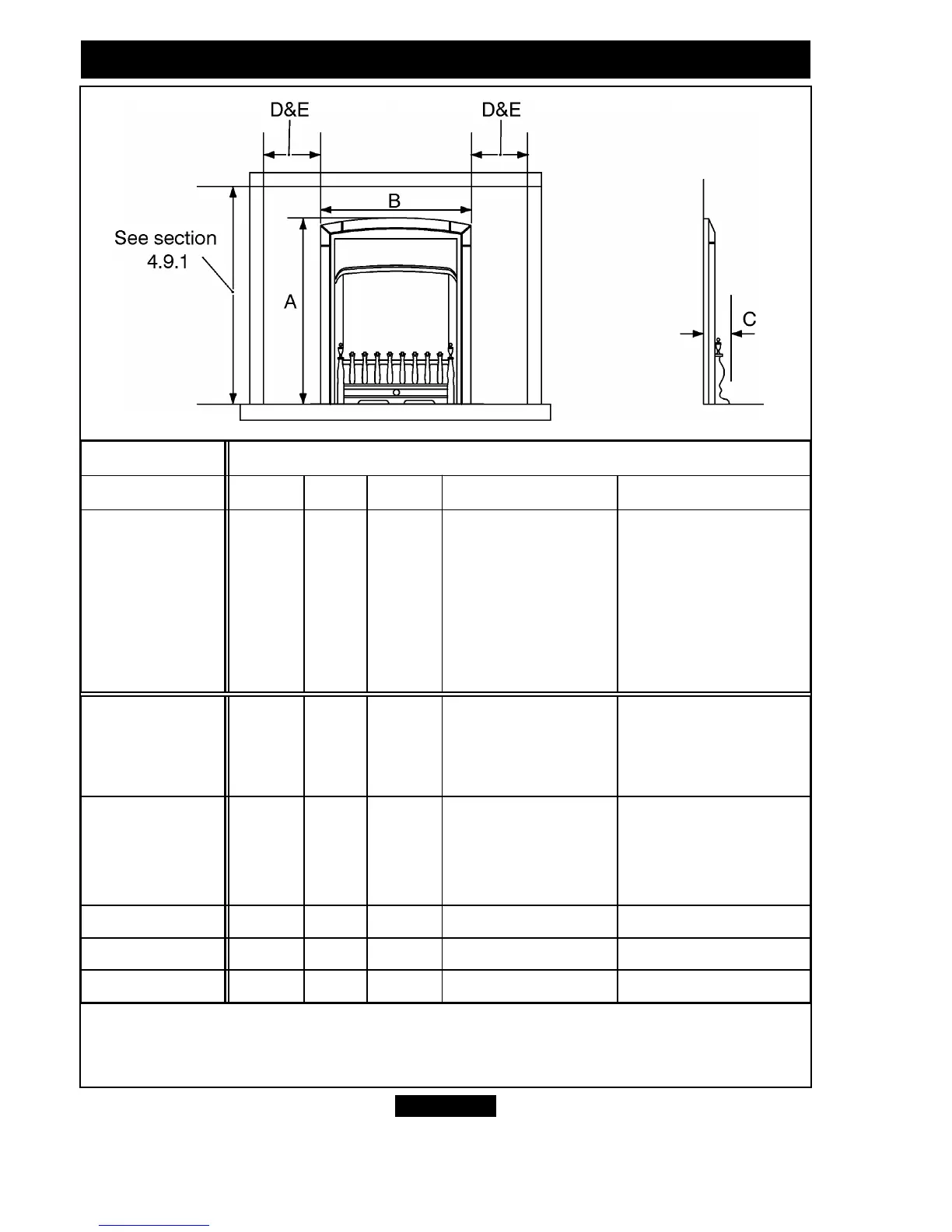
Figure 3. Appliance dimensions and clearances (Fascia may differ from that shown)
(The appliance dimensions ‘A’, ‘B’ & ‘C’ shown in the table are subject to
manufacturing tolerance)
Key
A B C D E
Model
Height
(mm)
Width
(mm)
Depth
into
room
(mm)
Minimum
mandatory
clearance to
combustible
surfaces projecting
beyond the front of
appliance (mm).
Recommended
clearance to non-
combustible
surfaces for access
purposes (mm).
Blenheim 588 450 85 100 10
Seattle 588 450 63 100 10
Siva 590 455 80 100 10
Whitsbury 588 450 73 100 10

Table of Contents

Related product manuals