EasyManua.ls Logo

Valor 956 - 4.10.1 Conventional Fireplace and Hearth

Valor 956
52 pages
Print Icon
To Next Page IconTo Next Page
To Next Page IconTo Next Page
To Previous Page IconTo Previous Page
To Previous Page IconTo Previous Page
Loading...
4.10 Installation options.
In the United Kingdom, as supplied, the appliance can be installed in the following
situations: -
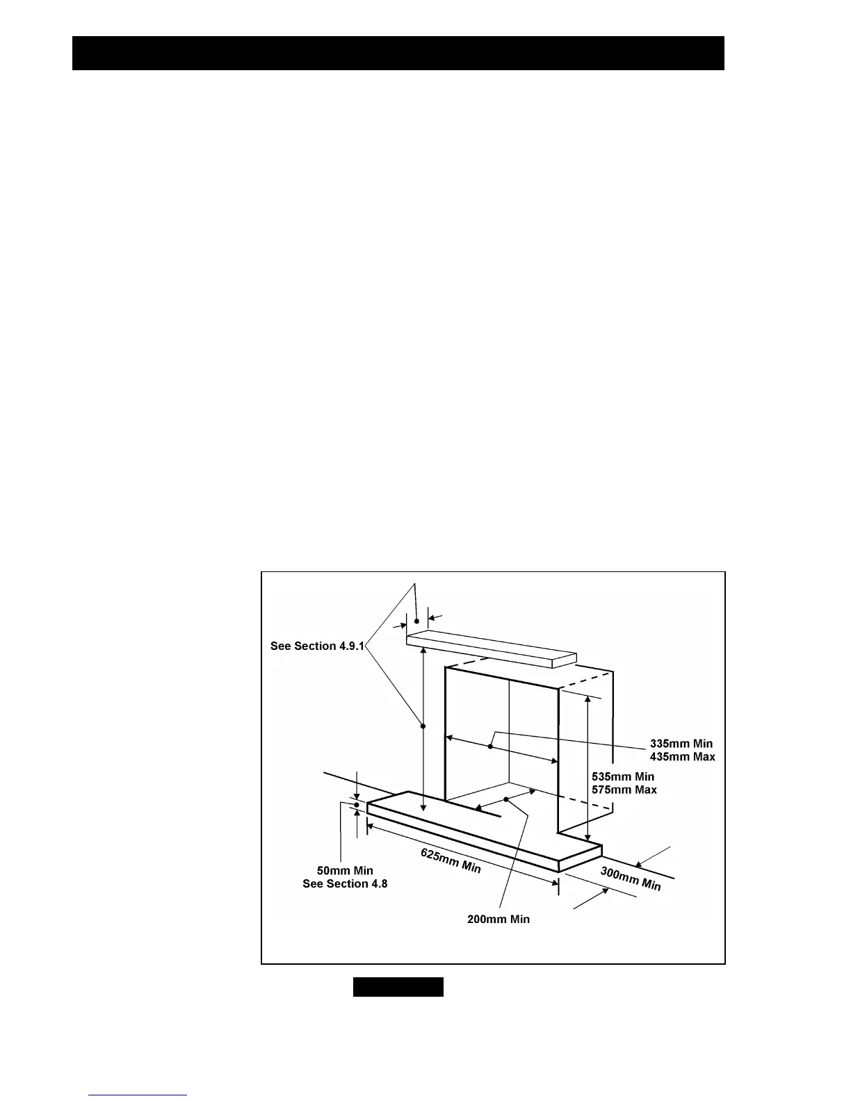
4.10.1 Conventional fireplace and hearth.
To a fireplace complete with hearth as shown in figure 4. Chair brick removal may not
be required providing at least 50mm clearance is available from the flue outlet to any
fireplace component. The appliance is designed to cater for low lintel installations
(min height 505mm) providing a minimum distance of 25mm is maintained between
the lintel and the front face of the fireplace (i.e. 25mm rebated fire surround).
4.10.1.1 ‘Hole-in-the-wall’ Installations.
- It is recommended that a hearth should be installed as in section 4.8 (See figure 4).
- If a reduced depth hearth is fitted, the fire must be installed so that the distance
from the base of the fireplace opening in the wall to the finished floor level is at least
72mm. Where there is no floor covering or carpet and the floor is of a type that is
likely to be covered in such a way then the distance from the base of the fireplace
opening in the wall to the finished floor level should be increased to at least 147mm.
! If the lower part of the fascia (the firefront) is free standing, the recommended
reduced hearth depth is 110mm. This is necessary to support the firefront (See figure
3 for appliance dimensions).
- To protect from the risk of burns and ignition of clothing a tactile separator shall be
used. The hearth detailed in section 4.8 meets the requirements for a tactile
separator. If this is not used then a 625mm long fender, kerb, horizontal bar, or other
barrier, being fixed not
less than 50mm above
floor level and
positioned 300mm in
front of the fixing plane
of the fire will meet the
requirement.
Page 15
© GDC Group Ltd 2014
INSTALLER GUIDE
Figure 4. Hearth and fireplace opening dimensions.

Table of Contents

Related product manuals