EasyManua.ls Logo

VALTIR QuadGuard - Page 36

Default Icon
68 pages
Print Icon
To Next Page IconTo Next Page
To Next Page IconTo Next Page
To Previous Page IconTo Previous Page
To Previous Page IconTo Previous Page
Loading...
Valtir.com 35 Revision D November 2022
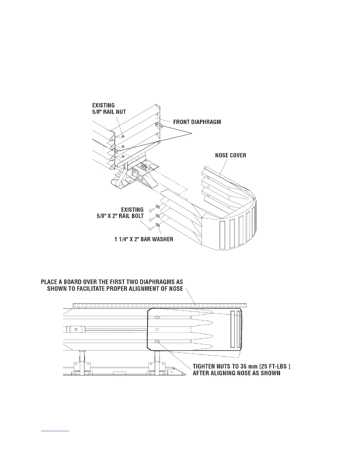
Bolt the Nose Assembly directly to the Front Diaphragm, as shown in Detail 34d and the Nose
Assembly drawings, using six (6) rail bolts which also hold the front two Fender Panels to the
Diaphragm with Bar Washer under each bolt.
Place Pullout Brackets under center nuts.
The top and bottom holes of the Nose are slotted to provide adjustment. Adjust so the top edge
of the Nose is level with the top edge of the Fender Panels and then torque all six (6) nuts to
25 lbf-ft [35 N-m].
Detail 34e
Adjust Nose
Detail 34d
Nose Assembly
PULL OUT BRACKET

Related product manuals