EasyManua.ls Logo

Vatech PCH-30CS - 10 Technical Specifications; Mechanical Specifications

Vatech PCH-30CS
152 pages
Print Icon
To Next Page IconTo Next Page
To Next Page IconTo Next Page
To Previous Page IconTo Previous Page
To Previous Page IconTo Previous Page
Loading...
10. Technical Specifications
PaX-i Plus / Insight Installation Manual 119
10. Technical Specifications
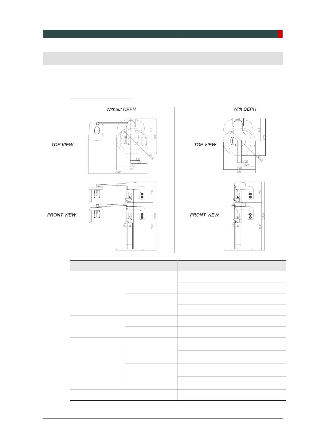
10.1 Mechanical Specifications.
Dimensions (unit = mm)
Item Description
Weight
Without CEPH
unit
95 kg (209.4 lbs. without Base)
135 kg (297.6 lbs. with Base)
With CEPH unit
120 kg (264.5 lbs. - without Base)
160 kg (352.7 lbs. - with Base)
Total Height
Without Base Max. 2272 mm
With Base Max. 2300 mm
Dimensions during
operation
(Length x Width x
Height)
Without CEPH
unit
990 mm (L) x 1200 mm (W) x 2272 mm
(H) (without Base)
990 mm (L) x 1200 mm (W) x 2300 mm
(H) (with Base)
With CEPH unit
1910 mm (L) x 1200 mm (W) x 2272 mm
(H) (without Base)
1910 mm (L) x 1200 mm (W) x 2300 mm
(H) (with Base)
Rotating Unit Vertical Movement Max. 700 mm

Table of Contents

Other manuals for Vatech PCH-30CS

Related product manuals