EasyManua.ls Logo

Vertiv Liebert EXL - Page 26

Vertiv Liebert EXL
111 pages
Print Icon
To Next Page IconTo Next Page
To Next Page IconTo Next Page
To Previous Page IconTo Previous Page
To Previous Page IconTo Previous Page
Loading...
Preparation For Use Liebert EXL S1
25
User Manual 10H52226UM60 - Rev. 1 - 01/2017
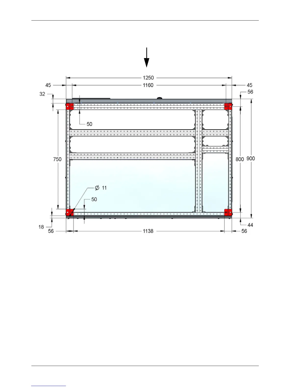
Figure 9 - Liebert EXL S1 500kVA
bottom view (footprint and floor mounting holes)
FRONT

Table of Contents

Other manuals for Vertiv Liebert EXL

Related product manuals