EasyManua.ls Logo

Vertiv Liebert EXL - Page 31

Vertiv Liebert EXL
111 pages
Print Icon
To Next Page IconTo Next Page
To Next Page IconTo Next Page
To Previous Page IconTo Previous Page
To Previous Page IconTo Previous Page
Loading...
Liebert EXL S1 Preparation For Use
User Manual 10H52226UM60 - Rev. 1 - 01/2017
30
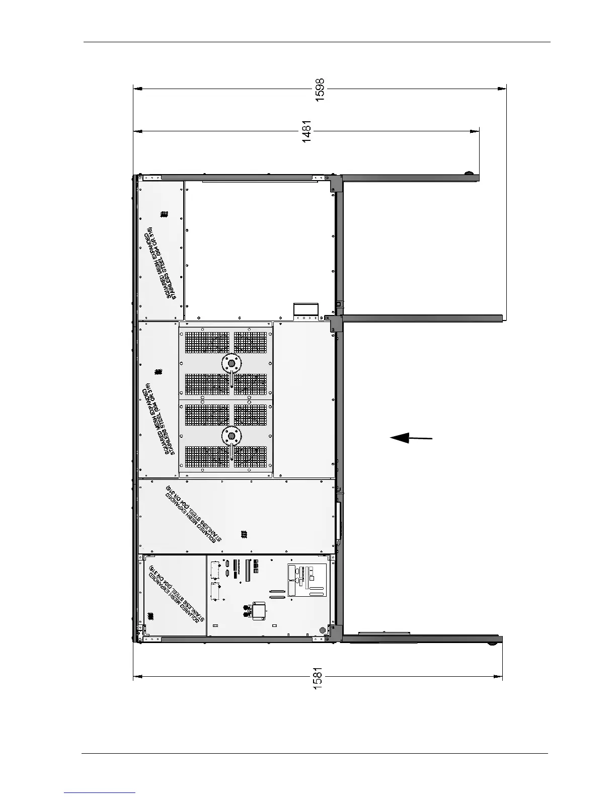
Figure 14 - Liebert EXL S1 600/800kVA
upper view (doors open)
FRONT

Table of Contents

Other manuals for Vertiv Liebert EXL

Related product manuals