EasyManua.ls Logo

Vertiv Liebert EXL - Page 51

Vertiv Liebert EXL
111 pages
Print Icon
To Next Page IconTo Next Page
To Next Page IconTo Next Page
To Previous Page IconTo Previous Page
To Previous Page IconTo Previous Page
Loading...
Liebert EXL S1 Installation
User Manual 10H52226UM60 - Rev. 1 - 01/2017
50
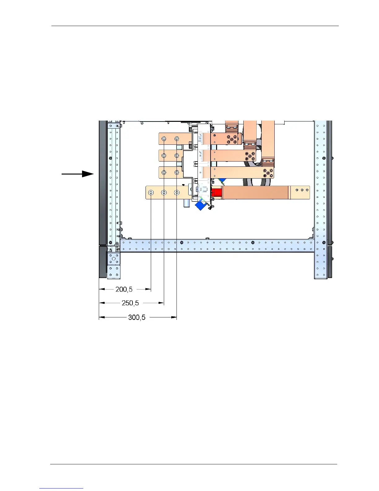
Figure 26 - Liebert EXL S1 300/400 kVA
Customer power connections (right side view)
FRONT
W1
V1
U1
D-
C+

Table of Contents

Other manuals for Vertiv Liebert EXL

Related product manuals