EasyManua.ls Logo

Viessmann B2HA 80 - Control Base

Viessmann B2HA 80
64 pages
Print Icon
To Next Page IconTo Next Page
To Next Page IconTo Next Page
To Previous Page IconTo Previous Page
To Previous Page IconTo Previous Page
Loading...
Vitodens 200-W B2HA 80 to 100, 285 to 352 Installation
5685 827 - 14
26
OUTDOOR
TEMPERATURE
SENSOR
DHW
TEMPERATURE
SENSOR
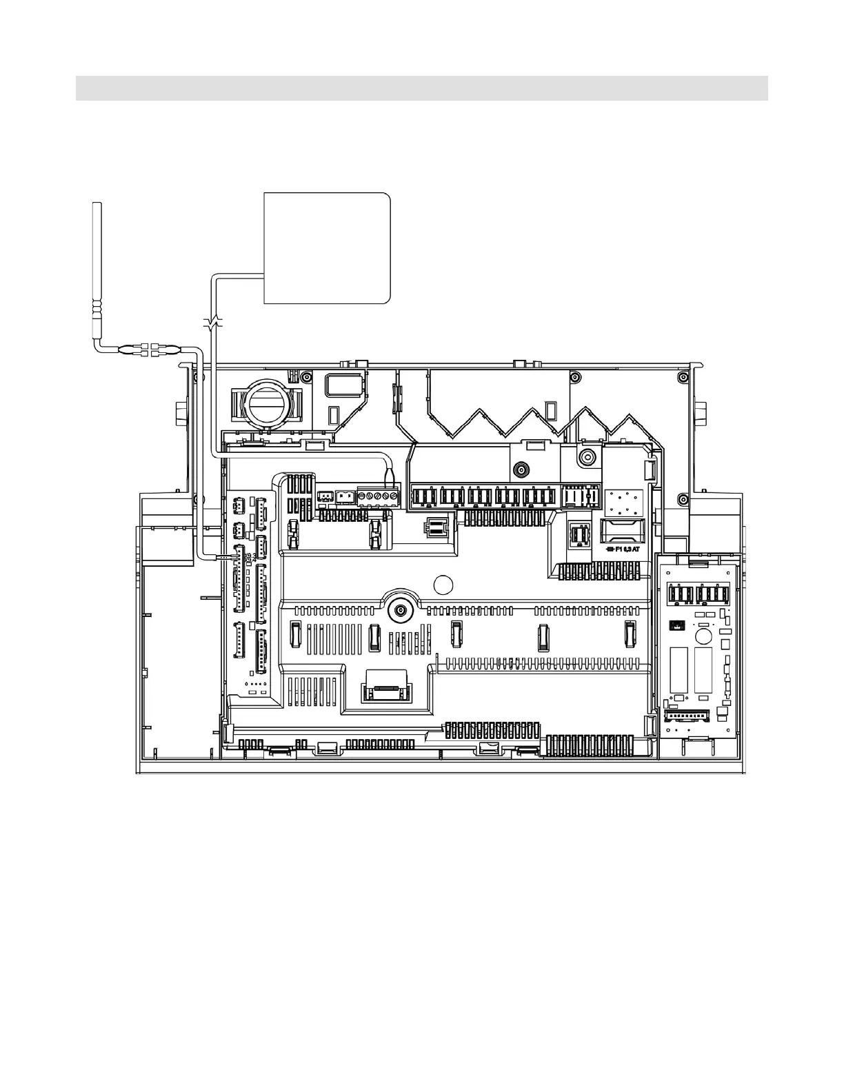
Boiler Connections
Connections (continued)
Control base
Note: See wiring diagram on page 47 for connection to
the external accessory connection box.

Table of Contents

Related product manuals