EasyManua.ls Logo

Viessmann B2HA 80 - Overview of Electrical Connections, Models B2 HA 80 to 100, 285 to 352

Viessmann B2HA 80
64 pages
Print Icon
To Next Page IconTo Next Page
To Next Page IconTo Next Page
To Previous Page IconTo Previous Page
To Previous Page IconTo Previous Page
Loading...
Vitodens 200-W B2HA 80 to 100, 285 to 352 Installation
47
5685 827 - 14
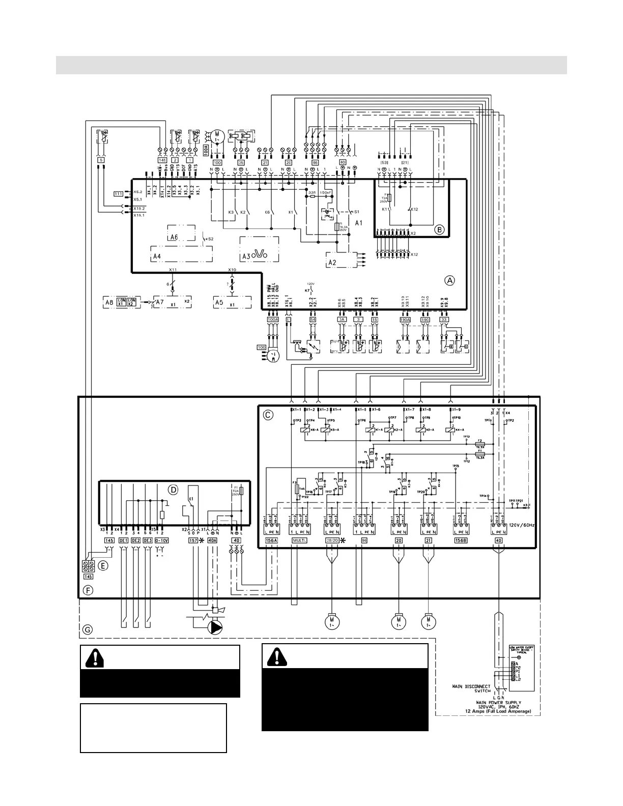
Overview of Electrical Connections, Models B2HA 80 to 100, 285 to 352
Wiring Diagram
If any of the original wires as
supplied with the appliance must
be replaced, it must be replaced
with the exact equivalent.
CAUTION
Label all wires prior to disconnection
when servicing controls. Wiring errors
can cause improper and dangerous
operation. Verify proper operation
after servicing.
*
Only one function/accessory may
be assigned to each connection.
WARNING
DISCONNECT POWER BEFORE
SERVICING BOILER.

Table of Contents

Related product manuals