EasyManua.ls Logo

Viessmann B2HA 80 - Page 40

Viessmann B2HA 80
64 pages
Print Icon
To Next Page IconTo Next Page
To Next Page IconTo Next Page
To Previous Page IconTo Previous Page
To Previous Page IconTo Previous Page
Loading...
Vitodens 200-W B2HA 80 to 100, 285 to 352 Installation
5685 827 - 14
40
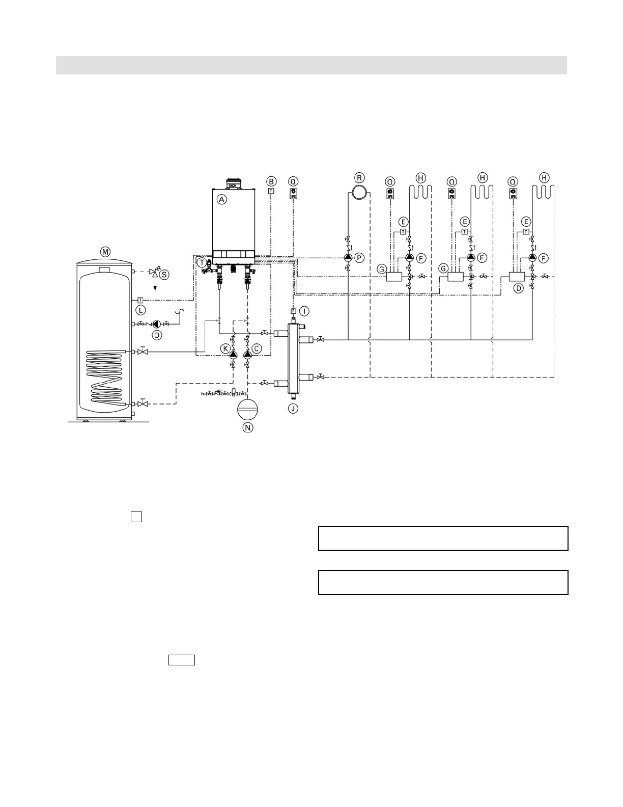
Boiler Connections
System Layout 8
Vitodens 200-W, B2HA with...
- DHW storage tank
- low-loss header
- multiple heating circuits with mixing valves
- one heating circuit without mixing valve
When designing a system as illustrated above, please contact your local Viessmann Sales Representative for assistance.
*1 Contact your local Sales Representative for details.
Vitotronic 200-H, HK1B mixing valve control with
LON communication module can be used instead
of the accessory kit and Vitocontrol.
Please note location of expansion tank N.
Pumps C and K must pump into the Vitodens 200-W
B2HA boiler (as illustrated).
IMPORTANT
IMPORTANT
Legend
A Vitodens 200-W B2HA boiler with Vitotronic
200, HO1B outdoor reset control
B Outdoor temperature !
C Boiler pump 20
D Vitotronic 200-H, HK1B *1
E Mixing valve temperature sensor ?
F Heating circuit pumps
G Accessory kit for heating circuit with mixing valve
H Heating circuits with mixing valves
I Viessmann temperature sensor for low-loss header ?
J Low-loss header
K DHW circulating pump sA
L DHW tank temperature sensor %
M DHW storage tank
N Expansion tank
O DHW recirculation pump sK
P Heating circuit pump 28/20 *
Q Vitotrol remote (optional)
R Radiator heating circuit
S Temperature and pressure relief valve
T Pressure relief valve
* Function based on coding of address 53

Table of Contents

Related product manuals