EasyManua.ls Logo

Viessmann B2TB004 - Safety Connections; Low Water Cut-Off

Viessmann B2TB004
60 pages
Print Icon
To Next Page IconTo Next Page
To Next Page IconTo Next Page
To Previous Page IconTo Previous Page
To Previous Page IconTo Previous Page
Loading...
29
5461 889 - 16
Vitodens 222-F, B2TB 19, 35, 68, 125 Installation
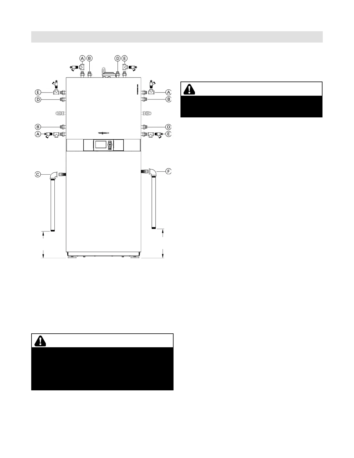
Boiler Connections
Safety Connections
Operating pressure...................................2 bar (30 psig)
Max. allowable working pressure (MAWP)..3 bar (45 psig)
Max. boiler water temperature.....................210ºF (99ºC)
WARNING
Exposing the boiler to pressures and temperatures in
excess of those listed will result in damages, and will
render warranty null and void.
Low water cut-off
A low water cut-off may be required by local codes. Do
not install an isolation valve between boiler and low water
cut-off.
Legend
A Heating supply NPT ¾ in.
B DHW NPT ¾ in.
C Pressure relief valve discharge pipe NPT ¾ in.
D DCW NPT ¾ in.
E Heating return NPT ¾ in.
F Temperature and pressure relief valve discharge
pipe NPT ¾ in.
WARNING
Do not install an isolation valve between boiler and
pressure relief valve.
The discharge pipe for the pressure relief valve must
be oriented to prevent scalding of attendants.
Pipe pressure relief valve discharge pipe close to floor
drain. Never pipe discharge pipe to the outdoors.
Min. 6”
(Min. 152 mm)
Min. 6”
(Min. 152 mm)

Table of Contents

Related product manuals