EasyManua.ls Logo

Viessmann B2TB004 - Control Connections; Wiring Diagram

Viessmann B2TB004
60 pages
Print Icon
To Next Page IconTo Next Page
To Next Page IconTo Next Page
To Previous Page IconTo Previous Page
To Previous Page IconTo Previous Page
Loading...
41
5461 889 - 16
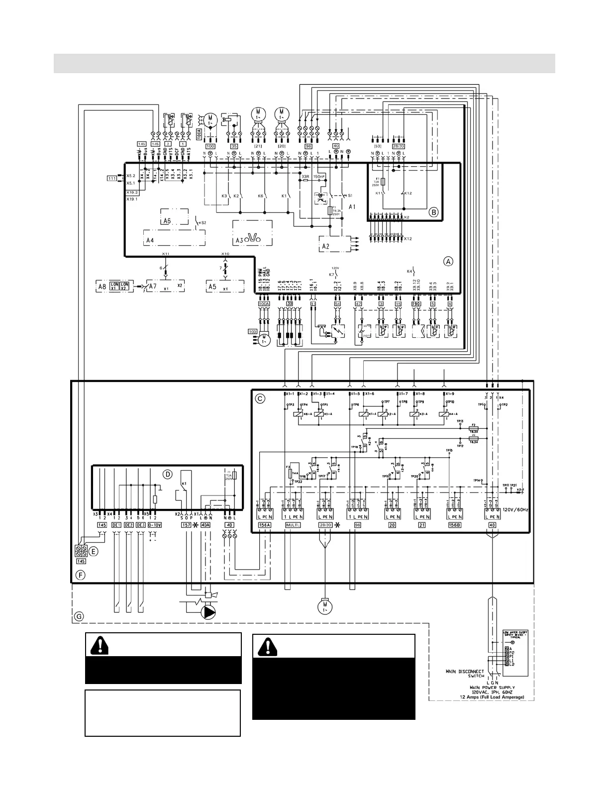
Vitodens 222-F, B2TB 19, 35, 68, 125 Installation
Wiring Diagram
Control Connections
If any of the original wires as
supplied with the appliance must
be replaced, it must be replaced
with the exact equivalent.
CAUTION
Label all wires prior to disconnection
when servicing controls. Wiring errors
can cause improper and dangerous
operation. Verify proper operation
after servicing.
WARNING
DISCONNECT POWER BEFORE
SERVICING BOILER.
* Only one function/connection may
be assigned to each connection.

Table of Contents

Related product manuals