EasyManua.ls Logo

Viessmann WB2B 45 - Page 54

Viessmann WB2B 45
64 pages
Print Icon
To Next Page IconTo Next Page
To Next Page IconTo Next Page
To Previous Page IconTo Previous Page
To Previous Page IconTo Previous Page
Loading...
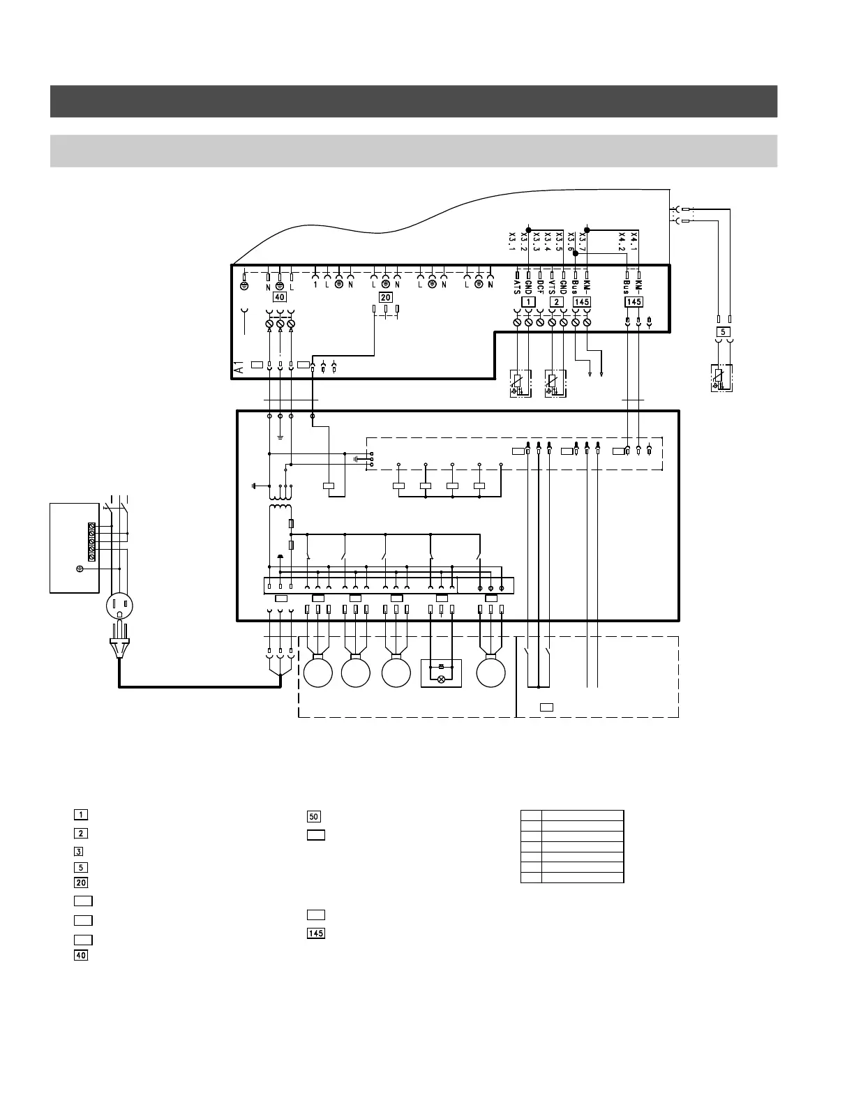
Control Connections
54
Electrical Connections (continued)
Wiring diagram for the boiler / Power/Pump module
5418 909 v1.6
REPMUJ
LATOT.xamACAV021:STUPTUO
sub--MK
1X--
N
G L
L
G
N
L
G
N
L
G
N
L
G
N
NG
L
1F
A21T
2K
5K
T
V032--021
AV300
%5--
%5+
2F
1
H
BCP
2X
L
GN
4
K
1
2
3
1
2
3
1
2
3
3
X
N G
5K
CAV042
N
L
L
G
N
G
1
2
3
3K
1K
N
G
L
61GWAx3
120VAC
M
120VAC
M
120VAC
M
DISCONNECT
SWITCH
A
P1
P2
L2
L1
MAIN
MAIN POWER SUPPLY
120V, 60HZ, 12A
N
G
L
LOW WATER CUT--OFF
SAFETY DEVICE
--TYPICAL
120VAC
WALL
RECEPTACLE
PUMP
DHW
SYSTEM
PUMP
BOILER
PUMP
A1 Main PCB (GC130 Ignition Module)
X... Electrical Interfaces
2K
4K
1K
3K
CDV42
CDV42
CDV42
CDV42
CAV032
61GWAx4
System Pump
Outside Temperature Sensor
Flow Temperature Sensor/Low Loss Header
Boiler Water Temperature Sensor
DHW Temperature Sensor
Boiler Pump
DHW Pump
DHW Re--circulation Pump
Power Supply
Fault Alarm Output
KM BUS to PPM/Accessories
External Demand Terminals 1--2
143
External 0--10V Signal
144
120VAC
M
DHW
RE--CIRC.
-- +
-- +
FAULT ALARM
OUTPUT
EXTERNAL
DEMAND
SEE
143
EXTERNAL
0--10V
SIGNAL
PUMP
External Heating Program Changeover
Terminals 1--2
The Allocation of the Function ”External
Heating Program Changeover” is Set
Via Coding Address ’91
40
20A
21 20
50
28
145144143
20A
21
28
40 20
External Blocking Terminals 2--3
X9.3
X9.4
120VAC
1 2 3 4 5 6 7
Conduit
BK BLACK
WH WHITE
G GREEN
RD RED
GY GREEN/YELLOW
KM--BUS
Accessories
GC130 BOILER/BURNER
CONTROL MODULE
BN BROWN
BL BLUE
L1
L2
WH GN BK RD
BN
BL
Power Pump Module
Field Connections
Fig. 51
Legend
T3.5A
8

Related product manuals