EasyManua.ls Logo

Viessmann WB2B 45 - Page 58

Viessmann WB2B 45
64 pages
Print Icon
To Next Page IconTo Next Page
To Next Page IconTo Next Page
To Previous Page IconTo Previous Page
To Previous Page IconTo Previous Page
Loading...
Additional Information
58
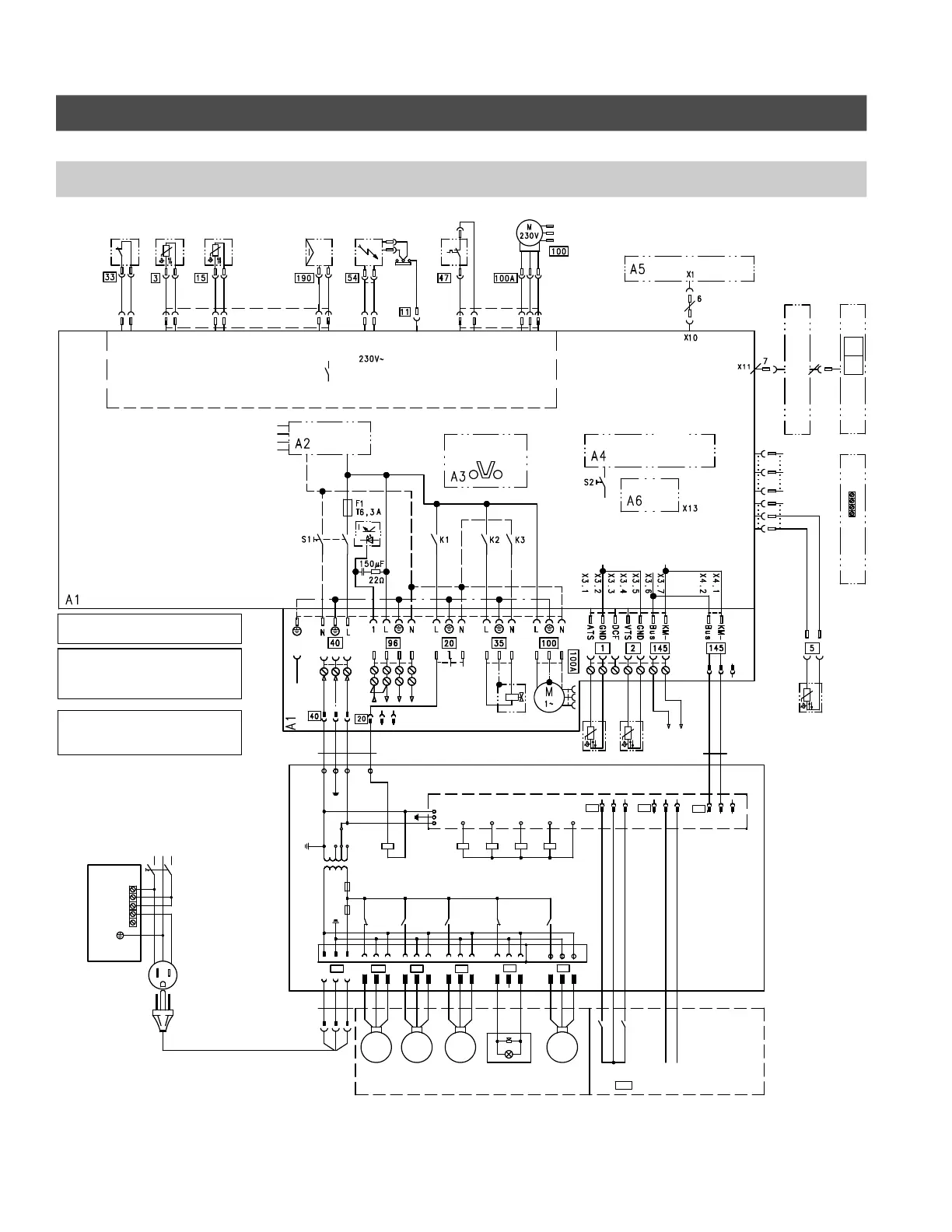
Wiring Diagram
Complete system wiring diagram
See legend for this wiring diagram on next page.
5418 909 v1.6
N
G
L
L
GN L
G
N
L
G
NL
G
N
NG
L
T
L
GN
1
2 3
1 2 3
1
2
3
N
NG
L
LG
1 2
3
BLBN
N
G
L
120VAC
M
120VAC
M
120VAC
M
DISCONNECT
SWITCH
A
P1
P2
L2
L1
MAIN
MAIN POWER SUPPLY
120V, 60HZ, 12A
N G
L
LOW WATER CUT--OFF
SAFETY DEVICE
--TYPICAL
120VAC
WALL
RECEPTACLE
PUMP
DHW
SYSTEM
PUMP
BOILER
PUMP
ONLY ONE FUNCTION/ACCESSORY MAY BE
ASSIGNED TO EACH CONNECTION.
WARNING! DISCONNECT POWER
CAUTION! LABEL ALL WIRES PRIOR TO
DISCONNECTION WHEN SERVICING CONTROLS.
WIRING ERRORS CAN CAUSE IMPROPER AND
DANGEROUS OPERATION. VERIFY PROPER
IF ANY OF THE ORIGINAL WIRE AS SUPPLIED
WITH THE APPLIANCE MUST BE REPLACED
IT MUST BE REPLACED WITH ITS
EQUIVALENT.
BEFORE SERVICING BOILER.
OPERATION AFTER SERVICING.
INTERNAL CONNECTIONS
GC130 BURNER IGNITION MODULE
POWER PUMP MODULE
120VAC
M
DHW
RE--CIRC.
-- +
-- +
FAULT ALARM
OUTPUT
EXTERNAL
DEMAND
SEE
143
EXTERNAL
0--10V
SIGNAL
PUMP
99 C
210 F
40 20A 21 20 50 28
145
144143
X8.4
X8.3
X8.2
X8.1
X9.8
X9.9
X9.11
X9.10
K4
X8.9
X8.8
X6.1
X2.2
X2.1
X8.15 PWM
X8.13 HALL
X8.12 GND
X8.1
X8.10
X8.11
X9.1
X9.3
X9.4
OR
LON
X1
LON
X2
A7
A8
A8
X1
KMK1
KMK2
120VAC
1 2 3 4 5 6 7
Conduit
KM--BUS
Accessories
X1
X2
X2
--X1
K3
K1
K2
K4
K5
120--230V
300VA
--5% +5%
K5
240VAC
K1K2K3 K4
24VDC
24VDC24VDC
24VDC
JUMPER
H1
PCB
3xAWG16
1F
A21T
2F
T3.5A
FIELD CONNECTIONS
o
o
LATOT.xamA8CAV021:STUPTUO
Fig. 54
CAV032
61GWAx4
WH GN BK RD
sub--MK
X3
N
G
L1 L2

Related product manuals