EasyManua.ls Logo

WarmFlow COMBI 70 - Dimensions

Default Icon
52 pages
Print Icon
To Next Page IconTo Next Page
To Next Page IconTo Next Page
To Previous Page IconTo Previous Page
To Previous Page IconTo Previous Page
Loading...
1
8045
8000
8130
1620
1310
460
820
REAR VIEW
2 3 4
5
6
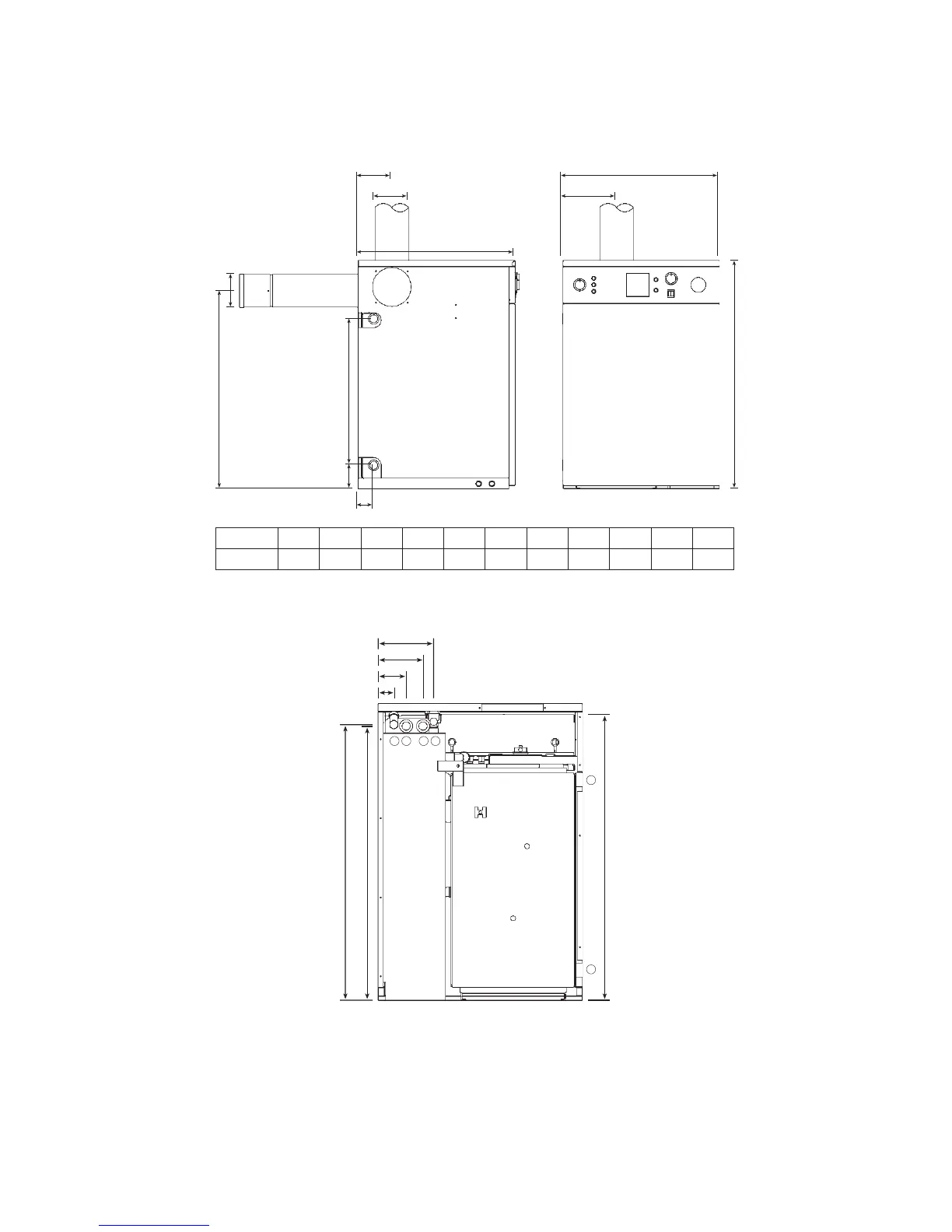
2.4 Dimensions
2.4.1 Combi Dimensions
2.4.2 Combi Boiler Connections
All dimensions are given in mm.
1. Cold Mains (15mm)
2. Heating Flow (22mm)
3. Domestic Hot Water (22mm)
4. Pressure Relief Discharge (15mm)
5. Spare Connection (1” BSP)
6. Central Heating Return (1” BSP)
MODEL
70/90
J
127
A
865
B
595
C
595
D
90
E
59
F
554
G
750
H
125
K
127
L
203
J
H
K
C
E
G F
D
B
L
A
Page 9

Related product manuals