EasyManua.ls Logo

WarmFlow COMBI 70 - Combi Flue Options

Default Icon
52 pages
Print Icon
To Next Page IconTo Next Page
To Next Page IconTo Next Page
To Previous Page IconTo Previous Page
To Previous Page IconTo Previous Page
Loading...
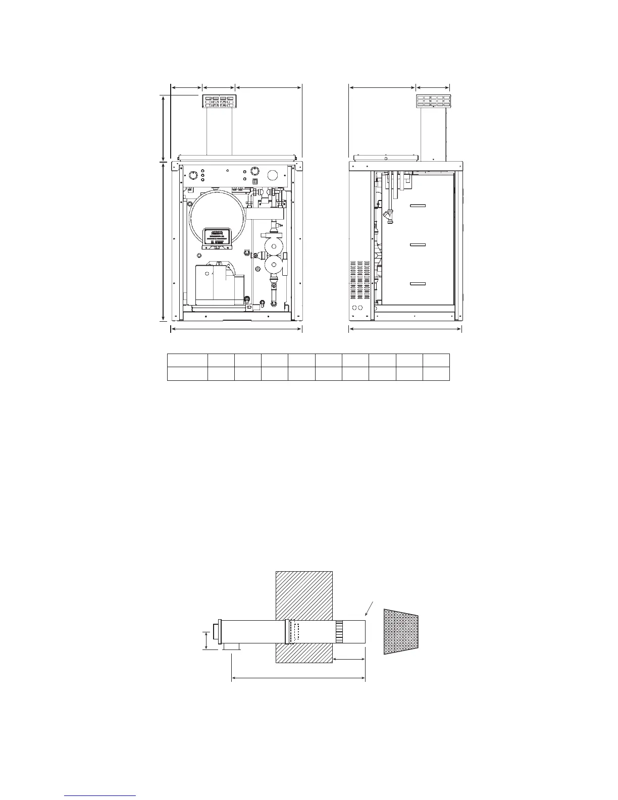
2.4.3 Kabin Pak Combi Dimensions
102
712 MAX
225 MAX
175 MIN
490 MIN
Ø125
2.5 Combi Flue Options (not applicable to the Kabin Pak Combi)
Note: Low level flue options are rear or left hand outlet only.
2.5.1 ‘Easy Fit’ Telescopic Low Level Balanced Flue (BF-R)
The horizontal dimension can be increased up to an additional 1200mm using a
combination of long extension pieces (E600 = 600mm) and short extension pieces
(E300 = 300mm).
E
B C
FGJH
D
A
Page 10

Related product manuals