EasyManua.ls Logo

WarmFlow Utility U70HE - Page 22

Default Icon
80 pages
Print Icon
To Next Page IconTo Next Page
To Next Page IconTo Next Page
To Previous Page IconTo Previous Page
To Previous Page IconTo Previous Page
Loading...
Page 20
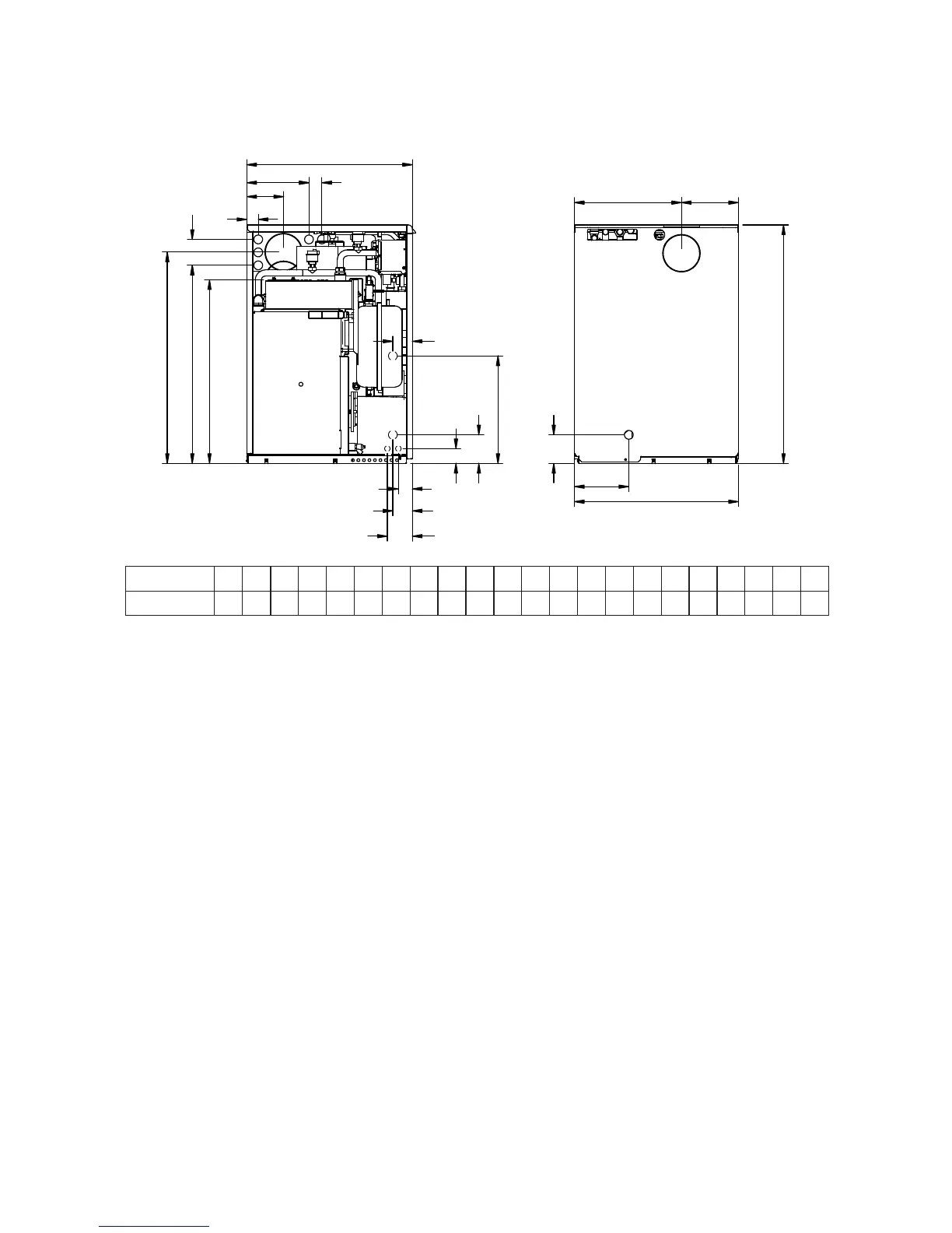
2.2.3 U-Series Utility (UCHE Models)
UCHE DIMS
A B C D E F G H J K L M N P R S T U V W X Y
600 595 865 766 134 388 207 666 47 226 42 94 718 91 71 51 54 104 390 71 104 197
MODEL
A
B
C
D
E
F
G
H
J
K
L
M
N
P
R
S
T
U
V
W
X
Y
UC~
600
595
865
766
134
388
207
666
47
226
42
94
718
91
71
51
54
104
390
71
104
197

Table of Contents

Related product manuals