EasyManua.ls Logo

Washtech PW2 - Assembly & Electrical Diagrams; Wiring Tray Assembly

Washtech PW2
36 pages
Print Icon
To Next Page IconTo Next Page
To Next Page IconTo Next Page
To Previous Page IconTo Previous Page
To Previous Page IconTo Previous Page
Loading...
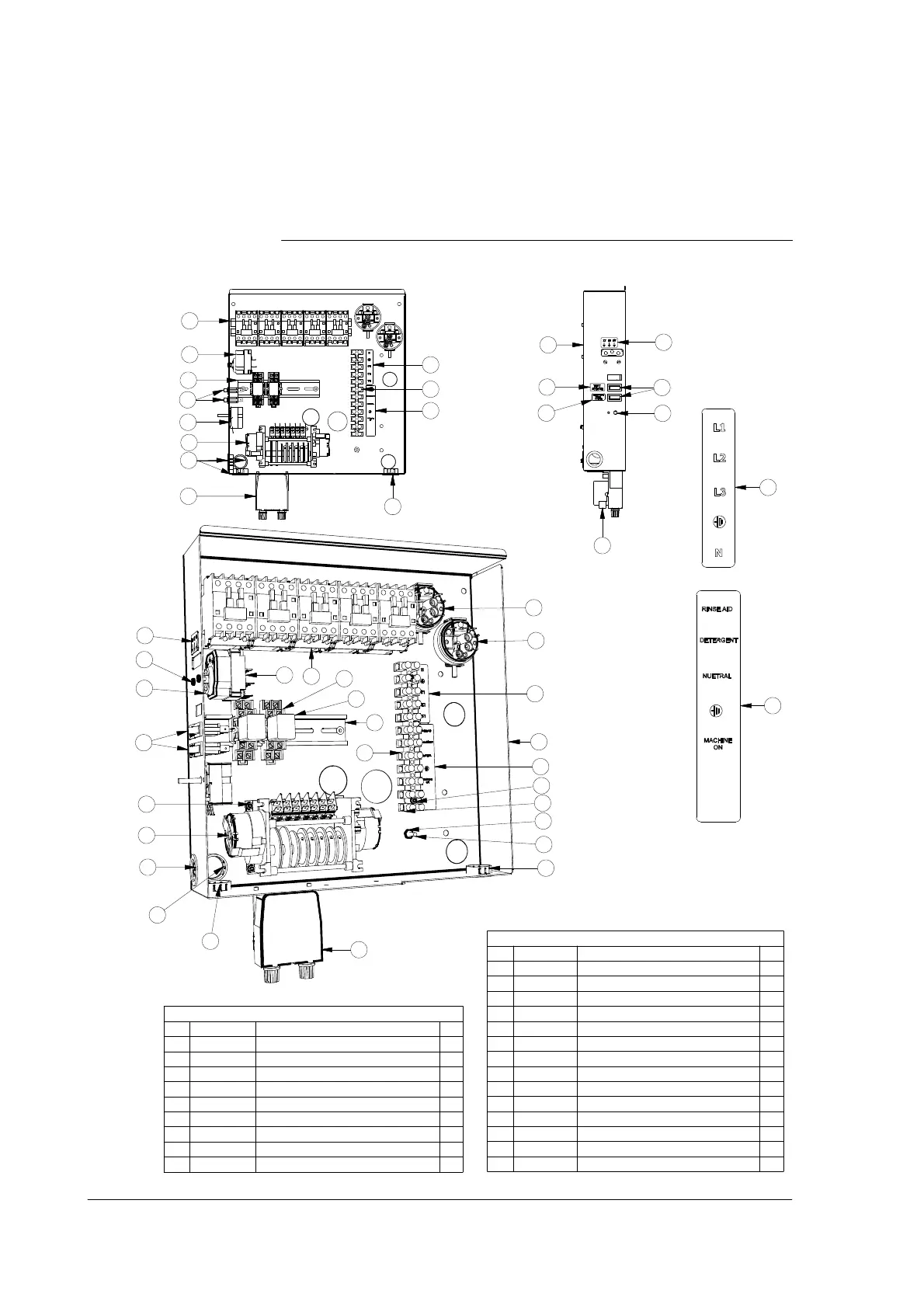
SIDE VIEW
PERSPECTIVE VIEW
MAIN VIEW
826 10020
9/10/2009
3-A
PW2 WIRING TRAY ASSY
REV
Assembly Diagrams
Parts List
QTDESCRIPTION
PART NUMBERITE
2SWITCH SINGLE POLE BIASED BLACK30351
1
NUT HX BRASS 3/16" PRESSED
81512
13 POLE THERMOSTAT30203
2
MS PAN POZI ZP M4x6
88004
1LABEL TEST SWITCHREF
5
2
MS PAN POZI ZP M4x25
88026
1CHEMICAL CONNECTIONS LABELREF
7
1
POWER CONNECTIONS LABEL
REF8
1LABEL THERMOSTAT ADJUSTMENTSREF9
Parts List
QTYDESCRIPTIONPART NUMBERITEM
1DIN RAIL ANLY323110
4
MS PAN POZI ZP M4x12880111
1TERMINAL STRIP 12 WAY322912
1PW3 WIRING TRAY SUB ASSEMBLY 827 1002113
5CONTACTOR 25A600 3022914
2BASE 2 POLE RELAY600 3008115
2RELAY 2 POLE (240VAC)600 3008016
1MS RH BRASS 3/16 X 3/4881617
1PERI PUMP 1.5L/H SEKO-KIT600 3009418
1TIMER4907DV (40, 60, 90 SEC) 3 CYCLE3278219
1LABEL DETERGENT PRIME SWITCHREF20
1THERMOSTAT 1 POLE3020121
4BUSH SNAP - IN 30mm600 3009022
2METAFLEX PRESSURE SWITCH600 3026623
7
8
9
1
18
5
20
18
19
1
4
3
2
17
13
7
8
6
12
11
23
13
21
10
11
3
21
1
19
22
18
22
7
8
12
15
16
10
12
14
23
22
22
22
22
3
9
Service Manual PW2(W)
22
Revision 1B

Related product manuals