EasyManua.ls Logo

WaterLogic WL2FLT - Page 30

WaterLogic WL2FLT
65 pages
Print Icon
To Next Page IconTo Next Page
To Next Page IconTo Next Page
To Previous Page IconTo Previous Page
To Previous Page IconTo Previous Page
Loading...
WL2FLT Manual Page 30 Revision 10-26-2021
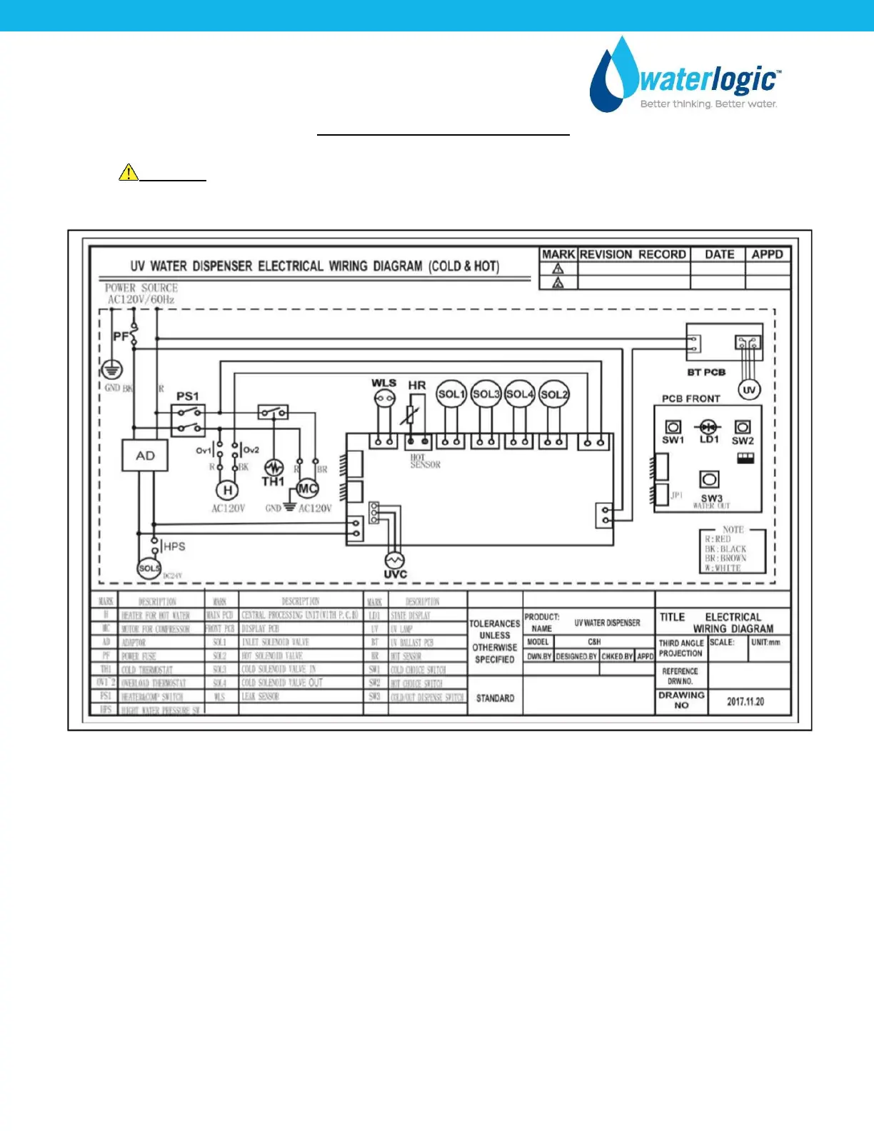
WL2FLT ELECTRICAL DIAGRAM
DANGER! HIGH VOLTAGE ELECTRICAL HAZARD. PCB (Printed Circuit Board) contains High
Voltage. Only trained and qualified technicians should attempt live testing.

Other manuals for WaterLogic WL2FLT

Related product manuals