EasyManua.ls Logo

Wenger Trouper - Page 47

Default Icon
51 pages
Print Icon
To Next Page IconTo Next Page
To Next Page IconTo Next Page
To Previous Page IconTo Previous Page
To Previous Page IconTo Previous Page
Loading...
47
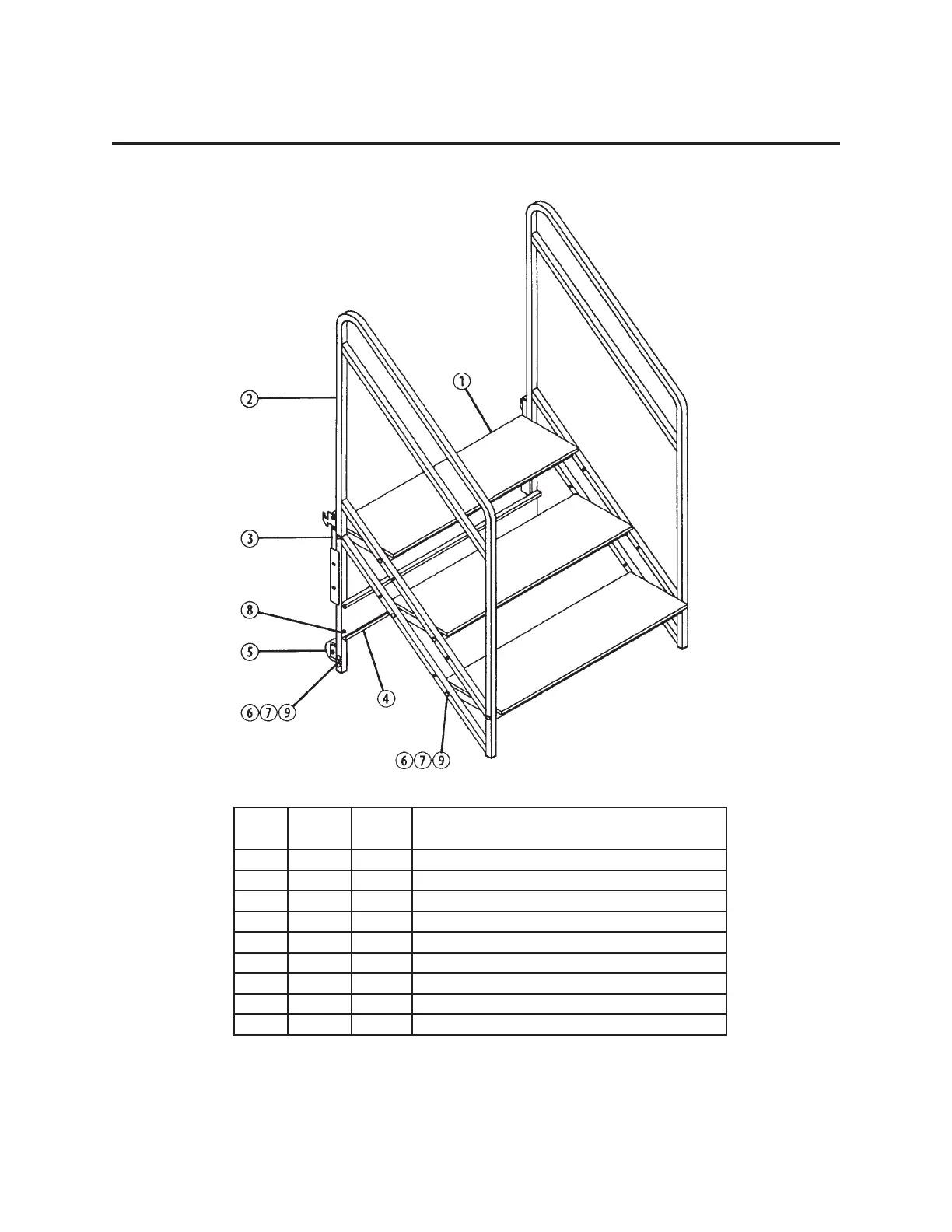
REPLACEMENT PARTS LIST (CONTINUED)
2- AND
3-STEP STAIRWAYS
3-Step Model Shown
Item Qty
2-Step
Qty
3-Step
Description
1 2 3 Step assembly
2 2 2 Frame assembly, hand-rail
3 2 2 Tube, hook (with notched plate)
4 1 1 Brace, cross
5 2 2 Wheel assembly
6 12 16 Nut, hex, 5/16 - 18
7 12 16 Bolt, carriage, 5/16 - 18 x 1-1/2"
8 4 4 Screw, self-tapping, 1/4" x 3/4"
9 12 16 Washer, lock, 5/16”