EasyManua.ls Logo

Whitfield ADVANTAGE PLUS - Installation Configurations; Standard Horizontal Setups

Default Icon
37 pages
Print Icon
To Next Page IconTo Next Page
To Next Page IconTo Next Page
To Previous Page IconTo Previous Page
To Previous Page IconTo Previous Page
Loading...
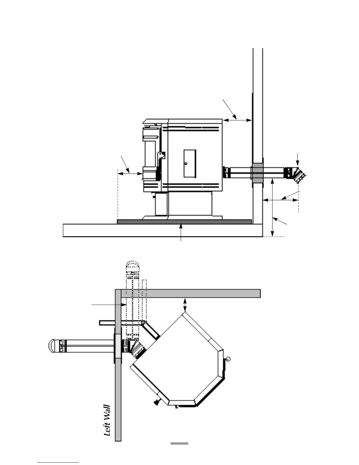
Installation Configurations
Standard Horizontal Installations
45
o
Degree
Elbow
12”Minimum
from ground
or other
surfaces
1”Minimum
6”Minimum
NON-COMBUSTIBLE Hearth Pad
(3/8”Minimum Thickness)
NOTE: If you vent to
the Right Wall, the
vent pipe must maintain a
3” clearance parallel
to the left wall.
Right Wall
Standard Horizontal Installations
3” Minimum
Between Wall
and Pipe
1”
1”
12”
Minimum
from outer
wall

Table of Contents

Related product manuals